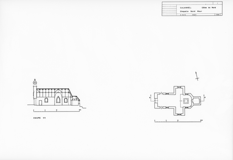
Chapelle Saint-Maur, Saint-Maur (Calanhel),
Coupe et planImmatriculation
IVR53_19762200060P
Auteur de l'illustration
Copyright
- (c) Inventaire général, ADAGP
Diffusion
reproduction soumise à autorisation du titulaire des droits d'exploitation
Type
phototype argentique
Besoin d'informations sur cette illustration ?
Nous contacter
Informations techniques
-
Technique de relevé
- relevé manuel