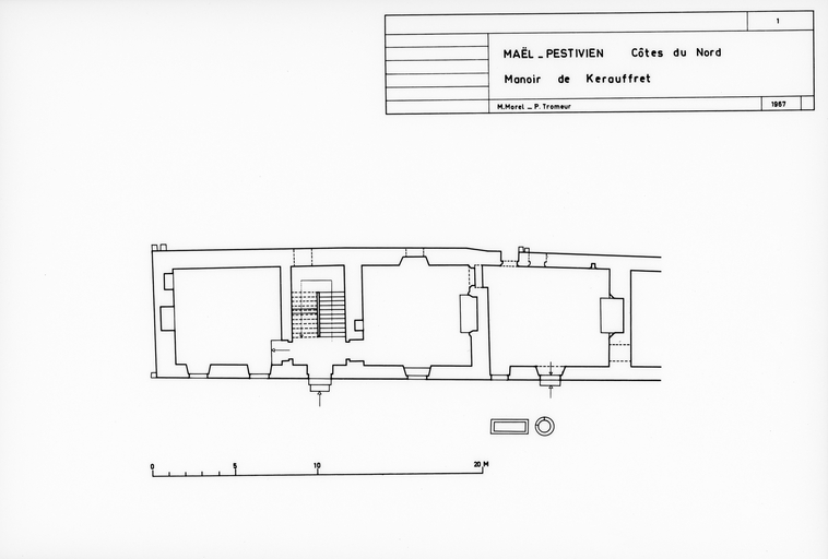
Manoir, Kerauffret (Maël-Pestivien),
PlanImmatriculation
IVR53_19762200096P
Auteur de l'illustration
Copyright
- (c) Inventaire général, ADAGP
Diffusion
reproduction soumise à autorisation du titulaire des droits d'exploitation
Type
phototype argentique
Besoin d'informations sur cette illustration ?
Nous contacter