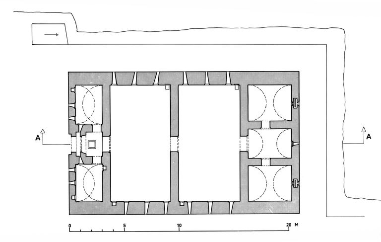
Corps de garde crénelé, Beg Ar Gador - pointe de Kador (Crozon),
Plan du réduit de Beg Ar Gador ou pointe du KadorImmatriculation
IVR53_19872900003PA
Auteur du document reproduit
Auteur de l'illustration
Copyright
- (c) Inventaire général, ADAGP
Diffusion
reproduction soumise à autorisation du titulaire des droits d'exploitation
Type
phototype argentique
Besoin d'informations sur cette illustration ?
Nous contacter
Informations techniques
-
Technique de relevé
- relevé manuel