Batterie d'artillerie de côte et corps de garde crénelé (Cr 328), puis école de voile, Roscanvel,
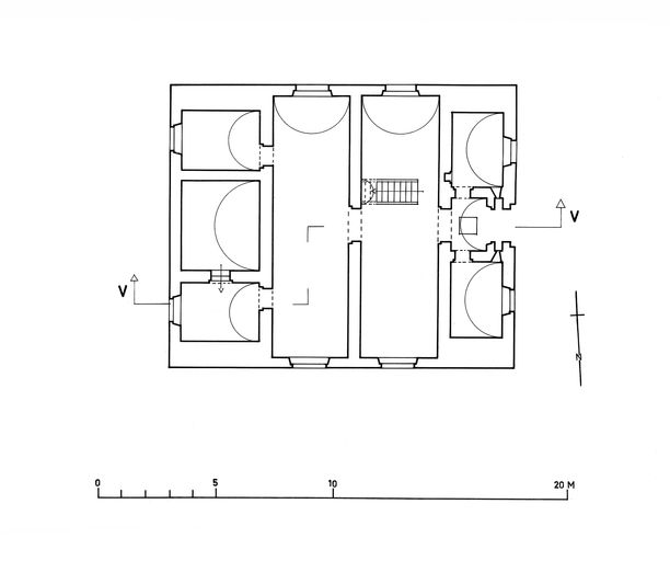
Plan du corps de garde crénélé n° 3 du bourg de RoscanvelImmatriculation
IVR53_19872900024PA
Auteur du document reproduit
Auteur de l'illustration
Copyright
- (c) Inventaire général, ADAGP
Diffusion
reproduction soumise à autorisation du titulaire des droits d'exploitation
Type
phototype argentique
Besoin d'informations sur cette illustration ?
Nous contacter
Informations techniques
-
Technique de relevé
- relevé manuel