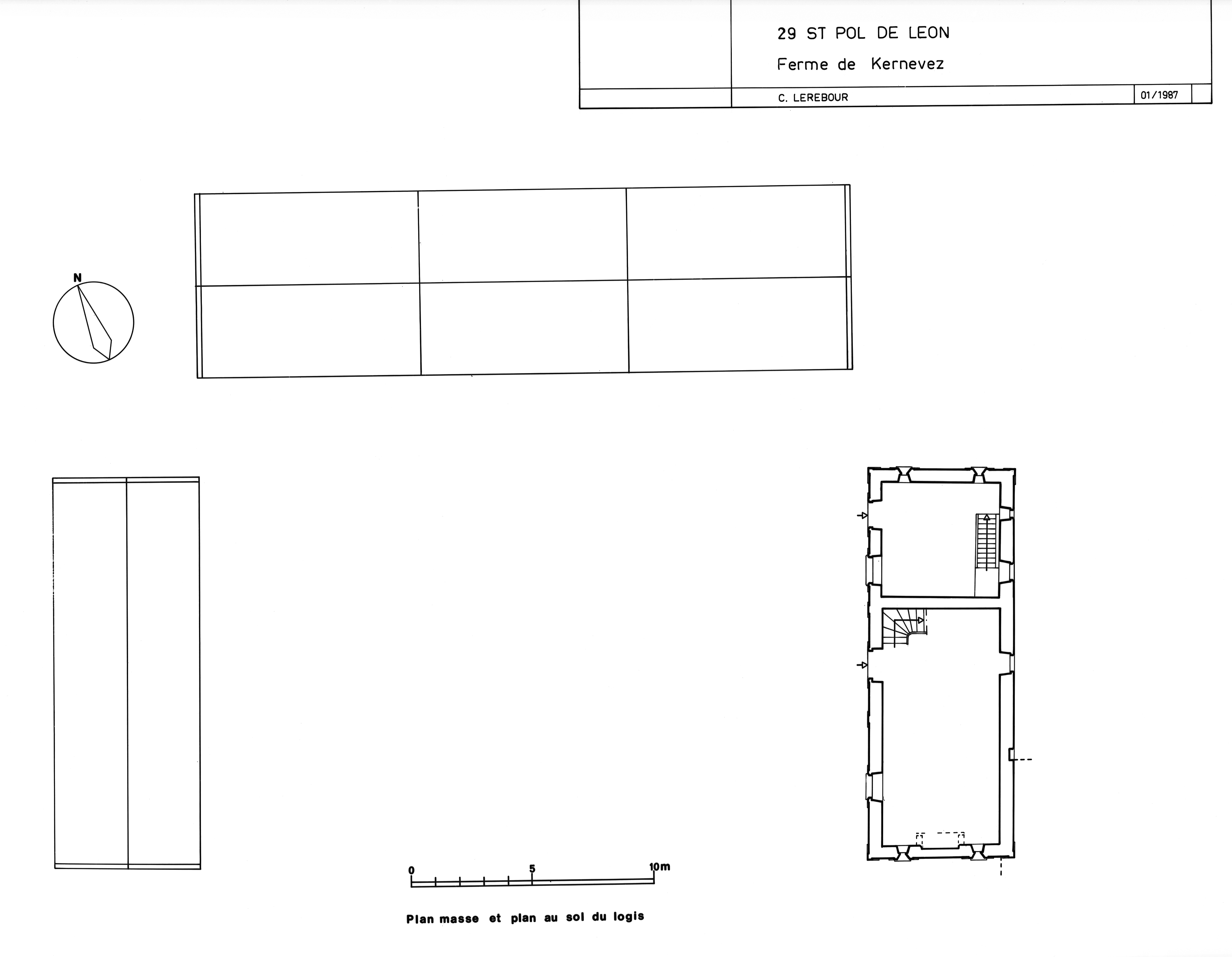
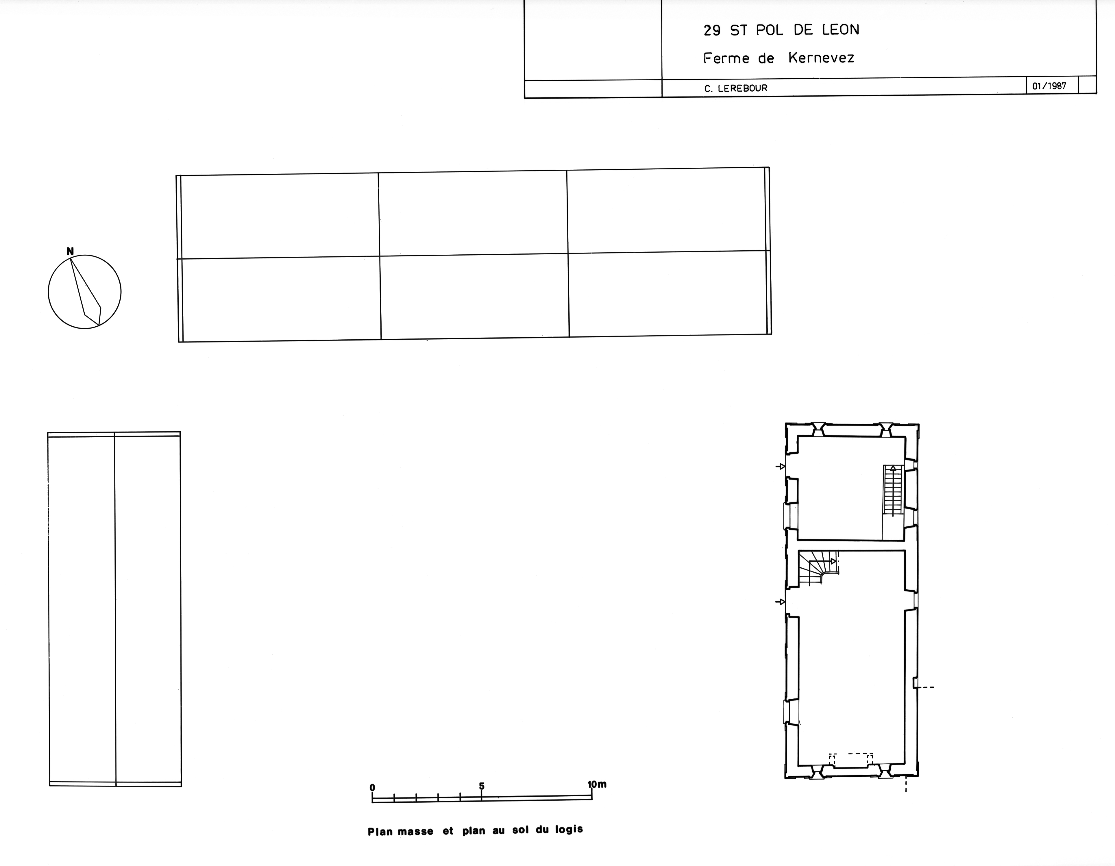
Château de Kernevez (Saint-Pol-de-Léon),
Plan-masse et plan au sol du logisImmatriculation
IVR53_19872900249P
Auteur de l'illustration
(reproduction)
Copyright
- (c) Inventaire général, ADAGP
Diffusion
reproduction soumise à autorisation du titulaire des droits d'exploitation
Type
phototype argentique
Besoin d'informations sur cette illustration ?
Nous contacter
Photographe à l'Inventaire