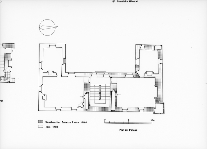
Château, Rosviliou (Duault),
Plan : 1er étage (plan archéologique)Immatriculation
IVR53_19892200002P
Auteur de l'illustration
Copyright
- (c) Inventaire général, ADAGP
Diffusion
reproduction soumise à autorisation du titulaire des droits d'exploitation
Type
phototype argentique
Besoin d'informations sur cette illustration ?
Nous contacter
Informations techniques
-
Technique de relevé
- relevé manuel
Photographe à l'Inventaire