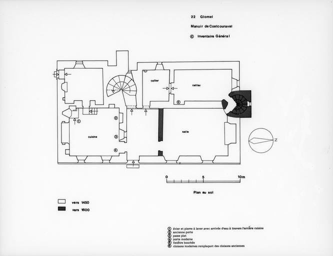
Manoir, Coat Couraval (Glomel),
Plan au sol.Immatriculation
IVR53_19892200350P
Auteur de l'illustration
-
Service régional de l'Inventaire de BretagneService régional de l'Inventaire de BretagneCliquez pour effectuer une recherche sur cette personne.
Copyright
- (c) Inventaire général, ADAGP
Diffusion
reproduction soumise à autorisation du titulaire des droits d'exploitation
Type
phototype argentique
Besoin d'informations sur cette illustration ?
Nous contacter