Château,

Plan.
Immatriculation
IVR53_19903500138P
Auteur de l'illustration
Copyright
  • (c) Inventaire général, ADAGP
Diffusion
reproduction soumise à autorisation du titulaire des droits d'exploitation
Type
phototype argentique
Besoin d'informations sur cette illustration ?
Nous contacter
Références des documents reproduits
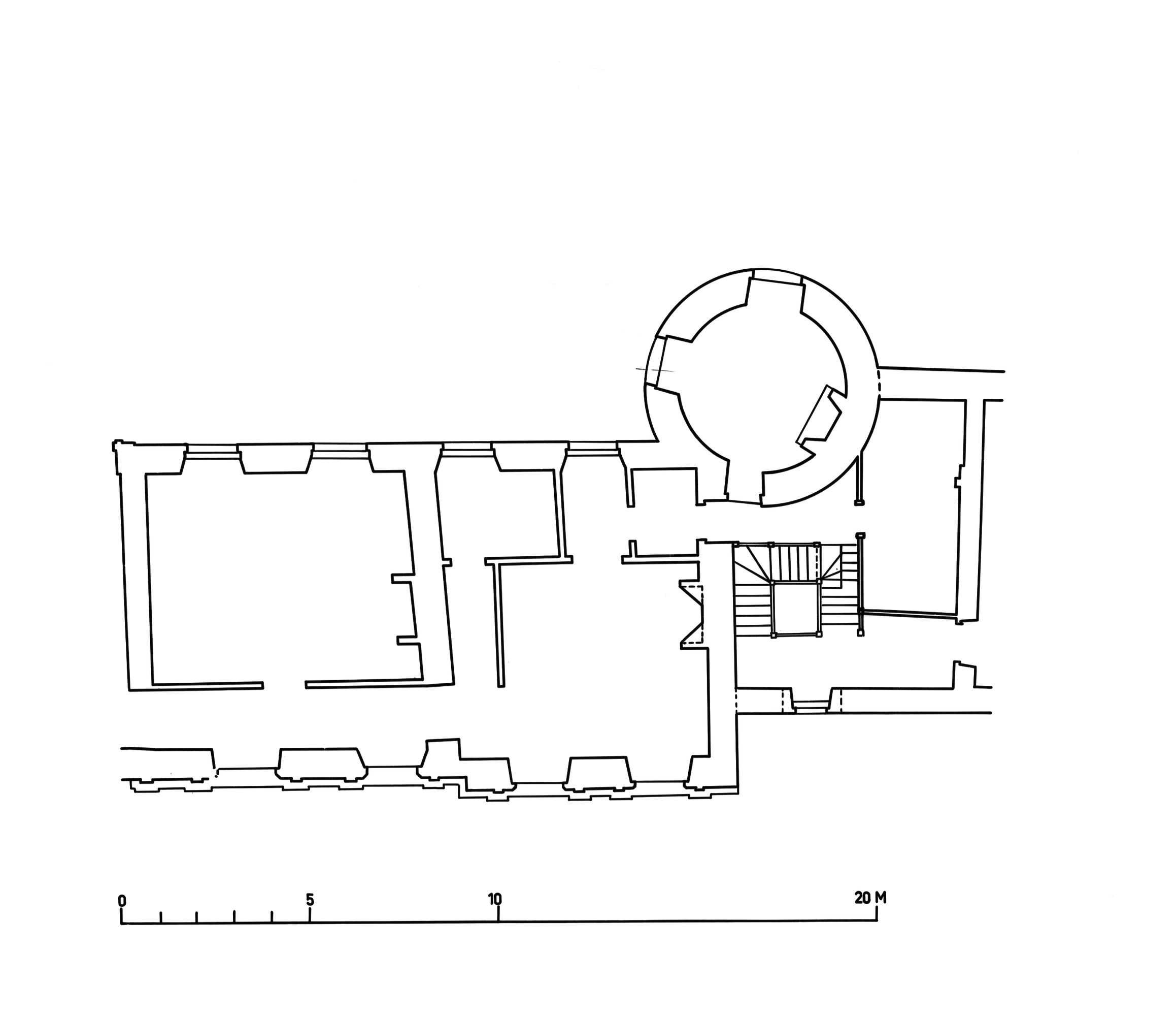
  • Parigné - château de Bois Guy : plan du premier étage. Dessin.

    Région Bretagne (Service de l'Inventaire du patrimoine culturel)