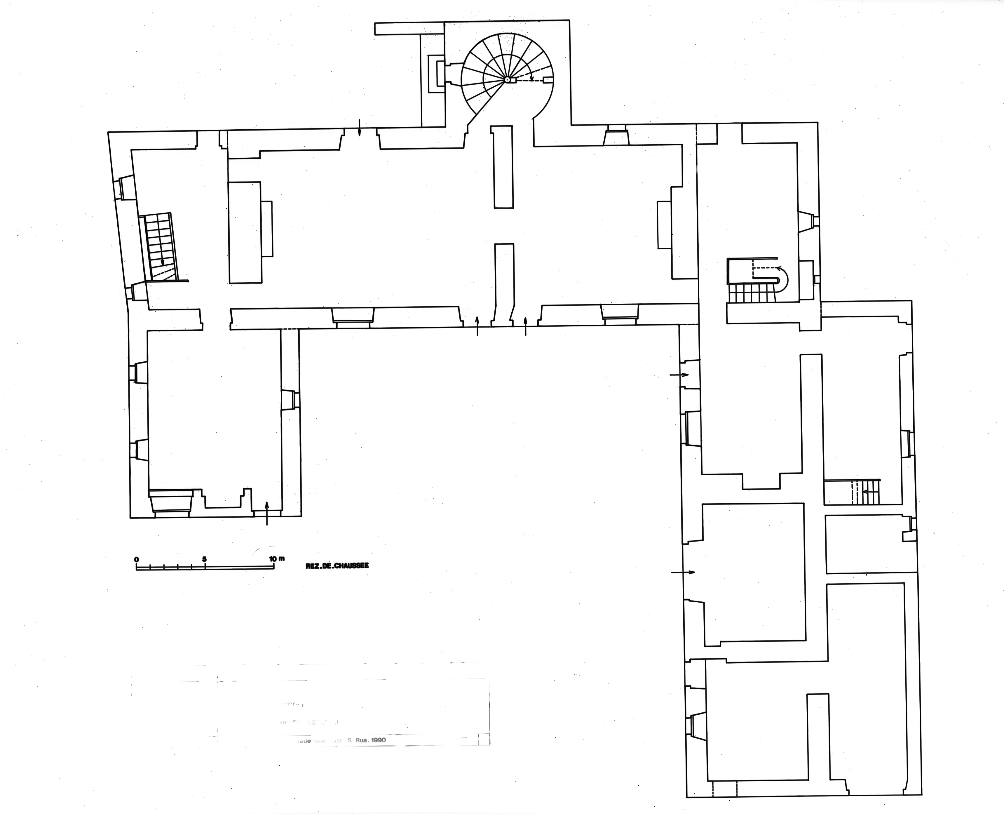
Manoir, Kerestat (Roscoff),
Plan du rez-de-chausséeImmatriculation
IVR53_19912900153P
Auteur de l'illustration
(reproduction)
Copyright
- (c) Inventaire général, ADAGP
Diffusion
reproduction soumise à autorisation du titulaire des droits d'exploitation
Type
phototype argentique
Besoin d'informations sur cette illustration ?
Nous contacter
Photographe à l'Inventaire