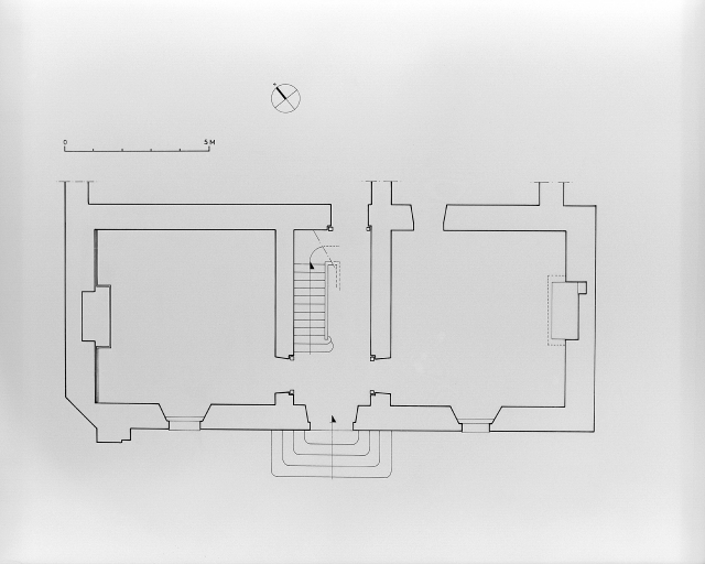
Maison de marchand de toiles, le Cosquer (Le Quillio),
Plan du rez-de-chausséeImmatriculation
IVR53_19972200159X
Auteur de l'illustration
Copyright
- (c) Inventaire général, ADAGP
Diffusion
reproduction soumise à autorisation du titulaire des droits d'exploitation
Type
phototype argentique
Besoin d'informations sur cette illustration ?
Nous contacter
Informations techniques
-
Technique de relevé
- relevé manuel