Bunker - casemate de type 623 avec créneau blindé pour mitrailleuse (A 35/24), Énez Vihan (Landéda),
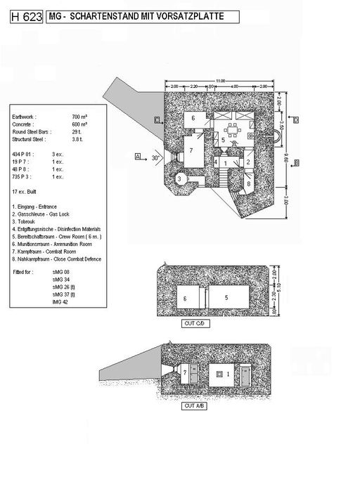
Plan d'un bunker de type 623 (dessin : Patrick Fleuridas)Immatriculation
IVR53_20042904383NUCA
Auteur du document reproduit
-
Fleuridas PatrickFleuridas PatrickCliquez pour effectuer une recherche sur cette personne.
Auteur de l'illustration
-
Fleuridas PatrickFleuridas PatrickCliquez pour effectuer une recherche sur cette personne.
Copyright
- (c) Collection particulière
Diffusion
reproduction soumise à autorisation du titulaire des droits d'exploitation
Type
phototype numérique
Besoin d'informations sur cette illustration ?
Nous contacter
-
Dessins de Patrick Fleuridas. Belgian Bunkersite (http : //www.bunkers.be).