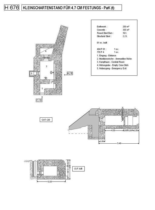
Bunker - casemate de type 676, Pointe de Roc'h Kroum (Roscoff),
Plan d'un bunker - casemate de type 676 (dessin : Patrick Fleuridas)Immatriculation
IVR53_20042904385NUCA
Auteur du document reproduit
-
Fleuridas PatrickFleuridas PatrickCliquez pour effectuer une recherche sur cette personne.
Auteur de l'illustration
-
Fleuridas PatrickFleuridas PatrickCliquez pour effectuer une recherche sur cette personne.
Copyright
- (c) Inventaire général, ADAGP
Diffusion
reproduction soumise à autorisation du titulaire des droits d'exploitation
Type
phototype numérique
Besoin d'informations sur cette illustration ?
Nous contacter
-
Dessins de Patrick Fleuridas. Belgian Bunkersite (http : //www.bunkers.be).