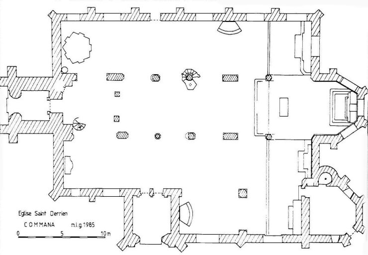
Enclos paroissial et église Saint-Derrien (Commana),
Plan au sol schématique (Michel Le Goffic, 1985)Immatriculation
IVR53_20062906738NUC
Auteur de l'illustration
Copyright
- (c) Inventaire général, ADAGP
Diffusion
reproduction soumise à autorisation du titulaire des droits d'exploitation
Type
phototype numérique
Besoin d'informations sur cette illustration ?
Nous contacter