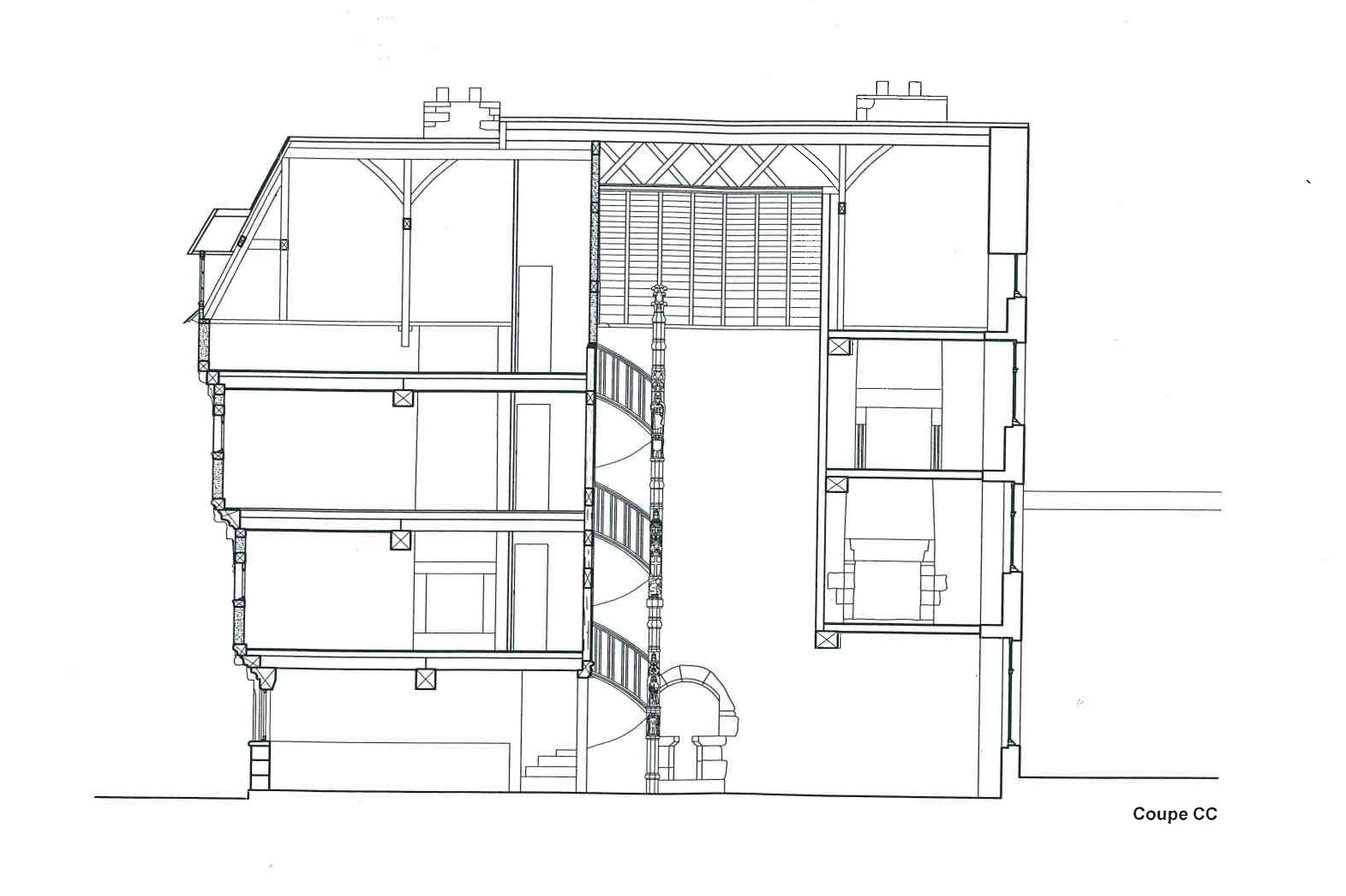
Maison de marchand dite maison Saint-Pierre, 14 rue La Chalotais (Tréguier),
Coupe tranversale. D'après relevés réalisés par Grammare et Belorgey, architectes. Cabinet Bonnier-GlachantImmatriculation
IVR53_20192206602NUD
Auteur de l'illustration
-
Belorgey BernardBelorgey BernardCliquez pour effectuer une recherche sur cette personne.
Copyright
- (c) Cabinet Bonnier-Glachant, architectes DPLG
Année de prise de vue
2006
Diffusion
reproduction soumise à autorisation du titulaire des droits d'exploitation
Type
dessin numérique
Besoin d'informations sur cette illustration ?
Nous contacter
Auteur