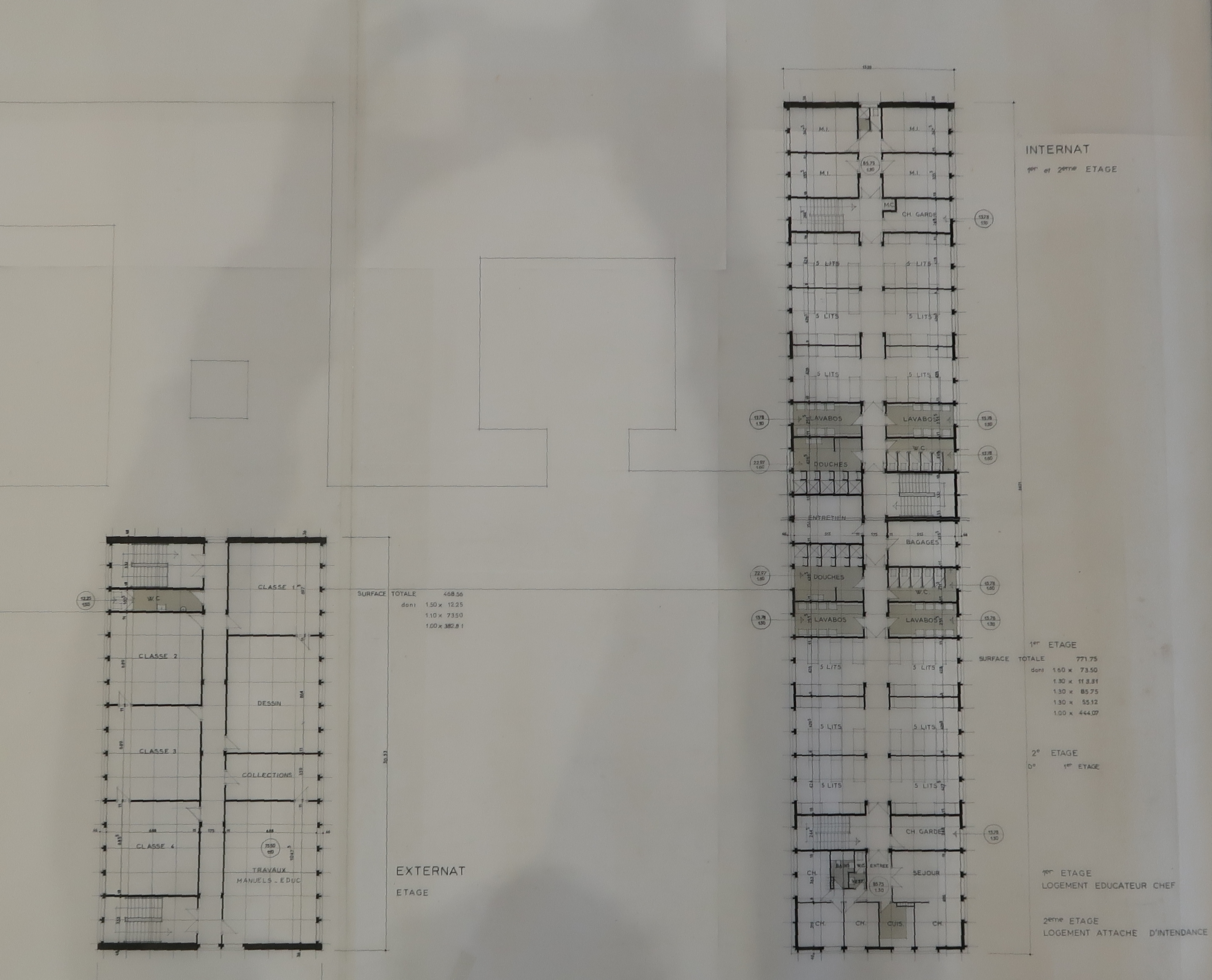
EREA les Pins, Kergalan (Ploemeur),

Plan des étages. Yves Guillou, architecte, 1967.
Immatriculation
IVR53_20205605085A0
Auteur du document reproduit
Copyright
  • (c) Archives départementales du Morbihan
Année de prise de vue
2020
Diffusion
reproduction soumise à autorisation du titulaire des droits d'exploitation
Type
dessin non numérique
Besoin d'informations sur cette illustration ?
Nous contacter
Références des documents reproduits
  • Archives départementales du Morbihan : 110 J 168-169. Guillou, Y, Jeu de plans calques, 7/9/1967

    Archives départementales du Morbihan : 110 J 168-169