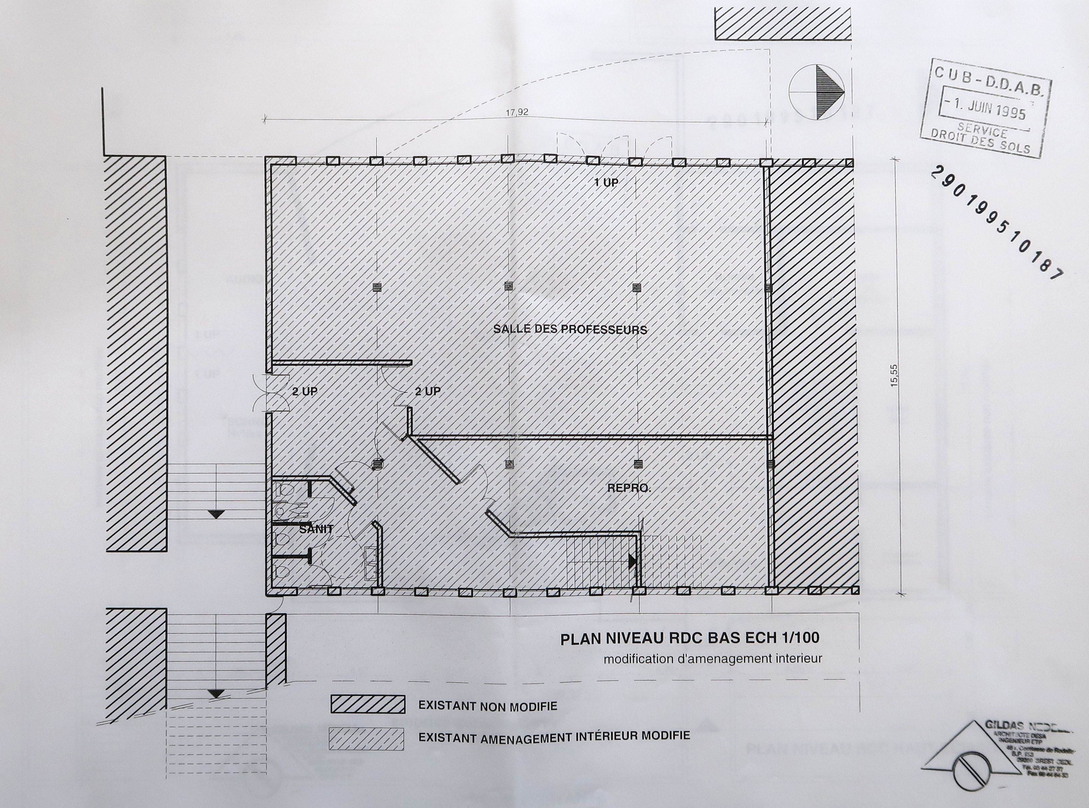
Lycée Vauban, rue Kerichen (Brest),
Centre de documentation et d'information : plan du rez-de-chaussée bas. Gildas Nédélec, architecte, 1er juin 1995.Immatriculation
IVR53_20212905059A3
Auteur du document reproduit
Copyright
- (c) Archives municipales et communautaires
Année de prise de vue
2021
Diffusion
reproduction soumise à autorisation du titulaire des droits d'exploitation
Type
dessin non numérique
Besoin d'informations sur cette illustration ?
Nous contacter
-
Archives municipales et communautaires de Brest : 95PC187
Archives municipales et communautaires de Brest : 95PC187. Nédélec [Gildas], Perspective et plans du CDI, 1995
Architecte DESA, ingénieur ESTP. En 2021, membre de l'agence ABAQE, 42 rue Alfred de Musset à Brest.