Cité scolaire de l'Iroise, dite aussi lycée et collège de l'Iroise, anciennement lycée de Saint-Marc (Brest),

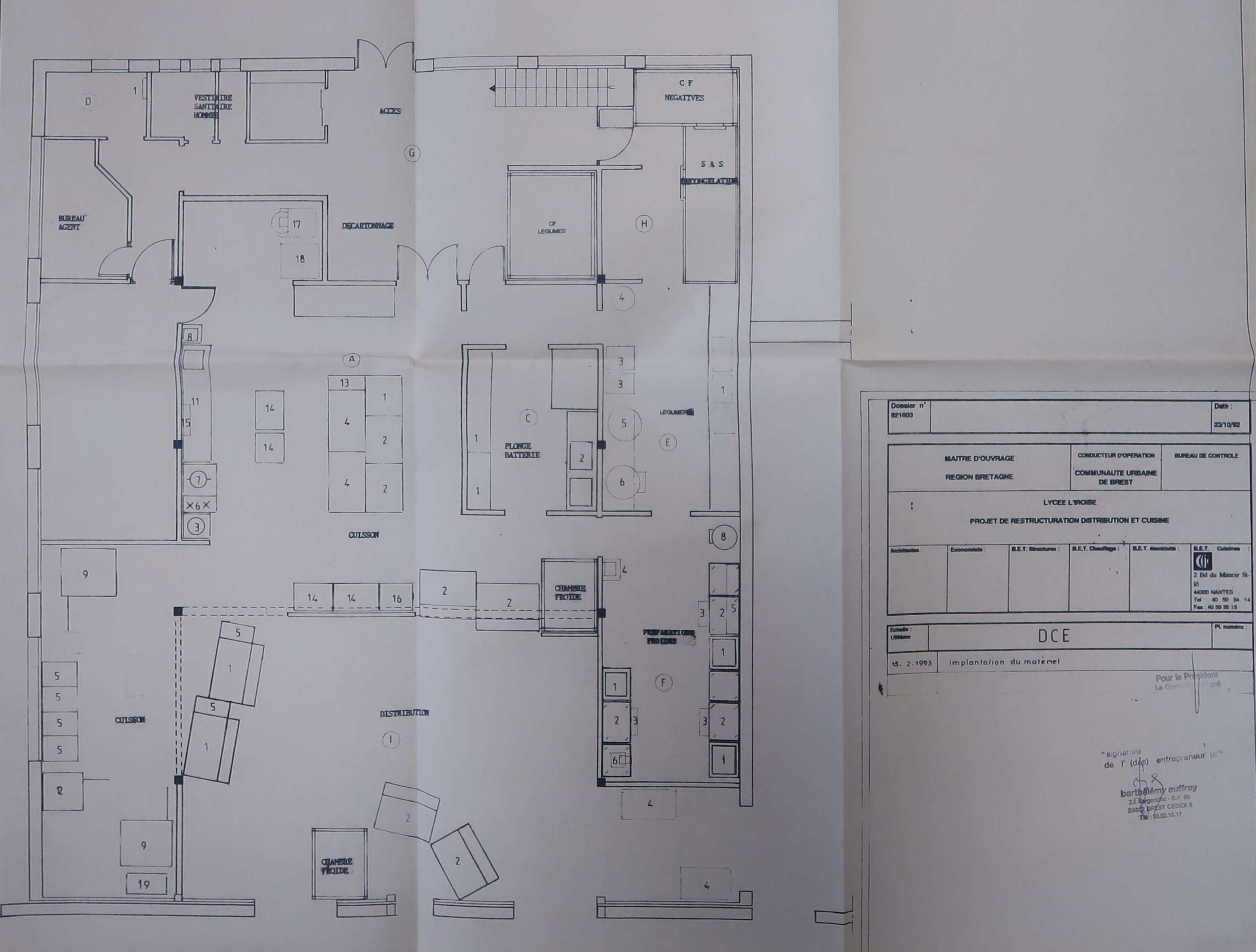
Plan de la restructuration des cuisines en 1993, en lien avec la création d'un self-service.
Immatriculation
IVR53_20212905082A0
Copyright
  • (c) Archives municipales et communautaires
Année de prise de vue
2021
Diffusion
reproduction soumise à autorisation du titulaire des droits d'exploitation
Type
dessin non numérique
Besoin d'informations sur cette illustration ?
Nous contacter
Références des documents reproduits
  • Archives municipales et communautaires de Brest : 192 W 63. Plans issus de la cote 192 W 63. Cuisines (1965) et restructuration de la restauration scolaire (1993), 1965-1993.

    Archives municipales et communautaires de Brest : 192 W 63