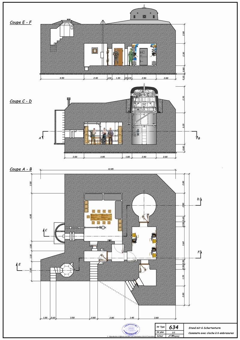
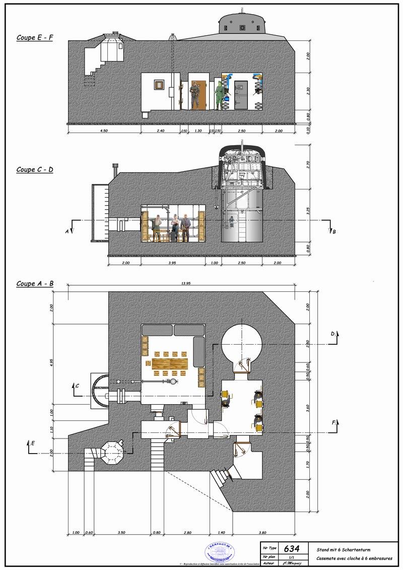
Bunker-casemate de type 634 avec cloche blindée pour mitrailleuse (B 97/15), Kerriou (Brest),
Plan d'un bunker-casemate de type 634 avec cloche bindée à 6 embrasures (Stand mit 6-Schartenturm)Immatriculation
IVR53_20222905341NUCA
Auteur de l'illustration
-
Moignez ChristianMoignez ChristianCliquez pour effectuer une recherche sur cette personne.
Copyright
- (c) Association Gerfaut 29
Diffusion
reproduction soumise à autorisation du titulaire des droits d'exploitation
Type
phototype numérique
Sujets
blockhaus
casemate
abri
poste d'observation
Besoin d'informations sur cette illustration ?
Nous contacter
-
Région Bretagne (Service de l'Inventaire du patrimoine culturel)
LÉCUILLIER, Guillaume (dir.), BESSELIÈVRE, Jean-Yves, BOULAIRE, Alain, CADIOU, Didier, CORVISIER, Christian, JADÉ, Patrick. Les fortifications de la rade de Brest : défense d'une ville-arsenal. Rennes : éditions Presses Universitaires de Rennes, collection Cahiers du patrimoine, 2011, n° 94, 388 p.
Président de l'association Gerfaut 29, créé le 5 avril 2013.