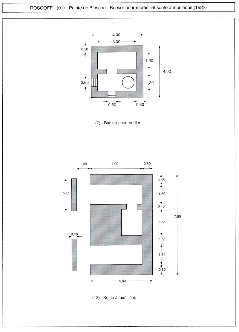
Ensemble fortifié (Stützpunkt Mo 94), Pointe de Bloscon (Roscoff),

Plan d'un bunker pour mortier et d'une soute à munitions (dessin : Olivier Doher, 1982)
Immatriculation
IVR53_20232905366NUCA
Copyright
  • (c) Collection particulière
Année de prise de vue
1987
Diffusion
reproduction soumise à autorisation du titulaire des droits d'exploitation
Type
phototype numérique
Besoin d'informations sur cette illustration ?
Nous contacter
Références des documents reproduits
  • Atlantikwall Superforum. Le Mur de l'Atlantique en France. Bunkerarchéologie.

    Message du 15 Juin 2007.

    https://atlantikwall.superforum.fr/t211p280-quiz-bretagne?highlight=Roscoff#6317