Batterie d'artillerie de côte (Mo 86 b) puis station d’expérimentation agricole, Vézen Doquet (Saint-Pol-de-Léon),
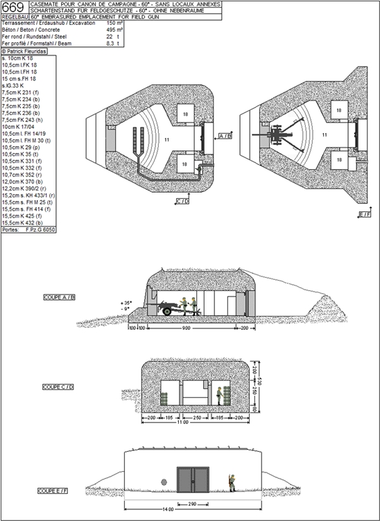
Plan d'un bunker - casemate de type 669 (dessin : Patrick Fleuridas)Immatriculation
IVR53_20232905466NUCA
Auteur du document reproduit
-
Fleuridas PatrickFleuridas PatrickCliquez pour effectuer une recherche sur cette personne.
Copyright
- (c) Collection particulière
Diffusion
reproduction soumise à autorisation du titulaire des droits d'exploitation
Type
phototype numérique
Besoin d'informations sur cette illustration ?
Nous contacter
-
FLEURIDAS, Patrick. HERBOTS, Karel. PEETERS, Dirk. Constructions normalisées. 600-699. 700-704. Regelbauten. S. l., 2008, 183 p., 2-914827-27-X.