Prison militaire maritime puis civile, maison d'arrêt dite Prison de Pontaniou, rue de Pontaniou (Brest),
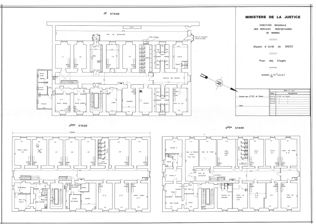
Plan de la maison d'arrêt de Brest, 12 janvier 1979 : étages (Ministère de la Justice, Direction régionale des services pénitentiaires de Rennes)Immatriculation
IVR53_20242910028NUCA
Auteur de l'illustration
-
École nationale d'administration pénitentiaireÉcole nationale d'administration pénitentiaireCliquez pour effectuer une recherche sur cette personne.
Copyright
- (c) École nationale d'administration pénitentiaire
Diffusion
reproduction soumise à autorisation du titulaire des droits d'exploitation
Type
document acquis par scan
Besoin d'informations sur cette illustration ?
Nous contacter