Station radar du Men Tan (Qu 13), Lescoff, pointe du Raz (Plogoff),
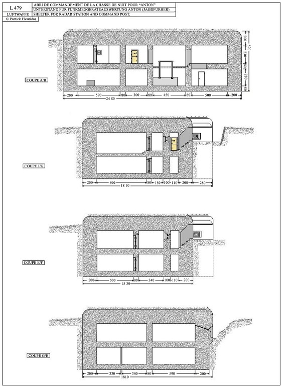
Coupes du bunker de commandement de type L 479 Anton de la chasse nocturne et diurne (dessin : Patrick Fleuridas)Immatriculation
IVR53_20242910056NUD
Auteur de l'illustration
-
Fleuridas PatrickFleuridas PatrickCliquez pour effectuer une recherche sur cette personne.
Copyright
- (c) Collection particulière
Diffusion
reproduction soumise à autorisation du titulaire des droits d'exploitation
Type
dessin numérique
Besoin d'informations sur cette illustration ?
Nous contacter