Station radar du Men Tan (Qu 13), Lescoff, pointe du Raz (Plogoff),
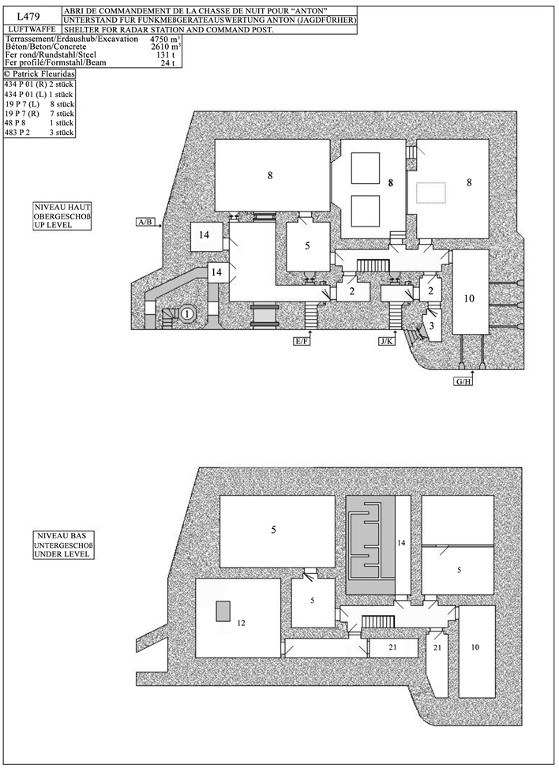
Plans du bunker de commandement de type L 479 Anton de la chasse nocturne et diurne (dessin : Patrick Fleuridas). Il est sur deux niveauxImmatriculation
IVR53_20242910057NUD
Auteur de l'illustration
-
Fleuridas PatrickFleuridas PatrickCliquez pour effectuer une recherche sur cette personne.
Copyright
- (c) Collection particulière
Diffusion
reproduction soumise à autorisation du titulaire des droits d'exploitation
Type
dessin numérique
Besoin d'informations sur cette illustration ?
Nous contacter