Photographe à l'Inventaire
Résultats de la recherche : "Corre A." 5 résultats
Notice d'illustration
IVR53_19903500211P
|
-
Eglise paroissiale Sainte-Anne (Romagné)
Plan de masse.
Notice d'illustration
IVR53_19903500076P
|
-
Église paroissiale Saint-Martin (Javené)
Plan au sol, 1968.
Notice d'illustration
IVR53_19903500075P
|
-
Église paroissiale Saint-Martin (Javené)
Coupe V-V', 1968.
Notice d'illustration
IVR53_19903500060P
|
-
Eglise paroissiale Saint-Martin (Lécousse)
Plan de masse (1968).
Notice d'illustration
IVR53_19903500047P
|
-
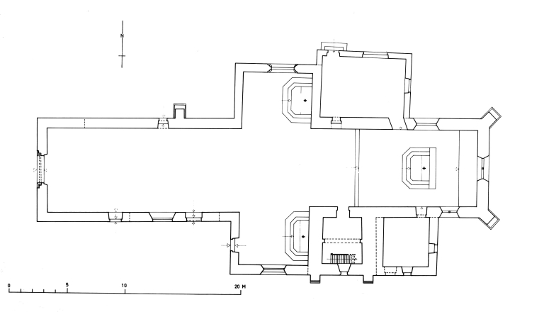
Eglise paroissiale Saint-Médard, rue de l'Eglise (Billé)
Plan au sol (1968).
Photographe à l'Inventaire