• étude d'inventaire
  • inventaire topographique, Fougères-Sud
  • enquête thématique départementale, Inventaire des églises et chapelles d'Ille-et-Vilaine
  • inventaire topographique, Fougères communauté
Eglise paroissiale Saint-Médard, rue de l'Eglise (Billé)
Œuvre étudiée
Auteur
Copyright

Dossier non géolocalisé

Localisation
  • Aire d'étude et canton Pays de Fougères - Fougères Sud
  • Commune Billé
  • Adresse rue de l'Eglise
  • Cadastre 1938 D2 360
  • Dénominations
    église paroissiale
  • Vocables
    Saint-Médard
  • Parties constituantes non étudiées
    croix monumentale, enclos, cimetière

L'édifice est partiellement daté.

1664 : porte du bras Sud du transept.

1629 : fenêtre du chœur

1750-1758 : réfection des murs Nord, Ouest et Sud de la nef

1864 : sacristie Nord

1886 : fenêtres occidentales des bras de transept

La mention la plus ancienne qu'on ait de l'église de Billé date de 1157. De cette époque, l'église conserve peut-être deux éléments : l'arc triomphal et la petite fenêtre du mur Nord de la nef. Les deux bras de transept ne sont pas datés. La mouluration gothique de la plinthe qu'ils portent, et celle des arcades, indiquent le 16e siècle. Le blason des Crocq, seigneurs de la Ronce, porté sur la charpente date cette-dernière du 16e siècle. La nef fût sans doute reconstruite entre 1750 et 1758 et la porte Nord de la nef fût surement ouverte lors de cette époque.

  • Période(s)
    • Principale : limite 16e siècle 17e siècle
    • Principale : 3e quart 18e siècle
    • Principale : 2e moitié 19e siècle
    • Secondaire : 11e siècle
    • Secondaire : 12e siècle , (incertitude)
    • Secondaire : 1ère moitié 17e siècle
  • Dates
    • 1604, porte la date
    • 1629, porte la date
    • 1864, porte la date
    • 1886, porte la date

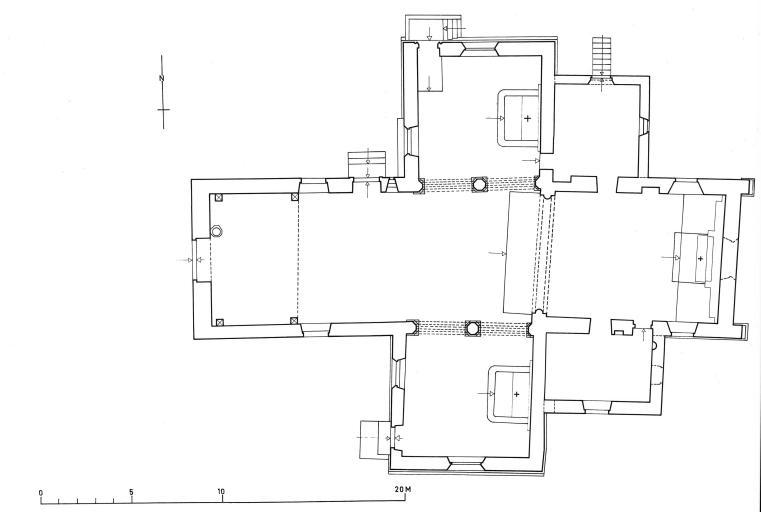
L'église saint Médard est située au centre du bourg sur un espace surélevé par rapport à la route qui la longe au Nord. L'ancien cimetière de Billé occupait les parties orientale et occidentale des jardins actuels de l'église.

L'édifice est construit en petit appareil irrégulier de grès et de schiste. Les encadrements, les chaînage d'angles, les rampants des pignons, les corniches, les plinthes et les arcades de la nef sont construits en grand appareil de granite. Le sol est aussi dallé de granite.

L'édifice adopte un plan en croix latine, à vaisseau unique couverts en charpente lambrissé. Le transept, dépourvu de croisée, vient se greffer quasiment dans l'axe de l'édifice. Chaque bras communique avec la nef par deux arcades. Le chœur qui se termine à l'Est par un mur plat aveugle, est séparé de la nef par un arc diaphragme. Le clocher est quant à lui construit dans œuvre.

L'emplacement du transept près de l'axe transversal de l'édifice détermine un chœur très profond. L'arc diaphragme est situé au droit des murs Est des bras du transept. Les bras du transept sont très saillants, de plan proche du carré. Leur largeur et leur profondeur étant égales à la largeur de la nef. L'église est complété par deux sacristies en hors œuvre situées dans les angles Nord-Est et Sud-Est des bras du transept et du chœur.

Le clocher est porté par quatre poteaux de bois adossés aux murs Nord et Sud de la nef.

Concernant la nef, le mur Ouest possède une porte en plein cintre à embrasure droite. Un bénitier est adossé au mur du côté nord de la porte. La nef est éclairée par deux fenêtres en plein cintre, en vis à vis sur les murs Nord et Sud. Le mur nord possède une porte et une petite fenêtre en plein cintre.

Les élévation des deux bras de transept sont identiques avec des baies axiales en arc bisé aux pignon. Le mur Est est aveugle et porte un retable. Des baies modernes ont été aménagées sur le mur Ouest. Chaque bras de transept possède un accès direct à l'extérieur. Ils communiquent également avec la nef par deux arcades en arc brisé mouluré de deux cavets, pénétrant directement une pile centrale octogonale sur un socle carré dont la base est moulurée de deux tores. Un blason a été martelé au sommet de l'arcade Sud.

L'entrée du chœur est marquée par un arc diaphragme en arc brisé à deux rouleaux. Le rouleau supérieur est mouluré aux angles d'un tore se prolongeant sur le piédroit. Le rouleau inférieur retombe sur les demi colonnes engagées à chapiteaux à tailloir de plan carré et corbeille ornée de boules. Le chœur est éclairé par deux fenêtres en arc surbaissé en vis à vis sur les murs Nord et Sud. A droite de la fenêtre Sud, une pierre porte la date de 1629. Un retable se trouve dans la partie Est du chœur.

D'un point de vue extérieur, le mur pignon de la façade occidentale est séparé en deux niveaux par une corniche moulurée, prolongeant les corniches des murs gouttereaux. Le premier niveau est ouvert d'un haut portail en plein-cintre. Le deuxième niveau est ouvert d'un grand oculus circulaire. Sous l'oculus, une pierre porte un écu martelé. Les pierres d'assises des rampants portent une petite croix monolithe.

Pour la façade Sud, le mur de la nef est ouvert d'une fenêtre en plein-cintre. La corniche est moulurée d'un tore et d'un bandeau. Le bras du transept porte un plinthe moulurée. Le mur Ouest est ouvert d'une fenêtre en arc brisé et d'une porte rectangulaire à linteau monolithe portant un blason et la date de 1664. Le mur Sud est sommé d'un croix monolithe et est ouvert d'une fenêtre axiale en arc brisé surmontée d'un blason martelé. Le mur Est est aveugle. Les deux murs gouttereaux portent une corniche identique à celle de la nef.

La façade Nord au niveau de la nef possède une fenêtre en plein cintre et une porte rectangulaire encadrée de pilastres, à linteau monolithe orné d'un fronton triangulaire et portant le sigle I.H.S. Le linteau est surmonté d'un arc de décharge, décentré par rapport à l'axe vertical de la porte.

La façade Est est épaulée aux angles par deux contreforts droits à ressauts. Le fenêtre axiale a été obstruée, en arc brisé souligné d'une archivolte. Les pierres d'assise et le sommet des rampants portent une croix monolithe.

Les deux vaisseaux sont couverts d’une toiture à deux versants se recoupant à même hauteur. Les deux sacristies sont couvertes d'une toiture à deux versants pénétrant perpendiculairement la toiture principale. La couverture est en ardoise.

Le clocher possède une charpente couverte en ardoise. La chambre de cloche est de plan carré, ouverte sur chaque flan d'abats-son. La flèche est aiguë, octogonale et cotonnée de clochetons également octogonaux. Sur le versant nord, le clocheton secondaire porte une horloge. La flèche octogonale est cotonnée au Nord de deux petits clochetons et d'une horloge.

La charpente est à ferme portant panne. Quatre entraits sont visibles de la nef. Les entraits octogonaux sont moulurés d'un tore sur les angles et sont engoulées aux deux extrémités ainsi qu'à la retombée du poinçon. Les entraits portent tous un écu. Les lambris retombent sur des sablières dont celles de la nef comportent un corps de moulures. Celles des bras de transept comportent deux corps de moulures superposés.

Au niveau de la distribution intérieure, les deux sacristies de plan rectangulaire communiquent avec le chœur. L'accès aux différents niveaux du clocher se fait par des échelles intérieures.

  • Murs
    • granite
    • grès
    • moellon
    • appareil mixte
  • Toits
    ardoise
  • Plans
    plan en croix latine
  • Étages
    1 vaisseau
  • Couvrements
    • lambris de couvrement
  • Couvertures
    • toit à longs pans
    • flèche polygonale
    • noue
    • pignon découvert
  • Typologies
    arc diaphragme ; clocher en façade ; chevet plat
  • Techniques
    • sculpture
  • Représentations
    • armoiries
    • animal fantastique
  • Précision représentations

    Armes de la famille Crocq ; sujet : animal fantastique, engoulant, support : charpente.

  • Statut de la propriété
    propriété publique

Annexes

  • Etude d’inventaire sur la commune de Billé, 1969 :
Date(s) d'enquête : 1968; Date(s) de rédaction : 1968, 1972, 1994, 2013
Articulation des dossiers