Dédiée jadis à Saint-Cyr et à Sainte-Juliette, et actuellement à la Sainte-Vierge fêtée le jour de l'assomption, l'église de Combourtillé a été retouchée à tant de reprises différentes qu'il est impossible de déterminer le caractère architectural qui y domine. Dans un pan de mur qui a été démoli en 1848, on voyait les traces d'une baie dont la pierre d'amortissement, taillée en plein cintre, rappelait le style des 11e et 12e siècles. Ainsi, son église, plusieurs fois remaniée, semble remonter à l'époque romane. Elle possédait primitivement une seule nef, à laquelle ont été ajoutés un collatéral nord à la fin du 15e et un collatéral sud en 1848. Le chevet est droit. Un clocher en bâtière a fait place au clocher actuel en 1848. L'église possédait, dit-on, autrefois, une verrière du 15e siècle. Ses vitres portaient les armes des seigneurs Malenoë en Saint-Christophe-des-Bois, qui avaient aussi un enfeu. Les fonts sont surmontés d'un baldaquin Louis XVI. On conserve en l'église une croix processionnelle et un encensoir qui ont été donnés par un recteur de la fin du 18e siècle.
- inventaire topographique, Fougères-Sud
- enquête thématique départementale, Inventaire des églises et chapelles d'Ille-et-Vilaine
- inventaire topographique, Fougères communauté
Dossier non géolocalisé
-
Aire d'étude et canton
Pays de Fougères - Fougères Sud
-
Commune
Combourtillé
-
Lieu-dit
Bourg
-
Cadastre
1966
A1
77
-
Dénominationséglise paroissiale
-
VocablesNotre-Dame
Cette église du 16e siècle, toujours entourée du cimetière, est remaniée au milieu du 19e siècle, notamment la nef et le bas-côté sud. La tour est édifiée en 1847-1848, par l’architecte Couétoux. La sacristie est construite en 1850.
Les stalles et les boiseries sont datées de 1890.
-
Période(s)
- Principale : 16e siècle
- Principale : milieu 19e siècle
-
Dates
- 1850, daté par travaux historiques
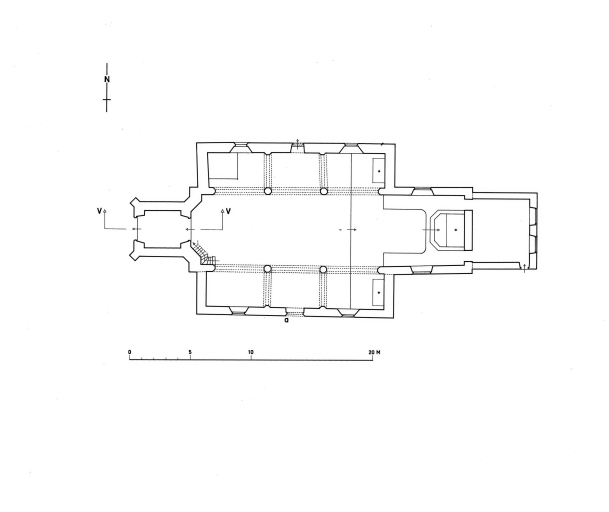
L'église de Combourtillé se situe à l'est du bourg, elle est toujours entourée de son cimetière. Elle présente un plan allongé orienté ouest-est, selon la tradition.
L'église actuelle se compose de trois nefs qui communiquent entre elles au moyen de trois arcades. Le collatéral nord a été construit vers la fin du 15e siècle, celui du sud n'est que de 1848. Il n'y a point de transept, et le chœur, à chevet droit, est aveuglé par une sacristie. Il y avait autrefois un clocher en bâtière, mais on a récemment construit au pied de la nef une petite tour de style ogival. Il y avait une verrière du 15e siècle en cette église, mais il n'en reste plus de trace.
Elle est maçonnée en moellon de grès et de granite, hormis les encadrements d'ouvertures et les chaînages d'angles qui sont en grand appareil de pierre de taille de granite et harpés.
A l'ouest, elle présente une tour-clocher. Son portail est surmonté d'une accolade, les pierres du linteau sont assemblées en claveau. Au-dessus du portail se trouvent trois fenêtres ogivales. Il y a des contreforts courants le long de la tour carrée, aux quatre coins de la tour se trouvent des pinacles. Le clocher octogonal présente trois fenêtres dotées d’abat-sons en bois, elles se trouvent au nord, à l'ouest et au sud. L'encadrement d'une quatrième fenêtre existe à l'est mais elle est comblée par le faîte du toit. Le toit s'élance en flèche polygonale et est couvert d'ardoise.
Dans l'angle, entre la tour-clocher et les pignons sud, se trouve une avancée qui correspond au mur sud de l'ancienne église.
Les façades nord et sud possèdent trois pignons chacun. Le pignon central possède une porte surmontée d'une fenêtre. Les pignons latéraux ne possèdent qu'une fenêtre chacun. Ces fenêtres sont toutes trilobées et leurs pierres sont chanfreinées. Leurs vitraux colorés sont ornés de motifs végétaux et géométriques, ils sont protégés par des grilles. La porte du pignon central de la façade sud dispose d'une moulure complexe caractéristique de la fin du 15e siècle. Il s'agit certainement d'un remploi provenant de l'église avant rénovation, de même pour les fenêtres trilobées.
À l'est, le pignon du chevet est aveugle et possède une croix sommitale. Ses murs nord et sud sont ouverts par une fenêtre en arc brisé. Ce sont ces deux fenêtres qui accueillent les vitraux peints par Alleaume. Le chevet se prolonge au nord par une sacristie dont le pignon est percé de quatre ouvertures : une porte, une petite fenêtre et deux belles fenêtres. On trouve enfin une chaufferie au sud-est du bâtiment qui abrite une cheminée récente.
-
Murs
- granite moellon
- grès moellon
- granite grand appareil
-
Toitsardoise
-
Plansplan allongé
-
Étages3 vaisseaux
-
Couvrements
- fausse voûte en berceau brisé
-
Élévations extérieuresélévation à travées
-
Couvertures
- toit à longs pans
- flèche polygonale
- pignon couvert
- noue
-
Typologiesa pignons multiples ; clocher-porche ; chevet plat
-
État de conservationrestauré
-
Statut de la propriétépropriété publique
- (c) Région Bretagne
- (c) Archives départementales d'Ille-et-Vilaine
- (c) Archives départementales d'Ille-et-Vilaine
- (c) Inventaire général, ADAGP
- (c) Inventaire général, ADAGP
- (c) Inventaire général, ADAGP
- (c) Inventaire général, ADAGP
- (c) Inventaire général, ADAGP
- (c) Inventaire général, ADAGP
- (c) Inventaire général, ADAGP
- (c) Inventaire général, ADAGP
- (c) Inventaire général, ADAGP
- (c) Inventaire général, ADAGP
- (c) Inventaire général, ADAGP
- (c) Inventaire général, ADAGP
- (c) Région Bretagne
- (c) Région Bretagne
- (c) Région Bretagne
- (c) Région Bretagne
- (c) Région Bretagne
- (c) Région Bretagne
- (c) Région Bretagne
- (c) Région Bretagne
- (c) Région Bretagne
- (c) Région Bretagne
- (c) Région Bretagne
- (c) Région Bretagne
- (c) Région Bretagne
- (c) Région Bretagne
- (c) Région Bretagne
- (c) Région Bretagne
- (c) Région Bretagne
Bibliographie
-
Région Bretagne (Service de l'Inventaire du patrimoine culturel)
BANEAT, Paul. Le département d'Ille-et-Vilaine, Histoire, Archéologie, Monuments. Rennes : J. Larcher, 1929.
-
Région Bretagne (Service de l'Inventaire du patrimoine culturel)
Rennes : Fougeray, Paris : René Haton, 1884.
-
Le patrimoine des communes d'Ille-et-Vilaine. Paris : Flohic éditions 2000, 2 tomes, (Le patrimoine des communes de France).
Photographe à l'Inventaire