Photographe à l'Inventaire
Dossier d’œuvre architecture IA00007223
| Réalisé par
Barbedor Isabelle
;
Barbedor Isabelle
Cliquez pour effectuer une recherche sur cette personne.
- enquête thématique départementale, Inventaire des églises et chapelles d'Ille-et-Vilaine
Eglise paroissiale Saint-Martin (Beaucé)
Œuvre étudiée
Auteur
Copyright
- (c) Inventaire général, ADAGP
Dossier non géolocalisé
Localisation
-
Aire d'étude et canton
Ille-et-Vilaine - Fougères Nord
-
Commune
Beaucé
-
Cadastre
1973
B
230
-
Dénominationséglise paroissiale
-
VocablesSaint-Martin
Mention de la paroisse au 11e siècle. De l'époque romane l'église conserve deux petites baies (mur nord) . Elle a été reconstruite au 17e siècle : la porte est du bras sud porte la date 1621, l'élévation ouest la date 1627.
-
Période(s)
- Principale : 1ère moitié 17e siècle
- Secondaire : 12e siècle
-
Dates
- 1621, porte la date
- 1627, porte la date
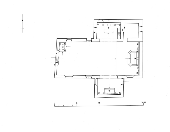
Plan en croix latine, lambris de couvrement, clocher latéral recouvert d'une toiture à l'impériale, chevet plat. Pignons sommés de croix.
-
Murs
- granite
- schiste
- moellon
- appareil mixte
-
Toitsardoise
-
Plansplan en croix latine
-
Étages1 vaisseau
-
Couvrements
- lambris de couvrement
-
Couvertures
- toit à longs pans
- toit à l'impériale
- noue
- pignon découvert
- pignon couvert
-
Typologiesclocher latéral ; chevet plat
-
Techniques
- sculpture
-
Représentations
- armoiries
- IHS
-
Précision représentations
Sujet : armes martelées non identifiées ; sujet : IHS, support : pignon occidental.
-
Statut de la propriétépropriété publique
- (c) Inventaire général, ADAGP
- (c) Inventaire général, ADAGP
- (c) Inventaire général, ADAGP
- (c) Inventaire général, ADAGP
- (c) Région Bretagne
- (c) Région Bretagne
- (c) Région Bretagne
Date(s) d'enquête :
1979;
Date(s) de rédaction :
1994
(c) Inventaire général
(c) Conseil général d'Ille-et-Vilaine
Barbedor Isabelle
Barbedor Isabelle
Cliquez pour effectuer une recherche sur cette personne.
Articulation des dossiers
Photographe à l'Inventaire