Photographe à l'Inventaire
- enquête thématique départementale, Inventaire des églises et chapelles d'Ille-et-Vilaine
- (c) Inventaire général, ADAGP
Dossier non géolocalisé
-
Aire d'étude et canton
Ille-et-Vilaine - Fougères Nord
-
Commune
La Chapelle-Janson
-
Cadastre
1974
AB
75
-
Dénominationsprieuré, église paroissiale
-
Genrede bénédictins
-
VocablesSaint-Lezin
-
Parties constituantes non étudiéescroix monumentale
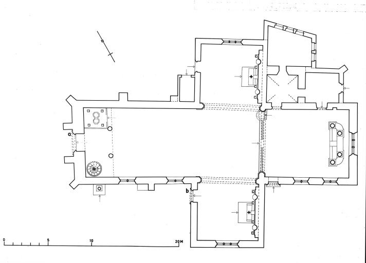
A l'origine priorale, l'église dépendait de l'abbaye Saint-Georges de Rennes. Elle remonte pour sa partie la plus ancienne au 15e siècle (vestiges dans le massif occidental) . En majeure partie du 16e siècle (chapelle nord datée 1556), elle a été modifiée au 17e siècle : en 1629 l'ancienne chapelle seigneuriale située au nord du choeur est transformée en sacristie, puis en 1641 la chapelle sud est reprise en réemployant la porte du 16e siècle. La façade occidentale a également été reprise en 1777 (porte la date). Des remaniements de détails sont également à signaler au 19e siècle.
-
Période(s)
- Principale : 2e moitié 16e siècle
- Principale : 2e quart 17e siècle
- Principale : 4e quart 18e siècle
- Secondaire : 2e moitié 15e siècle
- Secondaire : 19e siècle
-
Dates
- 1556, porte la date
- 1629, daté par travaux historiques
- 1641, porte la date
- 1777, porte la date
Plan en croix latine, lambris de couvrement, clocher en bas de la nef, chevet plat. Portes sculptées des entrées latérales à signaler. Sablières sculptées, entraits à engoulants.
Important mobilier :
- Bénitier en granite (12e siècle); classement MH 1907.
- Fonts baptismaux composés de deux cuves en granite décorées d'arcatures trilobées (14e siècle); classement MH 1907.
- Deux verrières (1552, 1558); classement MH 1907.
- Deux retables (17e siècle); classement MH 1951.
- Baldaquin et couvercle des fonts baptismaux (18e siècle); classement MH 1919.
-
Murs
- granite
- schiste
- appareil mixte
-
Toitsardoise
-
Plansplan en croix latine
-
Étages1 vaisseau
-
Couvrements
- lambris de couvrement
-
Élévations extérieuresélévation à travées
-
Couvertures
- toit à longs pans
- flèche carrée
- noue
- pignon couvert
- pignon découvert
-
Typologiesclocher en bas de la nef ; chevet plat
-
État de conservationrestauré
-
Techniques
- sculpture
-
Représentations
- coeur
- animal fantastique
- armoiries
- instrument de la Passion
-
Précision représentations
Sujet : instruments de la Passion avec coeur, support : porte du transept sud ; sujet : animal fantastique, support : acrotères et engoulants de la charpente ; sujet : armoiries des lys, de gueules à la fasce d'argent, chargée de 4 hermines de sable et surmontée de 2 fleurs de lys d'argent, support : piles de la croisée du transept.
-
Statut de la propriétépropriété publique
-
Intérêt de l'œuvreà signaler
-
Éléments remarquablesporte
- (c) Inventaire général, ADAGP
- (c) Inventaire général, ADAGP
- (c) Inventaire général, ADAGP
- (c) Inventaire général, ADAGP
- (c) Inventaire général, ADAGP
- (c) Inventaire général, ADAGP
- (c) Inventaire général, ADAGP
- (c) Inventaire général, ADAGP
- (c) Inventaire général, ADAGP
- (c) Inventaire général, ADAGP
- (c) Inventaire général, ADAGP
- (c) Inventaire général, ADAGP
- (c) Inventaire général, ADAGP
- (c) Inventaire général, ADAGP
- (c) Inventaire général, ADAGP
- (c) Inventaire général, ADAGP
- (c) Inventaire général, ADAGP
- (c) Inventaire général, ADAGP
- (c) Inventaire général, ADAGP
- (c) Inventaire général, ADAGP
- (c) Inventaire général, ADAGP
- (c) Inventaire général, ADAGP
- (c) Inventaire général, ADAGP
- (c) Région Bretagne
- (c) Région Bretagne
- (c) Région Bretagne
- (c) Région Bretagne
- (c) Région Bretagne
- (c) Région Bretagne
- (c) Région Bretagne
- (c) Région Bretagne
- (c) Région Bretagne
- (c) Région Bretagne
- (c) Région Bretagne
- (c) Région Bretagne
- (c) Région Bretagne
- (c) Région Bretagne
- (c) Région Bretagne
- (c) Région Bretagne
- (c) Région Bretagne
- (c) Région Bretagne
- (c) Région Bretagne
- (c) Région Bretagne
- (c) Région Bretagne
- (c) Région Bretagne
- (c) Région Bretagne
- (c) Région Bretagne
- (c) Région Bretagne
- (c) Région Bretagne
- (c) Région Bretagne
- (c) Région Bretagne
- (c) Région Bretagne
- (c) Région Bretagne
- (c) Région Bretagne
- (c) Région Bretagne
- (c) Région Bretagne
Photographe à l'Inventaire