• enquête thématique départementale, Inventaire des églises et chapelles d'Ille-et-Vilaine
  • inventaire topographique, Fougères communauté
Prieuré de chanoines réguliers de Saint-Augustin, église paroissiale Saint-Martin (Fleurigné)
Œuvre étudiée
Auteur
Copyright

Dossier non géolocalisé

Localisation
  • Aire d'étude et canton Ille-et-Vilaine - Fougères Nord
  • Commune Fleurigné
  • Cadastre 1987 AP 40
  • Dénominations
    prieuré, église paroissiale
  • Genre
    de chanoines réguliers de saint Augustin
  • Vocables
    Saint-Martin
  • Parties constituantes non étudiées
    croix monumentale, enclos, cimetière

Saint-Martin de Tours est le patron de cette église construite sur le site d'une église antérieure.

Elle suit un plan en croix latine, et les extrémités du transept sont à pans coupés. L'architecture, très classique, est typique de l'époque de Louis XIV. Le tabernacle provient de l'abbaye de Rillé de Fougères, dont dépendait l'église Saint-Martin. On y a replacé une porte de style ogival fleuri, ornée de pinacles et de fleurons, qui rappelle une partie de l'édifice précédent, bâtie au 15e siècle. C'est en 1666 que furent commencés les travaux de reconstruction de cette église par la famille de Langan, qui possédait le Bois Février, terre jouissant des droits de fondation et prééminence à Fleurigné. On éleva alors le chœur et les deux transepts, et les travaux s'achevèrent en 1669, comme le prouve l'inscription suivante placée sur l'un des arbalétriers de l’inter-transept : "Fut faict par la grâce de Dieu par M. Julien Boulay cherpantier. 1669".

La nef fut construite plus tard, probablement vers 1729, car on voit ce millésime gravé sur la façade occidentale.

Le toit repose sur une corniche composée de petits modillons en pierre et d'un aspect assez agréable ; au-dessous on remarque une série de pierres de tuffeau engagées dans la muraille et sans doute destinées à recevoir des écussons aujourd'hui disparus.

Le retable provient de l'abbaye de Rillé. Les cinq panneaux sont encadrés de colonnes torses portant des arcatures dorées. Les représentations sont celles de la Vierge, de saint Pierre, du Christ auréolé, de saint Paul avec son épée et de saint Jean Baptiste.

La charpente est réalisée en trois ans de travail. Sur une poutre, le maître charpentier a signé et daté son travail. La base de la charpente est sculptée de modillons. Les angles du chœur et de la nef sont soulignés par des chapiteaux de bois.

L'autel dédié au Sacré-Cœur est significatif des nouvelles dévotions de l'époque. Des colonnes de bois doré encadrent le panneau central sur lequel sont peints deux anges adorant le Sacré-Cœur. Une statue de Jésus montrant son cœur rayonnant, installée près de cet autel, provient du sanctuaire précédant la construction du Sacré-Cœur à Paris. Au-dessus de cette statue, un vitrail représente également le cœur enflammé du Christ.

Le vitrail représentant Blanche de Castille enseignant à son fils saint Louis fut réalisé par l'atelier Lecomte et Colin. La partie centrale du vitrail, de couleurs plus foncées, met en valeur la scène par rapport à la représentation architecturale dans les tons jaune clair qui l'entoure. Ce vitrail appartient à un ensemble plus vaste de vitraux classés, réunissant les verrières du chœur et les grisailles de la nef.

Dans le chœur se trouve l'enfeu monumental de la famille Bois-Février-Langan. C'est une grande arcature surmonté d'un vaste entablement avec fronton ; au centre est un écusson : de sable au léopard d'argent, armé, lampassé et couronné de gueules, qui est de Langan, accompagné de la devise : Immune opprobrio genus. Plus bas, une plaque commémorative présentait une longue inscription, cette plaque est aujourd'hui dans le château de Bois Février. Cet enfeu montre l'importance de l'action de cette famille pour le développement de l'église. L'architecture de granite, avec ses colonnes doriques et ioniques, est significative du goût pour le style classique au 18e siècle.

Cette église priorale dépendait de l'abbaye de Rillé. L'édifice actuel date du 3e quart du 17e siècle, il a été édifié de 1666 à 1669 avec remploi d'une porte du 15e siècle pour la famille de Langan, seigneur du Bois Février. La nef a été construite en 1729 (porte la date). La première église a été fondée vers 1350 au même emplacement.

La chaire, les trois autels, le dallage du chœur en marbre, les vitraux, les fonds baptismaux, et un des confessionnaux datent de 1830 environ.

  • Période(s)
    • Principale : 3e quart 17e siècle
    • Principale : 2e quart 18e siècle
    • Secondaire : 16e siècle, 2e quart 19e siècle
  • Dates
    • 1729, porte la date

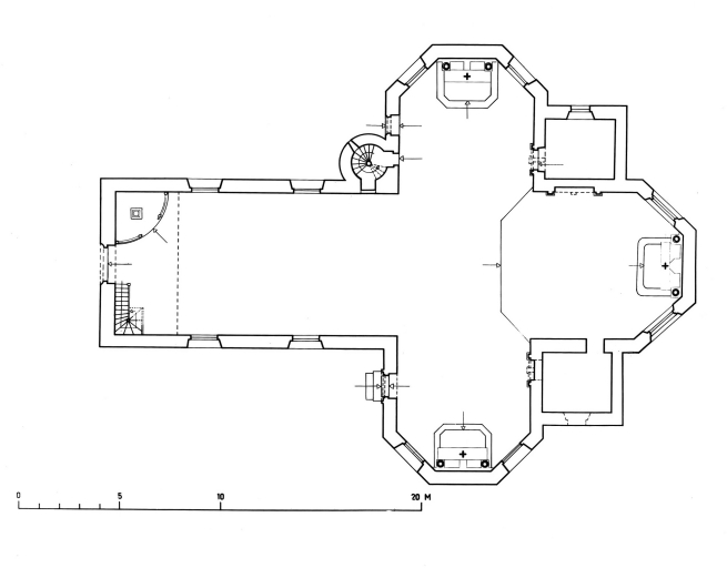
Plan en croix latine, lambris de couvrement, clocher médian, transept à pans coupés, chevet à pans coupés.

L'église se compose d'une nef à chevet droit et d'un transept à pans coupés. La croisée du transept est accostée au nord d'une petite tourelle conduisant au clocher : celui-ci est formé de deux campaniles en dômes superposés. Le toit repose sur une corniche modillonnée, quand la nef a été agrandie, on a fait une corniche moins ouvragée. On a replacé dans l'église une porte à pinacles et fleurons provenant de celle qui l'a précédée. Chacun des croisillons possède une porte Renaissance flanquée de pilastres et sommée d'un fronton arrondi ; une grande niche analogue, à fronton triangulaire, se voit au-dessus des portes. La charpente à coupe pyramidale est surmontée d'une poivrière octogonale. Le clocher repose sur des arcs-boutants. La porte extérieure de la chapelle sud date de l'ancienne église.

A l'intérieur, les deux portes cintrées des sacristies sont surmontées de deux niches avec décorations de granite. Sur la paroi latérale du choeur on trouve l'entrée simulée de l'enfeu des de Langan. On trouve un confessionnal du 18e siècle et un autre du 19e siècle.

L'église conserve une cloche datée 1509 provenant de l'abbaye de Rillé, elle est classée Monument historique.

L'édifice avait autrefois des vitraux et une litre intérieure et extérieure aux armes des seigneurs du Bois-Février.

  • Murs
    • granite
    • schiste
    • moellon
    • appareil mixte
  • Toits
    ardoise
  • Plans
    plan en croix latine
  • Étages
    1 vaisseau
  • Couvrements
    • lambris de couvrement
  • Couvertures
    • toit à longs pans
    • toit à l'impériale
    • noue
    • pignon découvert
    • croupe
  • Escaliers
  • Typologies
    transept à pans coupés ; chevet à pans coupés ; clocher médian
  • État de conservation
    restauré
  • Statut de la propriété
    propriété de la commune
  • Intérêt de l'œuvre
    à signaler
  • Éléments remarquables
    choeur
  • Protections
    inscrit MH, 1931/04/17
  • Référence MH

Bibliographie

  • GUILLOTIN DE CORSON, abbé. Pouillé historique de l'archevêché de Rennes. Rennes : Fougeray, Paris : René Haton, 1884.

    pp. 592-595
  • BANEAT, Paul. Le département d'Ille-et-Vilaine, Histoire, Archéologie, Monuments. Rennes : J. Larcher, 1929

    pp. 12-13
  • André Catherine, Brugallé René, Cassigneul Jacqueline, Dobé Sylvie, Gernigon Joseph, Hurtin Stéphanie, Perrigault Tintin, Thyard Jean, Adam Claude, Bénéat Gildas, Le Patrimoine des Communes de France, Le Patrimoine des Communes d’Ille et Vilaine, Flohic Editions, 2000

    p. 575
Date(s) d'enquête : 1979; Date(s) de rédaction : 1994, 2013
Articulation des dossiers