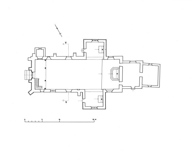
Cette église prieurale mentionnée dès le 12e siècle dépend à cette époque de l'abbaye de Saint-Pierre-de-Rillé. Dédiée à saint Pierre, représenté dans le chœur par la statue du saint avec les clefs et le coq, et à saint Paul, figuré avec le glaive ; on y trouve des vestiges de l'architecture de toutes les époques, depuis le style roman dans la nef jusqu'à l'ogival flamboyant. Le massif occidental est édifié au 15e siècle, tandis que le transept date du siècle suivant. La nef est couverte d'une charpente. L'édifice primitif se compose d'une seule nef à chevet droit ; au sud de cette nef est une fenêtre flamboyante, et au nord une fenêtre ogivale trilobée ; au bas, le portail en ogive, avec colonnettes et tympan gothique, était surmonté jadis d'un campanile, remplacé en 1826 par un clocher. En 1833, on releva le chevet et l'on ajouta deux chapelles, de façon à donner la forme d'une croix à tout l'édifice. On voyait en 1781 dans cette église les autels du Rosaire et de Saint-Sébastien ; la confrérie du Rosaire y fut établie, en effet, dès le 2 mai 1653. L'ancien autel majeur était de 1669, mais le prieur M. Bordier en fit construire un nouveau en 1771. Les fondations desservies en ce temple valaient 70 livres en 1790. Le roi, en qualité de baron de Fougères, avait les droits de supériorité dans l'église de Landéan, mais le seigneur du Hallay y jouissait des droits de seigneur fondateur et prééminencier, ayant son banc, son enfeu et ses armoiries dans le choeur. Le seigneur d'Ardennes, en Saint-Georges-de-Reintembault, possédait aussi quelques prééminences, ainsi que le seigneur de l'Artoire. Ce dernier avait son banc et son enfeu prohibitif, avec ses armoiries, devant l'autel de Notre-Dame et Saint-Gorgon.
- enquête thématique départementale, Inventaire des églises et chapelles d'Ille-et-Vilaine
- inventaire topographique, Fougères communauté
Dossier non géolocalisé
-
Aire d'étude et canton
Pays de Fougères - Fougères Nord
-
Commune
Landéan
-
Cadastre
1985
AB
93
-
Dénominationsprieuré, église paroissiale
-
Genrede chanoines réguliers de saint Augustin, de génovéfains
-
VocablesSaint-Pierre
-
Parties constituantes non étudiéescroix monumentale
Eglise priorale mentionnée au 12e siècle, appartenant à l'abbaye Saint-Pierre-de-Rillé, conserve des vestiges d'appareil roman dans la nef. L'édifice actuel date du 15e siècle (massif occidental) et du 16e siècle (transept) . Il a été en partie remanié en 1826 (clocher) et en 1833 (transept et choeur) avec remploi de baies. Inscription bras sud du transept : J. DUROCHER CURE PR PRL 1833.
-
Période(s)
- Principale : 15e siècle
- Principale : 16e siècle
- Principale : 2e quart 19e siècle
- Secondaire : 12e siècle
-
Dates
- 1833, porte la date
Plan en croix latine, lambris de couvrement, clocher en façade recouvert d'ardoises avec campanile, chevet plat. Façade ouest scandée de quatre contreforts qui encadrent l'entrée principale.
-
Murs
- granite
- pierre de taille
- moellon
- appareil mixte
-
Toitsardoise
-
Plansplan en croix latine
-
Étages1 vaisseau
-
Couvrements
- lambris de couvrement
-
Couvertures
- toit à longs pans
- toit à l'impériale
- noue
- pignon couvert
- pignon découvert
-
Typologiesclocher en façade ; chevet plat
-
État de conservationrestauré
-
Statut de la propriétépropriété publique
- (c) Inventaire général, ADAGP
- (c) Inventaire général, ADAGP
- (c) Inventaire général, ADAGP
- (c) Inventaire général, ADAGP
- (c) Inventaire général, ADAGP
- (c) Inventaire général, ADAGP
- (c) Région Bretagne
- (c) Région Bretagne
- (c) Région Bretagne
- (c) Région Bretagne
- (c) Région Bretagne
- (c) Région Bretagne
- (c) Région Bretagne
- (c) Région Bretagne
- (c) Région Bretagne
- (c) Région Bretagne
- (c) Région Bretagne
- (c) Région Bretagne
- (c) Région Bretagne
- (c) Région Bretagne
- (c) Région Bretagne
- (c) Région Bretagne
- (c) Région Bretagne
- (c) Région Bretagne
- (c) Région Bretagne
- (c) Région Bretagne
- (c) Région Bretagne
- (c) Région Bretagne
- (c) Région Bretagne
- (c) Région Bretagne
- (c) Région Bretagne
- (c) Région Bretagne
- (c) Région Bretagne
- (c) Région Bretagne
- (c) Région Bretagne
- (c) Région Bretagne
Bibliographie
-
GUILLOTIN DE CORSON, abbé. Pouillé historique de l'archevêché de Rennes. Rennes : Fougeray, Paris : René Haton, 1884.
-
BANEAT, Paul. Le département d'Ille-et-Vilaine, Histoire, Archéologie, Monuments. Rennes : J. Larcher, 1929
Photographe à l'Inventaire