Église dont la nef, du 15e siècle, a été agrandie de collatéraux en plusieurs campagnes au 16e siècle dont deux datées 1524 et 1542 par des inscriptions sur des sablières. Façade ouest remaniée au 18e siècle, pour sa partie haute. Clocher du 18e siècle.
- enquête thématique départementale, Inventaire des églises et chapelles d'Ille-et-Vilaine
- inventaire topographique, Fougères communauté
Dossier non géolocalisé
-
Aire d'étude et canton
Pays de Fougères - Fougères Nord
-
Commune
Le Loroux
-
Cadastre
1987
AE
96
-
Dénominationséglise paroissiale
-
VocablesSaint-Martin
-
Période(s)
- Principale : 15e siècle
- Principale : 16e siècle
- Principale : 18e siècle
-
Dates
- 1524, porte la date
- 1542, porte la date
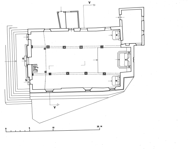
L'église de Saint-Martin située à l'extrémité est de la commune de Le Loroux est constituée d'une nef munie de deux bas-côtés. L'appareillage mixte est constitué de pierre de taille et de moellons en granite. Les toits à long pans sont couverts d'ardoises. Quelques gargouilles prennent place à l’extérieur des bas côtés. Une porte en arc brisé entourée de deux portes en plein-cintre prend place en façade.
Les parties les plus anciennes de l'église actuelle remontent sans doute à la période romane et ont été reprises à plusieurs périodes. L'église romane d'origine est, en effet, nommée dans les chartes de l'abbaye de Savigny, à partir de 1125. L'église actuelle date en grande partie du 15e siècle, le pignon ouest étant achevé en 1411. Les collatéraux sont quant à eux construits en plusieurs campagnes. Tout d'abord, une chapelle sera ajoutée au sud de la nef en 1524 avant d'être prolongée en bas-côté en 1549. Ces deux dates sont confirmées puisqu'elles sont inscrites sur des sablières. Vers 1684, le bas côté nord est construit tout comme la sacristie qui est aménagée au nord du chœur. Ces extensions permirent de mettre en place cinq arcades avec des piliers construits entièrement en bois sur des bases en granite, qui ouvrent de chaque côté de la nef les bas-côtés. Le pilier de 1524 est décoré d'un chapelet à cinq dizaines, issu des patenôtres du Moyen- Age. Le pilier nord est quant à lui gravé d’inscriptions aux caractères gothiques.
Le clocher contenant trois cloches, est construit par l'architecte Jourdin de Fougères au 19e siècle, en même temps que sont reprises les parties hautes de la façade occidentale. En 1875 et 1877, deux sacristies seront ajoutées au nord de l'ensemble. Un œil de bœuf sera mis en place en façade en 1943. Une niche rectangulaire au-dessus de cet œil de bœuf contient une sculpture en bas relief représentant Saint-Martin à cheval donnant un bout de sa cape à un pauvre.
A l'intérieur, le retable du chœur provient de la chapelle du couvent des Urbanistes à Fougères. Il comporte notamment une peinture représentant la crucifixion du Christ avec Jean et Marie d’un côté et Marie-Madeleine de l’autre. Les deux autres retables dans les collatéraux datent du 19e siècle. Une statue de l’enfant Jésus de Prague est placée dans le bas-côté nord. La voûte est lambrissée et comporte en dessous une voûte lambrissée peinte et décorée beaucoup plus ancienne. Les bas-côtés sont eux aussi décorés notamment au niveau des voûtes et des arcades.
-
Murs
- granite
- pierre de taille
-
Toitsardoise
-
Plansplan allongé
-
Étages3 vaisseaux
-
Couvrements
- lambris de couvrement
-
Couvertures
- toit à longs pans
- flèche polygonale
- noue
- pignon découvert
-
Typologiesclocher en façade ; chevet plat ; à pignons multiples
-
Techniques
- sculpture
-
Représentations
- saint Martin
-
Précision représentations
Support : bas-relief, façade occidentale.
-
Statut de la propriétépropriété publique
- (c) Inventaire général, ADAGP
- (c) Inventaire général, ADAGP
- (c) Inventaire général, ADAGP
- (c) Inventaire général, ADAGP
- (c) Inventaire général, ADAGP
- (c) Inventaire général, ADAGP
- (c) Inventaire général, ADAGP
- (c) Inventaire général, ADAGP
- (c) Région Bretagne
- (c) Région Bretagne
- (c) Région Bretagne
- (c) Région Bretagne
- (c) Région Bretagne
- (c) Région Bretagne
- (c) Région Bretagne
- (c) Région Bretagne
- (c) Région Bretagne
- (c) Région Bretagne
- (c) Région Bretagne
- (c) Région Bretagne
- (c) Région Bretagne
- (c) Région Bretagne
- (c) Région Bretagne
- (c) Région Bretagne
- (c) Région Bretagne
- (c) Région Bretagne
- (c) Région Bretagne
- (c) Région Bretagne
- (c) Région Bretagne
- (c) Région Bretagne
- (c) Région Bretagne
- (c) Région Bretagne
- (c) Région Bretagne
- (c) Région Bretagne
- (c) Région Bretagne
- (c) Région Bretagne
- (c) Région Bretagne
- (c) Région Bretagne
- (c) Région Bretagne
- (c) Région Bretagne
- (c) Région Bretagne
- (c) Région Bretagne
Bibliographie
-
BANEAT, Paul. Le département d'Ille-et-Vilaine, Histoire, Archéologie, Monuments. Rennes : J. Larcher, 1929
-
GUILLOTIN DE CORSON, abbé. Pouillé historique de l'archevêché de Rennes. Rennes : Fougeray, Paris : René Haton, 1884.
-
Le patrimoine des communes d'Ille-et-Vilaine. Paris : Flohic Editions, 2000. (Collection Le Patrimoine des communes de France).
Photographe à l'Inventaire