Château construit dans la 1ère moitié du 17e siècle probablement pour François Huart ; agrandissement fin 17e ou début 18e siècle (actuel corps principal) ; la chapelle, le colombier et l'aménagement des jardins datent de la 1ère moitié 17e siècle ; incendié pendant la Révolution ; restauration et remaniement vers 1901, 1902 ; ferme du château partiellement datée 1704.
Dossier d’œuvre architecture IA00007507
| Réalisé par
Service régional de l'Inventaire de Bretagne
(Contributeur)
;
Service régional de l'Inventaire de Bretagne
Cliquez pour effectuer une recherche sur cette personne.
- étude d'inventaire
- enquête thématique régionale, Inventaire des châteaux du 19e siècle en Bretagne
Château, Boeuvres (Messac fusionnée en Guipry-Messac en 2016)
Œuvre étudiée
Auteur
Copyright
- (c) Inventaire général, ADAGP
Dossier non géolocalisé
Localisation
-
Aire d'étude et canton
Bretagne - Bain-de-Bretagne
-
Commune
Guipry-Messac
-
Lieu-dit
Messac,
Boeuvres
-
Cadastre
1963
AN
13
-
Précisions
commune fusionnée après inventaire Commune inventoriée sous le nom de Messac
-
Dénominationschâteau
-
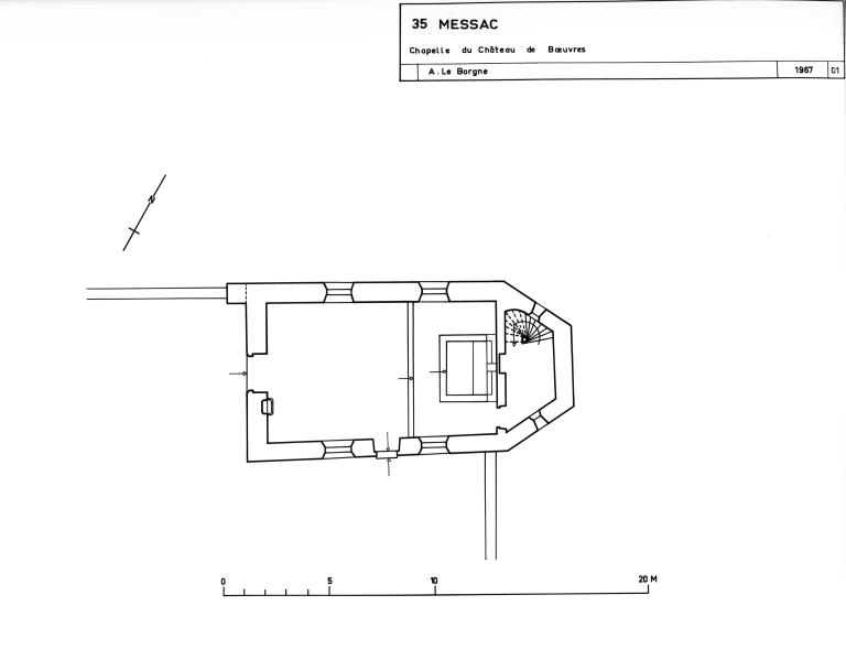
Parties constituantes non étudiéespuits, chapelle, colombier, cour, jardin, édifice agricole
-
Période(s)
- Principale : 1ère moitié 17e siècle
- Secondaire : 4e quart 17e siècle, 1er quart 18e siècle , (incertitude)
- Principale : 1ère moitié 17e siècle
- Secondaire : 1er quart 20e siècle
-
Dates
- 1704, porte la date
-
Murs
- schiste
- grès
- enduit
- appareil mixte
- moellon
-
Toitsardoise
-
Étagesen rez-de-chaussée, étage de comble
-
Élévations extérieuresélévation à travées
-
Couvertures
- toit à longs pans
- toit à longs pans brisés
- croupe
- pignon couvert
-
Escaliers
- escalier dans-oeuvre : escalier en vis sans jour
-
Techniques
- sculpture
-
Représentations
- armoiries
-
Précision représentations
Armes des Huart.
-
Statut de la propriétépropriété d'une personne morale
- (c) Inventaire général, ADAGP
- (c) Inventaire général, ADAGP
- (c) Inventaire général, ADAGP
- (c) Inventaire général, ADAGP
- (c) Inventaire général, ADAGP
- (c) Inventaire général, ADAGP
- (c) Inventaire général, ADAGP
- (c) Inventaire général, ADAGP
- (c) Inventaire général, ADAGP
- (c) Inventaire général, ADAGP
- (c) Inventaire général, ADAGP
- (c) Inventaire général, ADAGP
- (c) Inventaire général, ADAGP
- (c) Inventaire général, ADAGP
- (c) Inventaire général, ADAGP
- (c) Inventaire général, ADAGP
- (c) Inventaire général, ADAGP
- (c) Inventaire général, ADAGP
- (c) Inventaire général, ADAGP
- (c) Inventaire général, ADAGP
- (c) Inventaire général, ADAGP
- (c) Inventaire général, ADAGP
- (c) Inventaire général, ADAGP
- (c) Inventaire général, ADAGP
- (c) Inventaire général, ADAGP
- (c) Inventaire général, ADAGP
- (c) Inventaire général, ADAGP
- (c) Inventaire général, ADAGP
Date(s) d'enquête :
1967;
Date(s) de rédaction :
1967,
2004
(c) Inventaire général
Service régional de l'Inventaire de Bretagne
Service régional de l'Inventaire de Bretagne
Cliquez pour effectuer une recherche sur cette personne.
Lauranceau Elise
Lauranceau Elise
Cliquez pour effectuer une recherche sur cette personne.
Articulation des dossiers
Photographe à l'Inventaire