• étude d'inventaire
  • enquête thématique départementale, Inventaire des églises et chapelles d'Ille-et-Vilaine
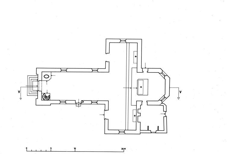
Eglise paroissiale Saint-Donatien, Saint-Rogatien (Poligné)
Œuvre étudiée
Copyright
  • (c) Inventaire général, ADAGP

Dossier non géolocalisé

Localisation
  • Aire d'étude et canton Ille-et-Vilaine - Bain-de-Bretagne
  • Commune Poligné
  • Cadastre 1936 B 201
  • Dénominations
    église paroissiale
  • Vocables
    Saint-Donatien, Saint-Rogatien
  • Parties constituantes non étudiées
    cimetière

Vestiges romans dans le mur nord de la nef (?). L'édifice a été en grande partie rebâti au 17e siècle : façade occidentale datée 1666, chœur, transept et sacristie construits en 1696. Percement d'une rose sur la façade occidentale en 1861. Réfection des fenêtres de la nef en 1861 et 1862.

(véronique OraIn, Isabelle Barbedor, Inventaire des églises et chapelles d'Ille-et-Vilaine, 1994)

  • Période(s)
    • Principale : 13e siècle , (incertitude)
    • Principale : 2e moitié 17e siècle
    • Principale : 3e quart 19e siècle
    • Secondaire : 12e siècle , (incertitude)
  • Dates
    • 1666, porte la date
    • 1696, daté par source
    • 1861, daté par source
    • 1862, daté par source

Plan en croix latine, lambris de couvrement, clocher en façade, chevet à pans coupés.

  • Toits
    ardoise
  • Plans
    plan en croix latine
  • Étages
    1 vaisseau
  • Couvrements
    • lambris de couvrement
  • Couvertures
    • toit à longs pans
    • flèche polygonale
    • noue
    • croupe
  • Typologies
    clocher en façade ; chevet à pans coupés
  • Statut de la propriété
    propriété publique

Annexes

  • Etude d'inventaire sur le canton de Bain-de-Bretagne, 1967 :
Date(s) d'enquête : 1967; Date(s) de rédaction : 1967, 1994
Articulation des dossiers