Copyright
  • (c) Inventaire général, ADAGP

Dossier non géolocalisé

Localisation
  • Aire d'étude et canton Faouët (Le) - Faouët (Le)
  • Commune Berné
  • Lieu-dit Pont-Callec
  • Cadastre 1969 C2 395, 403, 556  ; 1826 C2 864, 865, 866, 868
  • Dénominations
    château
  • Destinations
    orphelinat
  • Parties constituantes non étudiées
    chapelle, parc

Edifice antérieur incendié en 1796 ; totalement reconstruit en 1882 ; ancienne chapelle sainte Anne du cloître reconstruite récemment au nord-ouest du château, provenant de Pluméliau ; deuxième chapelle sainte Anne des bois construite 2e moitié 19e siècle.

Le château actuel, l'aile occidentale exceptée, est une reconstruction de 1882, due au fils du Comte de Brissac qui avait racheté le château en 1833. Deux constructions antérieures au moins se sont succédées sur une ancienne place forte, siège d'une importance seigneurie, et partiellement détruite par les troupes de Mercoeur en 1591. Si cette enceinte a subsisté jusqu'à une date avancée, il est généralement admis que le logis a été reconstruit au 17e siècle, comme en témoigne le pavillon ouest. Cet important ensemble a été presque entièremenet brûlé en 1796. Au cours des travaux du 19e siècle, la majeure partie du pavillon occidental, flanqué de la tourelle carrée au sud-est, a été conservée, les parties hautes, lucarnes comprises, ont été refaites. En même temps, un bâtiment cubique à deux niveaux a été ajouté en avant du pavillon ouest. Vendu autour de 1956 à une communauté de Dominicaines qui y dirige un orphelinat, l'ensemble a été augmenté en 1966 par une chapelle et un cloître, la chapelle remployant des matériaux de la chapelle Sainte-Anne de Pluméliau. (E. Laurenceau)

  • Remplois
    • Remploi provenant de Commune : Baud
    • Remploi provenant de Commune : Pluméliau
  • Période(s)
    • Principale : 17e siècle , (détruit)
    • Principale : 2e moitié 19e siècle
  • Dates
    • 1882, daté par source

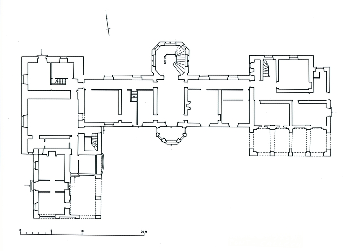
Château composé d'un corps central de plan rectangulaire accosté de deux ailes symétriques en retour d'équerre, en saillie sur les faces Nord et Sud. Une tourelle polygonale à 5 pans, abritant la cage d'escalier, est construite en hors-oeuvre dans l'axe de la façade nord. 2 étages carrés sur rez-de-chaussée et un étage de comble. Élévation à travées régulières. Construction en petit appareil de granite avec chaînages d'angle harpés. (E. Laurenceau, 2004)

  • Murs
    • granite
    • pierre de taille
  • Toits
    ardoise
  • Étages
    2 étages carrés, étage en surcroît, 1 vaisseau
  • Élévations extérieures
    élévation ordonnancée
  • Couvertures
    • terrasse
    • toit à longs pans
    • croupe
    • noue
    • pignon
  • Escaliers
    • escalier dans-oeuvre : escalier tournant à retours sans jour
    • escalier hors-oeuvre : escalier tournant à retours avec jour
  • Techniques
    • vitrail
  • Représentations
    • armoiries
  • Précision représentations

    Armes des Cossé Brissac ; armes des Montmorency.

  • Statut de la propriété
    propriété d'une personne morale

Bibliographie

  • Cantons Le Faouët et Gourin. Inventaire topographique. Secrétariat d'État à la culture, Inventaire général des monuments et des richesses artistiques de la France, Commission régionale de Bretagne ; [sous la dir. de André Mussat et Jean-Claude Menou]. Paris : Impr. nationale, 1975.

    p. 28, 243
  • Inventaire général de monuments et richesse artistiques de la France. Vallée du Scorff : Bretagne. Images du Patrimoine, n°196 , Rennes, APIB, 2000.

    p.22
  • Le patrimoine des communes du Morbihan. Paris : Flohic éditions, 2000. (Le patrimoine des communes de France).

    p. 263
  • SALAUN, Anne-Jacqueline. Pont-Callec. Un lieu d'histoire et de mémoire. 2015.

Documents figurés

  • Archives départementales du Morbihan, 14-1 et 14-2. Château de Pont-Callec, collection Villard, Quimper et collection Le Cunff, Pontivy

    Archives départementales du Morbihan : 14-2

Annexes

  • Château de PontCallec, inventaire fondamental, 1966-1969
Date(s) d'enquête : 1966; Date(s) de rédaction : 1966, 1969, 2004
Articulation des dossiers