• enquête thématique départementale, Inventaire des églises et chapelles d'Ille-et-Vilaine
  • inventaire topographique, Fougères communauté
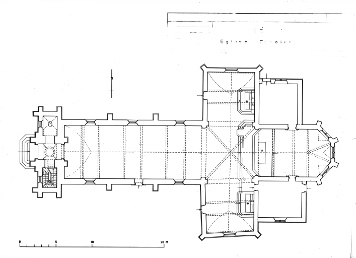
Eglise paroissiale Notre-Dame (Parigné)
Œuvre étudiée
Auteur
Copyright

Dossier non géolocalisé

Localisation
  • Aire d'étude et canton Pays de Fougères - Fougères Nord
  • Commune Parigné
  • Cadastre 1984 AB 141
  • Dénominations
    église paroissiale
  • Vocables
    Notre-Dame
  • Parties constituantes non étudiées
    enclos, cimetière

Église primitive constituée d'une nef de la limite du 14e siècle 15e siècle à chevet plat. L'église actuelle a été fortement remaniée au 19e siècle. Le chœur a été agrandi par une abside à pans coupés entre 1854 et 1856 par l'entrepreneur Jourdin, puis le transept, la nef et la tour ont été repris en 1886 suivant les plans d'Aristide Folie (dates et attributions par travaux historiques).

Autrefois, l"église de Parigné se composait d'une nef à chevet droit, accostée au nord d'une petite chapelle prohibitive à la seigneurie du Sollier qui fut unie en 1607 à celle de Parigné : cette chapelle a disparu. Les armes des seigneurs de Parigné se lisaient au 16e et au 17e siècle sur une litre et sur les vitres de l'église. Leur enfeu était dans le chœur. Les seigneurs de la Villegontier et ceux du Boisguy en possédaient aussi dans la nef.

L'église de Parigné conserve de sa construction primitive, au 15e siècle, la nef et le clocher. Le reste de l'édifice est modifié au 19e siècle, une première fois en 1854-1856 par Jourdin, architecte et entrepreneur actif dans le pays de Fougères, qui reconstruit le chœur et le transept. En 1886-1888, l'architecte Folie continue les travaux en reprenant la nef dans le style gothique d'origine. Le riche mobilier, offert par la famille de La Villegontier, est enlevé du chœur dans les années 1960, en raison de la tendance à l'austérité du goût de l'époque.

Le plan de cette église est en forme de croix latine. Elle possède une voûte en berceau, un clocher-porche, un chevet à pans coupés appelé également régionalement, chevet de type Beaumanoir, du nom d'une famille d'architecte du Trégor.

La nef de l'église remonte au 14e siècle, ainsi que ses fenêtres longues et trilobées. La porte sud est ornée de colonnettes et surmontée de deux écussons frustes accolés, au-dessous d'une niche large et profonde et d'un fronton triangulaire. Le chœur a été refait en 1856 ; on a trouvé en creusant ses fondations une statue en granite figurant la Vierge assise. On a replacé dans ce chœur une petite porte flamboyante aux armes des seigneurs de Parigné, provenant de l'ancienne sacristie. Le transept est moderne. Un clocher en ardoises se dresse en haut de la nef.

Plusieurs pierres tombales existent encore, dont celle de René de Gaulay seigneur du Boisguy, avec une épée et une croix ; on y lit : "Cy gist noble et puissant Seigneur René de Gaulay Sieur du Boisguy. 1561."

Le cimetière conserve une croix à toit armoriée.

  • Toits
    ardoise
  • Plans
    plan en croix latine
  • Étages
    1 vaisseau
  • Couvrements
    • voûte en berceau
  • Couvertures
    • toit à longs pans
    • noue
    • pignon découvert
  • Escaliers
  • Typologies
    clocher-porche
  • Techniques
    • sculpture
  • Représentations
    • armoiries
  • Statut de la propriété
    propriété publique
Date(s) d'enquête : 1994; Date(s) de rédaction : 1994, 2013
Articulation des dossiers