Dossier d’œuvre architecture IA22017534 | Réalisé par ;
  • enquête thématique régionale, L'architecture gothique en Bretagne
  • inventaire topographique, Communauté de communes du Haut Trégor
Eglise Sainte-Catherine (La Roche-Derrien fusionnée en La Roche-Jaudy en 2019)
Œuvre étudiée

Dossier non géolocalisé

Localisation
  • Aire d'étude et canton Bretagne - Roche-Derrien (La)
  • Commune La Roche-Jaudy
  • Lieu-dit Roche-Derrien (La)
  • Précisions commune fusionnée après inventaire Commune inventoriée sous le nom de La Roche-Derrien
  • Dénominations
    église
  • Vocables
    sainte catherine

L´ampleur et la qualité de l´église de la Roche-Derrien sont à rattacher à l´importance de cette ancienne place forte, frontalière entre le Goelo et le Trégor, aux mains de la maison de Penthièvre jusqu'à la guerre de Succession.

Le plan originel, dans la tradition du 13e siècle, est celui d´un édifice rectangulaire simple à trois vaisseaux et chevet plat. La nef éclairée par des fenêtres hautes de taille réduite, témoigne de l´influence de Beauport : on y retrouve entre autres traits caractéristiques l'absence d'ébrasement au niveau de l'arc intérieur de ces fenêtres qui semblent comme rabattre la lumière vers le bas de la nef. La façade occidentale qui comportait un porche hors œuvre, semblable à celui de la cathédrale de Tréguier, a été profondément remaniée lors de la deuxième campagne de construction de l'église.

Il faut rendre à René Couffon le mérite d´avoir le premier attiré l´attention sur le grand intérêt de l´édifice, même s'il semble que l´on ne puisse guère faire remonter les parties les plus anciennes de l´église avant la fin du 13e siècle : les éléments de comparaison nombreux avec l'abbatiale de Beauport ainsi que les bases et les chapiteaux de la nef de Tréguier, ramènent plutôt la première campagne de construction, aux environs de 1300 voire dans le premier quart du 14e siècle.

La mise en défense de l'église pendant la guerre de Succession

Parmi les importantes modifications que l’église a connu dès le 14e siècle, peu de temps après sa construction, la reconstruction de la façade occidentale et les transformations de l'angle nord-est du chevet sont incontestablement liées à la fortification de l'édifice pendant la guerre de Succession de Bretagne.

L'angle nord-ouest de l'église présente de multiples reprises qui en rendent difficile la compréhension et ne laissent pas supposer tout l'intérêt des dispositions encore visibles à l'intérieur de ce massif. Les contreforts d'angles, incomplets, sont interrompus au niveau du toit, sur la face nord un bouchage sommaire à occulté une baie en tiers point tandis que la face ouest est percée de deux fenêtres rectangulaires tardives dont la simplicité détonne avec le reste de l'édifice.

La première travée du collatéral nord au revers de la façade occidentale a été fermée après coup par un mur très épais dont la maçonnerie noie partiellement l'ancienne pile composée semblable à celle du collatéral sud. Ce mur est percé à l'est du côté du collatéral par une large porte en arc brisé qui ouvre sur une pièce sans doute destinée à servir de poste de garde. Du côté sud, vers l'entrée ouest une petite porte ouvre sur un sas qui lui même dessert un escalier en vis. Une meurtrière percée dans le mur de ce sas commande l'entrée ouest, tandis que dans la partie inférieure de la cloison qui sépare le sas de la pièce précédente, au raz du sol et dans l'axe de la porte d'accès une ouverture sembler également prévue pour la défense. Plus haut, dans la vis d'escalier, juste avant d'accéder à la coursière située à la base de la grande fenêtre ouest, une ouverture murée semble signaler une ancienne meurtrière ébrasée commandant la montée de l'escalier. Celle -ci pouvait être accessible depuis réduit était probablement accessible, depuis la pièce de l'étage, dans le mur de laquelle. Tous ces éléments indiquent sans ambiguïté la mise en défense de cette partie de l'église.

Le revers de la façade occidentale, entièrement masqué par l'orgue, présente une coursière qui passe à la base de sa grande fenêtre. Son garde corps actuellement muré a conservé intact son ajour de quadrilobes semblable à celui du sommet de la tour sud-ouest. L'examen de ce garde-corps montre qu'il s'agit d'un réemploi (un quadrilobe incomplet à l'extrémité nord), très probablement provenant de l'ancien porche ouest, ainsi que de très nombreuses autres pierres.

Les travaux de mise en défense de l'angle nord-est de l'église montrent la même réalisation à la hâte. Au revers de l'ancienne porte ( murée) donnant accès à l'escalier, une dalle funéraire remployée en linteau porte l’inscription «GAUFRIDUS…" accompagnée d'une grande croix recercelée. Il faut certainement y voir celle de Geoffroy de Saint-Léan, recteur de la Roche Derrien, cité en 1330 à l’âge de 70 ans comme témoin lors du procès en canonisation de saint Yves (et non Geoffroy de Tournemine tombé lors du siège de la Roche-Derrien). Le réemploi aussi rapide, en moins d'un demi-siècle, de la pierre tombale d'un prêtre ne fait que confirmer l'urgence dans laquelle furent effectués ces travaux. Celle-ci se révèle là encore par les très nombreuses pierres en réemploi visibles non seulement dans l'escalier en vis qui conduit vers la pièce haute mais aussi dans les baies de celle-ci. Ainsi sa fenêtre à deux lancettes qui ouvre sur le chevet, n'est autre qu'une ancienne fenêtre haute du choeur brutalement arrachée et remontée sommairement dans le nouveau chevet.

(Jean-Jacques Rioult, enquête thématique régionale architecture gothique)

Le chantier complexe de la Roche-Derrien, apparaît comme un jalon déterminant du gothique du nord de la Bretagne au XIVe siècle, en particulier dans le Trégor. Sur cet édifice de proportions modestes mais de parti architectural ambitieux se perçoivent les influences de deux grands chantiers locaux que sont l´église de l´abbaye de Beauport pour le XIIIe siècle et la cathédrale de Tréguier pour le XIVe siècle.

La construction de l'église actuelle commence à la fin du 13e siècle dont elle conserve plusieurs éléments (chapelle des fonts, première travée de la nef, traces du porche ouest...). Après la bataille de 1347, l'édifice est très endommagé et partiellement reconstruit, peut-être par le même maître d’œuvre que celui de la cathédrale de Tréguier, comme en témoignent des éléments communs tels que décor de chapiteaux, frise sous la corniche du clocher, voûtes très surbaissées et profils des arcs d'ogives.

En 1376, une grande chapelle est construite en aile au sud du choeur par Rolland de kersaliou et Meance Toupin, seigneur et dame de Kersaliou, seuls prééminenciers après le duc. Vers la même époque, une petite chapelle est construite sur le bas-côté nord avec enfeu et tombe. Un bulle pontificale de 1389 indique que l'église à encore besoin d'importantes réparations : la parie centrale de la façade ouest, la tour du clocher et le porche sud font sans doute partie de cette seconde campagne de construction.

Après la destruction du château et des remparts par Jean IV en 1394, le connétable Olivier de Clisson fortifie l'église. Ces travaux de fortification modifient profondément l'édifice, certains sont toujours visibles aujourd'hui : angle nord-est de l'édifice maçonné avec escalier englobé dans le massif et percé de meurtrières, agrandissement de la chapelle située à l'angle nord-ouest pour en faire un corps de garde ou un magasin...

La flèche de l'église est détruite par la foudre en 1793, les verrières sont brisées et la maçonnerie ébranlée. En 1820, l'église fait l'objet d'une restauration totale et la flèche reconstruite. A cette occasion, une nouvelle sacristie est construite contre le chevet. Le clocher est à nouveau foudroyé en 1833 avant d'être aussitôt rétabli.

Une nouvelle restauration de l'église a lieu en 1890: a cette date le pignon du porche sud est entièrement refait tandis que la chapelle nord du Rosaire est reconstruite en 1894 sur ses anciennes fondations.

En 1927, la maîtresse-vitre de la chapelle sud reçoit un nouveau vitrail représentant la bataille de La Roche-Derrien.

  • Période(s)
    • Principale : limite 13e siècle 14e siècle
    • Principale : 14e siècle
    • Principale : 15e siècle

La façade occidentale et le clocher

L´aspect complexe de la façade occidentale n´est pas aisé à interpréter. Le portail qui présente les vestiges d´un porche hors œuvre avec ébrasements à colonnettes peut remonter au début de la construction, c´est-à-dire aux années 1300. L´observation de l´appareillage de la moitié supérieure de la façade, qui vient entamer le niveau de l´extrados de l´arc correspondant à la voûte du porche, montre qu´il y a là une importante reconstruction de la deuxième moitié du 14e siècle, sans doute contemporaine de l´édification du clocher au sud-ouest. Les lancettes latérales de la baie qui « remontent » sur les côtés de la rose, rappellent la disposition de la grande fenêtre de la chapelle sud, postérieure à 1376. Enfin les trois oculus qui occupent la partie supérieure de la façade et éclairent un passage transversal au-dessus des voûtes, datent probablement des guerres de la Ligue.

Le clocher dont l´édification a entraîné la destruction du côté droit du porche ouest fut probablement construit au cours de la deuxième moitié du 14e siècle. Les baies du premier niveau, présentent une modénature caractéristique, à ressauts et chanfreins pénétrant directement dans les ébrasements. Ce trait de style que l´on l'intérieur dans la chapelle des fonts, sur le porche sud ainsi que sur plusieurs des arcades de la nef est directement emprunté à la nef de la cathédrale de Tréguier. Les hautes fenêtres de l´étage des cloches, à traverses et lancettes trilobées, leurs chapiteaux à corbeille lisse dédoublée, les arcs à ressauts et chanfreins, que l´on retrouve aussi sur les baies du troisième niveau, appartiennent sans conteste au répertoire du 14e siècle, et plus particulièrement à celui du Trégor. Enfin le traitement du dernier étage et son raccord avec la flèche méritent une attention particulière. Son garde-corps à quadrilobes ajourés, interrompu au milieu de chaque face par la partie inférieure d´une baie à meneau et traverse, baie implantée dans l´axe des quatre ouvertures médianes de la base de la flèche auxquelles elles devaient être reliées par de petits gâbles aigus caractéristiques du style trégorrois. Cette disposition reprend ici celle prévue à l´origine au sommet de la tour de croisée de Tréguier et qui fut inachevée. La réfection de la flèche dans les années 1820-1830 a respecté, sans la restituer complètement cette disposition élégante, qui faisant l´économie des habituels clochetons d´angle, évitait la surcharge sur une tour de faible surface.

Le porche sud.

Le porche sud qui fait partie de la seconde campagne de construction du 14e siècle est homogène, à l´exception de son pignon, refait de façon un peu sèche à la fin du 19e siècle. Les chapiteaux à bourrelets de son arcade d´entrée, la retombée de sa voûte sur des culots figurés, enfin le décor d´arcatures évidées détachées des parois latérales, directement inspiré par les arcatures du triforium de la nef de la cathédrale de Tréguier, sont parfaitement contemporains de la porte dont le corps de moulures complexe rentrant directement dans de larges ébrasement développe de façon savante un vocabulaire déjà présent dans les baies de l´église. L´impact de cette création dans le contexte trégorrois est visible sur le porche de la chapelle de Kermaria an Isquit à Plouha, dont le traitement ornemental est pour moitié une véritable citation de celui de la Roche-Derrien.

La chapelle de Kersaliou

Si l´on en croit l´inscription portée sur le contrefort sud-est, la grande chapelle sud fut bâtie à partir de 1376 par Rolland de Kersaliou et sa femme Méance Taupin, auxquels Jean IV de Montfort, devenu duc de Bretagne venait de confier la châtellenie de la Roche-Derrien. Cette grande chapelle en demi croix, à l´encontre du parti architectural originel de l´église, reprend un modèle employé, à la même époque au sud du choeur de la grande basilique du Folgoët, un des chantiers ducaux majeurs de cette fin du 14e siècle, modèle repris en Trégor vers 1430 pour la chapelle de Notre-Dame-de-la-Cour à Lantic, autre édifice ayant ayant fait l´objet du patronage princier. A La Roche-Derrien, le profil dissymétrique du pignon ainsi que ses trois contreforts traduisent à l´extérieur un parti de plan à unique "collatéral" à l'ouest et nef, disposés à l´équerre du choeur. Une porte percée dans ce collatéral, permet un accès réservé. Dans l´angle sud-est de cette chapelle, entre deux contreforts, une meurtrière bouchée correspondant à une logette aujourd'hui condamnée à l'intérieur de l'église par une dalle funéraire posée à la verticale, devait permettre de contrôler cette zone proche d'une des portes de la ville.

Le chevet

L´élégant chevet de la Roche-Derrien, avec ses deux hautes baies superposées, ses contreforts à gâbles aigus et pinacles à quatre pans, apparaît comme une véritable citation de la façade occidentale de l´église abbatiale de Beauport. Les gâbles et les pinacles en pyramide, répartis verticalement comme il se doit sur la façade de Beauport, sont employés, au sommet des contreforts nord et sud du chevet de la Roche-Derrien, comme des variantes ornementales. Comme à Beauport l'étonnante superposition des deux baies et surtout la largeur de celle du sommet, incongrue pour une simple ventilation de la charpente correspond certainement à un souci de différer à plus tard la construction des voutes.

A la partie basse du chevet se voient les traces d´une porte murée au sud de la grande baie ainsi que l´attache d´un édifice voûté, sans doute en partie enterré, pouvant correspondre à une ancienne chambre forte probablement couverte par un toit en extrados de pierre à deux versants.

A l´est, l´extrémité du collatéral nord a été entièrement reprise, élargie et surhaussée, sans doute à la fin du 14e siècle. Une baie plus grande, éclaire le nouveau volume : son réseau constitué de quadrilobes anguleux contenus dans des carrés à contours convexes, reprend des formes massivement employées au chevet de Tréguier.

L´intérieur

Le volume intérieur frappe par son vaisseau de sept travées, couvert de croisées d´ogives dont le profil s´accorde maladroitement avec celui très aigu des arcs doubleaux. Ces voûtes, dépourvues d´arcs formerets, retombent sur une colonne adossée coiffée d´un chapiteau à tailloir polygonal. Cette unique colonne, arrêtée au niveau de l´écoinçon des grandes arcades, est elle-même portée par un culot sculpté en forme de tête humaine. Les fenêtres hautes, de dimensions réduites et très ébrasées ont un important glacis presque aussi haut que l´ouverture elle-même, permettant de faire glisser la lumière sur le vaisseau central. Ce parti d´élévation simple, à deux niveaux, rappelle celui de la nef de Beauport. Ici toutefois, l´examen des détails architecturaux montre que l´ensemble de la construction ne peut être antérieur aux premières années du 14e siècle. Les bases des premières piles de la nef ou apparaissent les premières timides moulurations prismatiques, et surtout les chapiteaux à corbeille lisse dédoublée, sont bien caractéristiques de cette époque. Enfin l´association d´éléments hérités du 13e siècle tels que bases à galettes et petites cannelures et chapiteaux à feuillages avec plusieurs éléments du gothique tardif, comme la pénétration directe des arc dans des piles, l´emploi de chapiteaux à corbeille lisse, aussi étrange et curieuse qu´elle paraisse semble tout à fait contemporaine, et correspond certainement à une construction de la première partie du 14e siècle.

L´ensemble des arcades de la nef et du choeur est traité avec des arcs à ressaut et larges chanfreins. L´on a systématisé ici dans une belle ordonnance à support alternés, les tâtonnements de la nef de Tréguier. On observe ainsi sur le côté droit la succession d´une pile composée de colonnettes qui marque la première travée, puis d´une pile octogone, elle-même suivie d´une pile monocylindrique, alternance que l´on retrouve dans le choeur par delà les deux piles octogonales de la croisée. Toutes les retombées dans ces piles, à l´exception de la dernière sur la gauche du choeur, se font sous forme de pénétration directe. Cette caractéristique remarquable, exceptionnelle pour l´époque de la construction, s´observe non seulement dans le plan des arcades, mais aussi au niveau des arcs doubleaux des collatéraux, de même que sur les deux arcs qui marquent la croisée de transept. Ce traitement architectural particulier, également visible dans les ébrasements internes et externes des fenêtres du bas de la tour, se retrouve aussi sur la porte située au fond du porche sud.

L'ordonnance originelle de l'église fut considérablement modifiée par les travaux de la seconde moitié du 14e siècle, essentiellement du côté du choeur. La grande chapelle en demi croix au sud, bâtie à partir de 1379 par Rolland de Kersaliou, devenu par concession du duc Jean IV, seigneur prééminencier de la Roche, a complètement bouleversé l´ordonnance d´origine. D´importantes dimensions, puisque sa longueur équivaut presque à celle de la nef, elle comporte, sur son côté ouest, une sorte de collatéral dans lequel, une porte, au sud, permet un accès direct à cet espace réservé. Au cours de l´élévation de ses murs on a renoncé au voutement initialement prévu et choisi finalement, selon la mode qui se répand à la fin du XIVe et au début du XVe siècle de la surmonter d´un simple lambris de couvrement. Les colonnettes adossées contre le mur ouest et les trois arcades intermédiaires, que l´on ne retrouve plus à l´est, attestent ce changement de parti en cours de chantier. La partie haute du mur de l´ancien choeur visible « en écorché » montre une disposition curieuse dans laquelle le contrefort est arrêté au dessus du toit des collatéraux : cette disposition qui reprend là encore celle de Beauport, permettait de caler sur la ligne de corbelets en dessous, un cours de pannes sablières ininterrompu.

En face, les trois dernières travées du collatéral nord du choeur ont été élargies, et leurs voûtes surhaussées de près de deux mètres, entièrement refaites avec un profil à tore encadré d´un cavet à la place du simple bandeau chanfreiné d´origine. Cette élargissement du collatéral nord dut être conçu pour y installer une chapelle seigneuriale ce que confirme l'enfeu visible dans le mur gouttereau nord. La dernière travée présente en outre sur son flanc nord une excroissance abritant un réduit et une tour d'escalier, initialement desservis par deux porte jumelées rectangulaires bordées d'un tore. La première de ces portes, aujourd'hui la seule conservée ouvrait sur le réduit. Ce dernier, à l'origine séparé de la vis d'escalier par un mur, devait servir de sas d'entrée à la chapelle seigneuriale comme l'indique dans son mur nord la trace d'une porte murée. Dans ce réduit, des consoles rudimentaires devaient recevoir des étagères destinées à recevoir les livres de chant et de prière. A une date inconnue le mur séparant ces deux sous espaces a été supprimé et une des deux portes a été condamnée pour ne conserver qu'un unique accès.

(Jean-Jacques Rioult, enquête hématique régionale, architecture gothique)

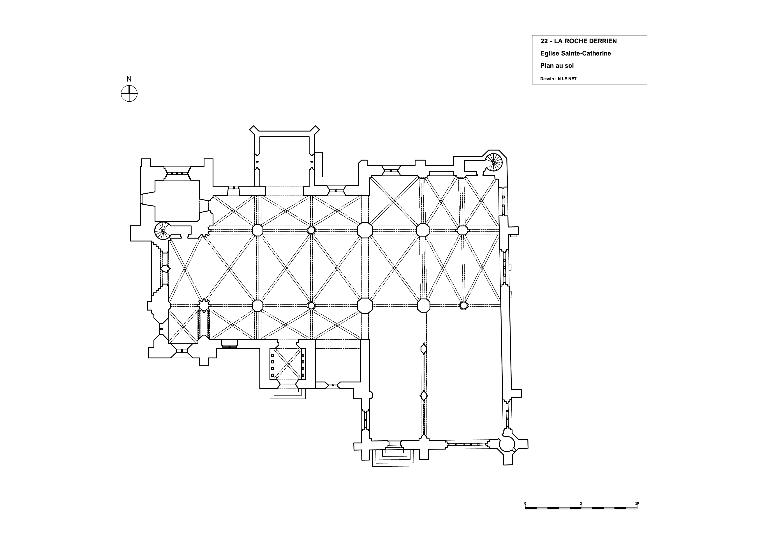
Le plan de l'église présente une nef à trois travées avec bas-côtés précédée d'une travée d'entrée accostée, au sud, de la chapelle des fonts à la base du clocher et au nord, d'une pièce complètement fermée par des murs épais. A l'entrée du choeur, une travée plus large que toutes les autres marquée par quatre épaisses piles octogonales détermine comme une sorte de croisée. Ces trois dernières travées sont flanquées, au nord, de bas-côtés et, au sud, d'une grande chapelle avec bas-côté à l'ouest. Sur le mur gouttereau nord, au droit de la deuxième travée, est une chapelle, et, en face, sur le mur sud un porche. Enfin, une sacristie est construite contre le chevet.

A l'intérieur, à l'exception de la grande chapelle en retour d''équerre vers le sud, l'ensemble de l'édifice est voûté sur croisées d'ogives. Les grandes arcades de la nef présentent des tracés et des supports différents qui font alterner soit leur pénétration directe dans des piliers octogonaux soit leur retombée sur des chapiteaux et des colonnes cylindrique à chapiteaux. Chaque travée est séparée de la suivante par un arc doubleau, et à leur extrémité séparé du faux-transept par un arc diaphragme à deux voussures et à pénétration directe dans les supports.

La travée d'entrée également voûtée est en grande partie masquée par le buffet d'orgues. Dans cette travée, un passage permet d'accéder par un escalier en vis au premier étage de la chapelle nord et par un passage ai revers de la verrière ouest à la tour érigée, au sud, au-dessus de la chapelle des fonts.

A l'extérieur, au centre de la façade ouest en pierre de taille, se trouve l'entrée principale avec porche à quatre voussures d'un tracé presque circulaire. En avant des vestiges de colonnettes indiquent qu'il existait primitivement un porche hors oeuvre. Au fond les deux portes jumelées sont séparées par le trumeau orné d'une niche plus récente abritant la statue de sainte-Catherine. Au-dessus du porche, la grande fenêtre rayonnante à quatre lancettes supporte une rose dont le remplage à quatrefeuilles a disparu.

La tour de plan carré en pierre de taille comprend trois étages de hauteurs inégales dont l'étage inférieur est constitué de la chapelle des fonts. Cette tour est cantonnée de contreforts : celui de l'angle nord-ouest, renferme l'escalier d'accès à la plateforme dont la balustrade ajourée de quadrilobes est supportée par une corniche sur laquelle court une frise de petits motifs en quadrilobes en creux.

La façade sud est en pierre de taille à quelques petites exceptions près. Elle comprend le porche sud avec porte extérieure à trois moulures toriques en arc brisé reposant sur des colonnettes à chapiteaux et bases. Les parois intérieures sont décorées de niches ajourées.

(Judith Tanguy, inventaire topographique 2014)

  • Murs
    • granite pierre de taille
  • Toits
    ardoise
  • Couvrements
    • voûte d'ogives
  • Couvertures
    • flèche en maçonnerie
  • Escaliers
    • escalier dans-oeuvre : escalier en vis sans jour
  • Statut de la propriété
    propriété de la commune
  • Intérêt de l'œuvre
    à signaler
  • Protections
    classé MH, 1913/09/04
  • Précisions sur la protection

    Eglise Sainte-Catherine : classement par arrêté du 4 septembre 1913.

  • Référence MH

Bibliographie

  • COUFFON, René. Eglise Notre-Dame et Sainte-Catherine de Suède de La Roche-Derrien. Extrait des Mémoires de la Société d'Emulation des Côtes-du-Nord. Les Presses bretonnes, Saint-Brieuc, 1973.

    Région Bretagne (Service de l'Inventaire du patrimoine culturel)

Documents figurés

  • 3 P 269/1 Fonds du cadastre ancien. Tableau d'assemblage et plans parcellaires de la commune de La Roche-Derrien, 1836

    Archives départementales des Côtes-d'Armor : 3 P 269/1

Annexes

  • L’église Sainte-Catherine de La Roche-Derrien - Patrimoine de Bretagne, novembre 2017 :
Date(s) d'enquête : 1992; Date(s) de rédaction : 1992, 2014