Dédiée à Notre-Dame, cette ancienne chapelle de la communauté des bourgeois de la ville prendra également le vocable de Saint-Michel en souvenir de l´ancienne église paroissiale voisine ruinée en 1765. On distingue, pour l´essentiel, deux campagnes de construction. D´un premier édifice bâti vers 1280 ne subsistent que les murs de la nef percés de baies et de grandes portes au nord et au sud et sans doute les traces d´un porche ouest (oculus sud), les autres parties ayant été ruinées au cours des guerres de Succession qui touchent la ville au milieu du 14e siècle. A la charnière des 14e et 15e siècles, une reprise hésitante et par endroits malhabile débute par la reconstruction du porche sud qui remplace un porche plus ancien probablement à étage, comme l´indique une porte haute bouchée qui pourrait correspondre à l´accès à un jubé de l´édifice originel. Egalement témoins du début de la reprise du chantier, les piliers ouest de la croisée du transept, cantonnés de colonnettes à chapiteaux, se greffent sur des piles carrées qui semblent correspondre à l´emplacement de l´ancien choeur. Une campagne d´agrandissement décisive, affectant le couvrement de la nef et surtout la construction de la partie orientale de l´édifice, débute en 1416 ou 1418 et se termine au milieu du 16e siècle. Grâce aux libéralités du duc Jean V, de Henry de Lespervez, l'abbé de Sainte-Croix de Quimperlé et de familles bourgeoises et aristocratiques de la ville (leurs armoiries figurent aussi bien à l´extérieur qu´à l´intérieur), le chantier inclut la mise en place du porche nord (achevé en 1425), de la charpente de la nef (datée 1430), de la partie orientale de la croisée du transept (piliers circulaires portant des voûtes à pénétration directe), du massif de la tour et du choeur dans lequel est inhumé Henry de Lespervez en 1434. La réalisation d´un jubé placé entre la nef et la croisée du transept, accessible depuis un escalier en vis logé dans la tourelle desservant également les parties hautes de la tour, demeure, en l'absence de traces de fixation, incertaine. Ce n´est qu´entre 1520 et 1550 que la croisée faisant fonction d´avant choeur, le transept non saillant et le choeur à chevet plat flanqué de chapelles latérales sont couverts de voûtes d´ogives. Depuis le 16e siècle, la tour abritait, en guise de beffroi, l´horloge de la ville qui était pourvue d´un mécanisme mettant en mouvement une statue de saint Michel ; détruite en 1590, elle a été rétablie en 1620. En 1636, Dubuisson-Aubenay mentionne l´édifice dont il vante le «fort haut et beau clocher couvert en plomb en 1621, comme il est écrit dessus en lettre noire». Ce clocher, construit sous Jean-François-Paul Gondi, abbé de Sainte-Croix et démoli en 1763, figure sur un dessin de 1736. Construite dans le prolongement du chevet, la sacristie, à usage commercial au niveau de la rue, date de la fin du 18e siècle, tout comme la maison qui s´appuie sur l´élévation ouest remaniée à plusieurs reprises. En 1862, l´architecte Joseph Bigot, de Quimper, avait noté la fragilité de la tour légèrement inclinée ; toute construction d´une flèche mettrait en danger sa stabilité à cause de l´état de la maçonnerie «posée en argile avec des moellons plats dont le tassement fatigue le parement extérieur en taille de grand appareil». Les travaux de Bigot ne concernent que la consolidation de la tour et le rejointoiement, «en ciment de Portland», des parements intérieurs situés au-dessus des voûtes.
- inventaire topographique, Quimperlé
- enquête thématique régionale, L'architecture gothique en Bretagne
- (c) Inventaire général, ADAGP
Dossier non géolocalisé
-
Aire d'étude et canton
Quimperlé - Quimperlé
-
Commune
Quimperlé
-
Adresse
Place Saint-Michel
-
Cadastre
1981
AR
402
-
Dénominationséglise paroissiale
-
VocablesNotre-Dame de l'Assomption, Saint Michel
-
Période(s)
- Principale : 4e quart 13e siècle
- Principale : 1er quart 15e siècle
- Principale : 2e quart 16e siècle
- Secondaire : limite 14e siècle 15e siècle
- Secondaire : 4e quart 18e siècle
-
Auteur(s)
-
Auteur :
Bigot Josepharchitecte attribution par sourceBigot JosephCliquez pour effectuer une recherche sur cette personne.
Architecte du département du Finistère (1835-1873). Architecte du diocèse de Quimper et de Léon (1837-1892).
- Personnalité : commanditaire attribution par source
-
Personnalité :
Lespervez Henry decommanditaire attribution par sourceLespervez Henry deCliquez pour effectuer une recherche sur cette personne.
-
Personnalité :
Gondi François Paul decommanditaire attribution par sourceGondi François Paul deCliquez pour effectuer une recherche sur cette personne.
-
Auteur :
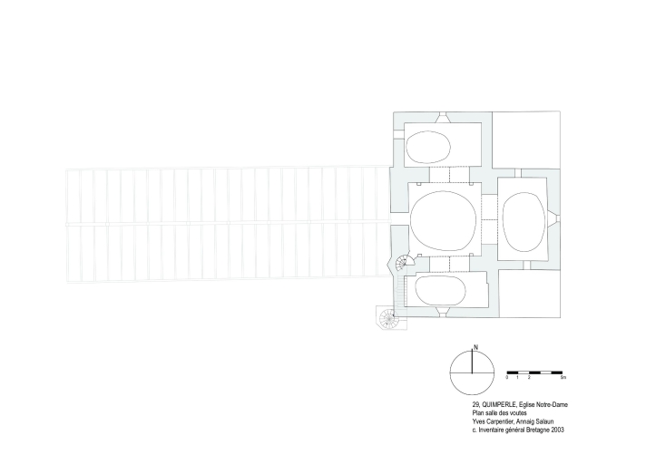
Nef, bras du transept et choeur couverts de toits à longs pans et pignons découverts. Clocher en charpente couvert d´un toit en pavillon entouré d´une plate forme flanquée de quatre clochetons. Mise en oeuvre de granites différents suivant les périodes. Porche sud avec remploi d´éléments sculptés. A l´est, larges contreforts percés de passages. Nombreuses reprises (porches, nef, croisée). Lambris de couvrement (nef) ; voûtes d´ogives (partie orientale et porches). La pièce située au-dessus du porche nord dont une baie donne directement sur la chapelle latérale nord, est accessible par un escalier en vis dans oeuvre. Au sud, un autre escalier en vis donne accès à un escalier droit dans oeuvre qui rejoint une autre vis qui, placée dans l´angle sud-ouest de la tour, dessert successivement l´espace situé au-dessus des voûtes de la croisée du transept, la chambre des cloches et la plate forme de la tour. Le massif de la tour, de plan carré jusqu´au niveau de la chambre des cloches, de plan octogonal ensuite, porte l´amorce d´une flèche maçonnée (non réalisée) dont témoignent quatre trompes plein-cintre appareillées en rouleaux à ressauts. Contreforts nord-est et sud-est percés de passages.
-
Murs
- granite
- pierre de taille
-
Toitsardoise
-
Plansplan allongé
-
Couvrements
- voûte d'ogives
- lambris de couvrement
- charpente en bois apparente
-
Couvertures
- toit à longs pans
- toit en pavillon
-
Techniques
- sculpture
-
Représentations
- armoiries
- sirène
- ange
-
Précision représentations
Armoiries de Bretagne : sablière nord de la nef et porche nord. Armoiries, probablement Lespervez : porche nord. Armoiries non identifiées : porche sud, charpente de la nef, clés de voûte des chapelles latérales. Sirène présentant un écu fruste (élévation nord). Ange présentant un écu fruste (porche sud).
-
Statut de la propriétépropriété de la commune
-
Intérêt de l'œuvreà signaler
-
Protectionsclassé MH, 1915/05/06
-
Référence MH
Cette ancienne chapelle de la communauté des bourgeois domine la ville haute et sa place principale destinée, depuis l´époque médiévale, aux foires et marchés. Les deux principales campagnes de construction sont immédiatement perceptibles. La partie orientale dominée par la tour massive couronnée d´une galerie ajourée cantonnée de clochetons, correspond à un seul parti architectural et montre des parentés évidentes avec les tours de la cathédrale de Quimper et des églises de Locronan, du Folgoët et de Pont-Croix. Sans égale en Bretagne occidentale, la partie orientale de l´édifice, conçue suivant un plan carré abritant la croisée faisant fonction d´avant choeur, le transept non saillant et le choeur à chevet plat flanqué de chapelles latérales, est une conséquence des contraintes de la morphologie urbaine, notamment du terrain en forte déclivité nécessitant la mise en place de contreforts puissants. Curieusement placé au nord, le grand porche, dont l´étage servait de maison commune et de lieu de réunion de la fabrique, est animé par un pilier central richement sculpté à usage de bénitier. Comme à Kernascléden, Sainte-Noyale et Saint-Fiacre du Faouët, ce porche est l´illustration d´un même modèle proposé par un atelier qui sait maîtriser harmonieusement les volumes et le décor monumental du gothique flamboyant. Le choix d´établir le porche majeur au nord, rare en Bretagne, semble indiquer la préexistence, au sud, d´un porche plus ancien déjà en place. Suite à la construction du porche nord, l´accès ouest devient alors caduc et des constructions civiles, plusieurs fois remaniées, s´appuient contre le mur-pignon. Réalisation majeure de l´art gothique en Cornouaille, cette grande église urbaine, à travers la monumentalité et la qualité décorative de sa partie orientale, illustre bien, en ce début du 15e siècle, l´impact du mécénat ducal auquel s´associe celui des autorités ecclésiastiques et civiles dont témoigne l´omniprésence de décors héraldiques.
- (c) Inventaire général, ADAGP
- (c) Inventaire général, ADAGP
- (c) Inventaire général, ADAGP
- (c) Inventaire général, ADAGP
- (c) Inventaire général, ADAGP
- (c) Inventaire général, ADAGP
- (c) Inventaire général, ADAGP
- (c) Inventaire général, ADAGP
- (c) Inventaire général, ADAGP
- (c) Inventaire général, ADAGP
- (c) Inventaire général, ADAGP
- (c) Inventaire général, ADAGP
- (c) Inventaire général, ADAGP
- (c) Inventaire général, ADAGP
- (c) Inventaire général, ADAGP
- (c) Inventaire général, ADAGP
- (c) Inventaire général, ADAGP
- (c) Inventaire général, ADAGP
- (c) Inventaire général, ADAGP
- (c) Inventaire général, ADAGP
- (c) Inventaire général, ADAGP
- (c) Inventaire général, ADAGP
- (c) Inventaire général, ADAGP
- (c) Inventaire général, ADAGP
- (c) Inventaire général, ADAGP
- (c) Inventaire général, ADAGP
- (c) Inventaire général, ADAGP
- (c) Inventaire général, ADAGP
- (c) Inventaire général, ADAGP
- (c) Inventaire général, ADAGP
- (c) Inventaire général, ADAGP
- (c) Inventaire général, ADAGP
- (c) Inventaire général, ADAGP
- (c) Inventaire général, ADAGP
- (c) Inventaire général, ADAGP
- (c) Inventaire général, ADAGP
- (c) Inventaire général, ADAGP
Documents d'archives
-
A.D. Finistère, 3 P 292. Quimperlé cadastre de 1824, section F.
-
A.E. Quimper. Fonds Bigot, 8 L. 19e siècle.
Bibliographie
-
BELLANCOURT, Yves. La chapelle municipale Notre-Dame de l´Assomption à Quimperlé. Dans : Chronique de la société d´histoire du pays de Kemperlé. s.d., N° 12.
-
DUBUISSON-AUBENAY. Itinéraire de Bretagne en 1636. Archives de Bretagne. Recueil d´actes, de chroniques et de documents inédits, t. IX. D´après le manuscrit original, avec notes et éclaircissements, par L. Maître et P. de Berthou, Nantes, 1898.
p. 99 -
COUFFON, René. Notre-Dame de Quimperlé. Dans : Congrès archéologique de France : Cornouaille. Orléans, 1957.
p. 78-83 -
Région Bretagne (Service de l'Inventaire du patrimoine culturel)
COUFFON, René, LE BARS, Alfred. Diocèse de Quimper et de Léon. Nouveau répertoire des églises et chapelles. Quimper : Association Diocésaine, 1988.
p. 358-360 -
MUSSAT, André. Arts et cultures de Bretagne, un millénaire Paris : Berger-Levrault, 1979.
p. 96 -
INVENTAIRE GENERAL DES MONUMENTS ET DES RICHESSES ARTISTIQUES DE LA FRANCE. Région Bretagne. Quimperlé et son canton. Finistère. Collection Images du Patrimoine n° 217, Rennes, 2002.
p. 60-62
Chargée d'études à l'Inventaire
Chargée d'études à l'Inventaire