Dossier d’œuvre architecture IA29001317 | Réalisé par
Lécuillier Guillaume
Lécuillier Guillaume

Chargé d'études d'Inventaire du patrimoine à la Région Bretagne.

Cliquez pour effectuer une recherche sur cette personne.
  • enquête thématique régionale, Inventaire des fortifications littorales de Bretagne
Tour-modèle du Toulinguet et mur défensif, pointe du Toulinguet (Camaret-sur-Mer)
Œuvre étudiée

Dossier non géolocalisé

Localisation
  • Aire d'étude et canton Bretagne Nord
  • Commune Camaret-sur-Mer
  • Lieu-dit Pointe du Toulinguet
  • Dénominations
    batterie, fort, corps de garde
  • Appellations
    Tour du Toulinguet
  • Parties constituantes non étudiées
    réduit, pont, fossé

LES FORTIFICATIONS DE LA RADE DE BREST, UN PATRIMOINE RECONNU

La défense maritime et terrestre des approches et des mouillages du port de Brest

Sur la côte sud du goulet : Camaret, pointe du Toulinguet, tour modèle n° 3.

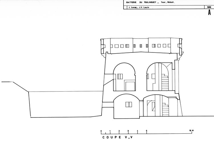
"Conforme en tout point au plan-type n° 3, c´est aujourd´hui l´édifice le mieux conservé de cette famille architecturale en rade de Brest. La seule modification a consisté en l´ajout d´une entrée au premier niveau en remplacement de l´accès initial par passerelle et pont-levis. La mise en oeuvre de l´ouvrage et le traitement particulièrement soigné de la façade principale, orientée à l´ouest, sont remarquables. Si la maçonnerie est réalisée en moellons de granite, l´entrée monumentale encadrée de pilastres, le linteau de porte à chronogramme 1812, les encadrements des créneaux de tir et une bretèche (sur la façade principale), le dallage de la plate-forme (la corniche en "bandeau" rappelant le cordon de la fortification classique), les modillons ou corbeaux, les chanfreins extérieurs, les chaperons des angles, la tablette du parapet, les arêtes des voûtes, les encadrements de portes, les marches d´escalier, sont traités en pierre de taille de granite gris. Les voûtes sont réalisées en brique.

Le site de la pointe du Toulinguet, particulièrement grandiose, concourt à ajouter encore à la majesté de l´édifice : des formes géométriques à la fois simples, le carré, la ligne droite du mur crénelé ajouté derrière la tour vers 1884 et barrant la pointe, et un volume en pyramide tronquée, une unité de couleur, lui confèrent une réelle beauté plastique. L´édifice a été protégé au titre des Monuments historiques en 2008" (Lécuillier Guillaume, 2011).

Lécuillier Guillaume (dir.), Jean-Yves Besselièvre, Alain Boulaire, Didier Cadiou, Christian Corvisier, Patrick Jadé. Les fortifications de la rade de Brest : défense d'une ville-arsenal. Rennes, éd. Presses Universitaires de Rennes, coll. Cahiers du patrimoine, 2011, n° 94, 388 p.

Fonction : défense du mouillage de Camaret puis défense lointaine du vestibule du goulet de Brest. Dès 1694, la pointe du Toulinguet est occupée militairement, on y installe une batterie de côte et un signal. D'après l'Atlas des places fortes de France de 1784 (tome 69a : ouvrages extérieurs de Brest par De Caux) ; une batterie de côte désignée "batterie du Toulinguet" est mentionnée sur l'actuelle "pointe du Toulinguet". Elle s'intercalait entre les batteries du "Grand Gouin" et de la "pointe aux Pois". La batterie du Toulinguet est mentionnée dans l'Atlas des côtes de France 1818-1848 (tome 192 : direction de Brest). D'après l'état de 1820 et le plan de détail du lieutenant du Génie Boüevec daté de 1818, on compte au Toulinguet sept batteries de côte : - 8 mortiers de 12 pouces et 4 canons de 24 livres de balle, - 8 canons de 24 livres de balle, - 12 canons de 24 livres de balle, - 5 canons de 24 livres de balle, - 2 mortiers de 12 pouces, - 1 canon de 24 livres de balle, - 1 mortier de 12 pouces. - Une "tour-modèle n° 3" construite en 1812, - Un "corps de garde", - Un "magasin à poudre" et une "guérite". Une batterie de côte comprenant un "corps de garde" est mentionnée au lieu-dit "Penhat" ainsi qu'à la "pointe aux Pois" où il est fait mention de deux batteries de 2 pièces, d'un "corps de garde" et "magasin à poudre". Le cadastre de 1831 relève au moins sept éléments défensifs pointe du Toulinguet (apparaîssant en rosé et en bleuté) dont six batteries (cinq orientées vers le nord-ouest : le vestibule du goulet et une vers le sud-ouest : anse de Pan Hat) et le toponyme "Toullinguet". En 1841, la commission des côtes recommande l'armement de la batterie du Petit Grouin (14 "canons de 30 et obusiers de 22 en fer" ; "2 mortier de 32 en fer"). L'avis du comité des fortifications du 7 novembre 1844 confirme la décision de la commission. La batterie du Toulinguet est mentionnée dans l'Atlas de 1858 de mise en état de défense des côtes de l'Empire Français (n° 230). Classée en 2e degré d'importance, elle est armée de 7 "canons de 30", 7 "obusiers de 22" et 2 "mortiers de 32". Stockage des poudres : - Un magasin à poudre terrassé de type 1879 construit vers 1883-1884. - Un magasin à poudre sous roc construit vers 1890-1893. Selon l'Atlas des batteries de côte de 1893, les batteries du Toulinguet sont armées de : - 2 canons de 16 cm ; - 4 canons Guerre de 19 cm modèle 1875-1876 sur affût G.P.C. (cote : 52,40 mètres) ; - 4 canons de 24 cm modèle 1876 sur affût G.P.C. (cote : 52,40 mètres). Selon l'Atlas des batteries de côte de 1904, les batteries du Toulinguet sont armées de : - 4 canons Guerre de 95 mm sur affût Guerre de côte (cote : 54 mètres). - 4 canons Guerre de 19 cm modèle 1875-1876 sur affût G.P.C. (cote : 52,40 mètres) ; - 4 canons de 24 cm modèle 1876 sur affût G.P.C. (cote : 52,40 mètres). Selon l'Atlas des batteries de côte de 1913, les batteries du Toulinguet sont armées de : - 4 canons Guerre de 95 mm sur affût Guerre de côte (cote : 54 mètres). - 4 canons Guerre de 19 cm modèle 1875-1876 sur affût G.P.C. (cote : 52,40 mètres) ; - 4 canons de 24 cm modèle 1876 sur affût G.P.C. (cote : 52,40 mètres). Selon l'Atlas des batteries de côte de 1922, la batterie du Toulinguet est armée de : - 3 canons Guerre de 95 mm sur affût Guerre de côte (cote : 54 mètres) ("à supprimer") ("à remplacer par la batterie de 120 de Kerviniou") - 4 canons de 24 cm modèle 1876 sur affût G.P.C. (cote : 52,40 mètres) ("à supprimer") ("remplacement de la batterie de 24 par une batterie de 4 canons de 19 cm modèle 1902 sur affût de casemates transformés pour les tirs à 40 degrès"). Il est aussi question d'installer des "postes azimutaux" en "première urgence". Lors de la Seconde Guerre Mondiale, deux nouvelles batteries longue portée sont créées de toute pièce sur la pointe du Grand Grouin à l'est et sur la pointe de Kerbonn à l'ouest (dans le périmètre de la batterie de mortiers française).

  • Période(s)
    • Principale : 1er quart 19e siècle
    • Principale : 3e quart 20e siècle
    • Secondaire : 2e quart 20e siècle
  • Dates
    • 1812, porte la date, daté par source
    • 1813, daté par source
    • 1884, daté par source
  • Murs
    • granite
    • schiste
    • moellon
  • Toits
    pierre en couverture, béton en couverture
  • Plans
    plan rectangulaire régulier
  • Étages
    sous-sol, rez-de-chaussée
  • Couvrements
    • voûte en berceau
  • Couvertures
    • terrasse
  • État de conservation
    désaffecté, envahi par la végétation
  • Techniques
    • sculpture rupestre
  • Représentations
    • chronogramme
  • Précision représentations

    1812.

  • Statut de la propriété
    propriété de l'Etat
  • Intérêt de l'œuvre
    vestiges de guerre, à signaler
  • Sites de protection
    site classé, zone naturelle d'intérêt écologique faunistique et floristique
  • Protections
    classé MH, 2013/04/25
  • Précisions sur la protection

    L'ensemble défensif formé par la tour-modèle de type 1811, ses murs de défense, le mur d'escarpe et leurs fossés, en totalité (cad. CM 2 à 4) : classement par arrêté du 25 avril 2013.

  • Référence MH

Avis du Service de l'Inventaire du Patrimoine Culturel (SINPA) à la Commission Régionale du Patrimoine et des Sites, Fortifications littorales, juin 2008 : "Le Service de l'Inventaire du Patrimoine Culturel appuie fortement la proposition de protection au titre des Monuments Historiques mais souhaite pour des raisons de cohérence que cette dernière soit étendue à l'ensemble de la pointe du Toulinguet, c'est à dire à l'ensemble des batterie de cotes du 17e-19e siècles même s'il s'agit d'un terrain interdit au public (la question du sémaphore de la Marine Nationale demeure en suspens)".

Edifice visible de l'extérieur.

Site intégré à la Route des Fortifications de la presqu´île de Crozon créée en 2007.

Bibliographie

  • LÉCUILLIER, Guillaume (dir.), BESSELIÈVRE, Jean-Yves, BOULAIRE, Alain, CADIOU, Didier, CORVISIER, Christian, JADÉ, Patrick. Les fortifications de la rade de Brest : défense d'une ville-arsenal. Rennes : éditions Presses Universitaires de Rennes, collection Cahiers du patrimoine, 2011, n° 94, 388 p.

    Région Bretagne (Service de l'Inventaire du patrimoine culturel)

Périodiques

  • CHAURIS (L.), "La trilogie du Toulinguet : fortifications, phare, sémaphore" in Avel Gornog, Crozon, 2003, n° 11.

    p. 40-45
  • JADÉ, Patrick. "Les batteries du grand dessein dans le vestibule du goulet de Brest". Avel Gornog, n° 21, 2012.

Annexes

  • Annexe n°1
Date(s) d'enquête : 2002; Date(s) de rédaction : 2002
(c) Inventaire général
(c) Association Pour l'Inventaire de Bretagne
Lécuillier Guillaume
Lécuillier Guillaume

Chargé d'études d'Inventaire du patrimoine à la Région Bretagne.

Cliquez pour effectuer une recherche sur cette personne.