• enquête thématique départementale, Inventaire des églises et chapelles d'Ille-et-Vilaine
  • inventaire préliminaire, Paimpont
  • enquête thématique régionale, L'architecture gothique en Bretagne
Abbaye de chanoines réguliers de Saint Augustin, actuellement église paroissiale Notre Dame, presbytère et mairie (Paimpont)
Œuvre étudiée
Copyright
  • (c) Ville de Paimpont

Dossier non géolocalisé

Localisation
  • Aire d'étude et canton Ille-et-Vilaine - Plélan-le-Grand
  • Commune Paimpont
  • Cadastre 1957 H4 124
  • Dénominations
    abbaye
  • Destinations
    église paroissiale, presbytère, mairie
  • Parties constituantes non étudiées
    manoir, hôtellerie

Par-delà son apparente simplicité, l’architecture de l’église de Paimpont montre d’emblée, dès le XIIIe siècle, des hésitations significatives concernant en particulier le mode de couvrement, qui se retrouveront constamment par la suite dans l’architecture religieuse gothique en Bretagne. Elle témoigne également de la forte influence du modèle cistercien sur les chantiers des autres ordres monastiques, notamment ceux des chanoines réguliers, influence que l’on retrouve à la même époque sur le chantier de Beauport.

Dans l´absence d´une chronologie détaillée et de pièces d´archives très anciennes, la question de l´originalité stylistique de l´abbaye de Paimpont demeure en suspens. A la seule analyse toutefois, l´architecture révèle, comme le fait remarquer André Mussat dans « Arts et cultures de Bretagne. Un millénaire », sa filiation avec l´art normand contemporain. Les portes jumelées en arc trilobé, l´emploi de chapiteaux à culots coudés, la disparition du chapiteau dans les fenestrages, tout ceci se retrouve à Coutances et Dol vers 1220, mais aussi au choeur de la cathédrale de Saint-Malo, évêché dont relevait Paimpont. La disposition du portail occidental reproduit en réduction celle des cathédrales : l´absence d´ébrasements a seulement ici contraint de placer les anges orants dans les écoinçons du tympan (disposition adoptée pour la tribune des reliques de la Sainte-Chapelle de Paris). C´est aussi vers le milieu artistique de l´Île-de-France et de la Picardie, que renvoie la belle statue de Vierge à l´Enfant : Vierge du croisillon sud d´Amiens et Vierge de la façade nord de Notre-Dame de Paris. Ces statues de Paimpont étaient décapitées jusqu´au début du siècle. Pour la Vierge, la restauration fautive d´une tête droite et sans expression, a supprimé l´élégance du mouvement originel.

La façade aveugle, au-dessus du portail occidental présente un petit appareil régulier et soigné bien différent du reste de l´édifice et qui pourrait dater des XIIe ou XIIIe siècles. Par ailleurs les baies du XIIIe et XIVe siècle auraient été remontées à l´occasion d´une grande restauration attribuée par les textes à l´abbé Olivier Guiho, au cours du XVe siècle (c´est l´hypothèse de l´abbé Brune dans son cours d´archéologie de 1846).

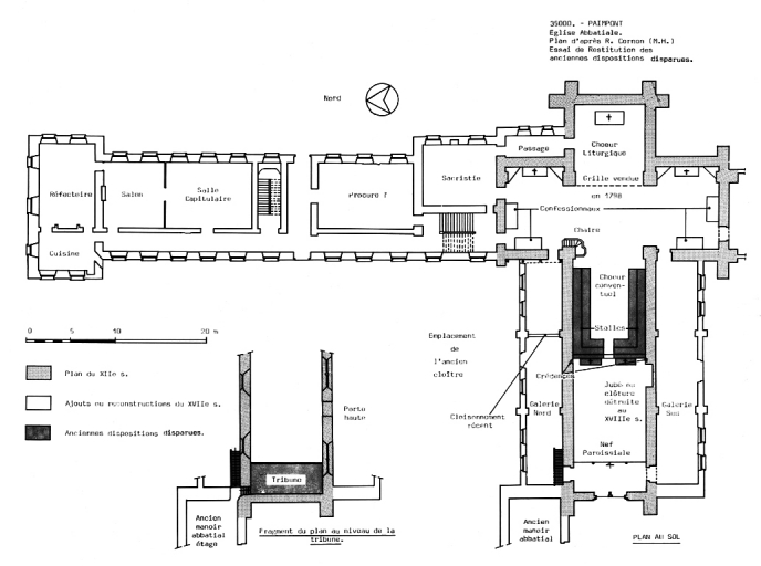
Si les procès-verbaux de l´époque révolutionnaire mentionnent « la belle grille qui défend l´entrée du choeur », ils ne disent rien d´une clôture ou d´un jubé séparant la nef paroissiale du choeur conventuel. Peut-être cette clôture disparut-elle dès le XVIIIe siècle. La porte haute retrouvée lors des travaux récents conduisait-elle à la tribune de ce jubé ? Une autre tribune, au-dessus de l´entrée ouest de l´église existait il y a encore une vingtaine d´années. Deux anciens accès la reliaient aux bâtiments abbatiaux : l´un au premier étage de l´ancien manoir abbatial est toujours visible, l´autre qui reliait le « cloître » nord à cette même tribune, a complètement disparu.

La destruction au XVIIe siècle de l´ancien cloître, dont des arcades subsistent sur le mur ouest du bras nord, et la transformation d´une église de plan simple en édifice à trois vaisseaux séparés semble correspondre à trois besoins :

- fonction conventuelle

- fonction paroissiale

- fonction de pèlerinage.

Pour les besoins des chanoines, le couloir nord pouvait servir de cloître ; celui du sud, on le sait par les textes (cf. Annexe n°3) servait, en cas de mauvais temps, d´abri aux paroissiens venus des écarts les plus éloignés. Enfin, pour le pèlerinage à Notre-Dame de Paimpont, la conjugaison des deux couloirs permettait sans doute la circulation des processions autour du choeur conventuel et son passage devant les retables du transept et le choeur liturgique.

Enfin, plusieurs indices pourraient faire rapprocher l´abbaye de Paimpont d´un établissement cistercien : l´endroit écarté, la présence d´établissements métallurgiques anciens, la tradition longtemps conservée d´une église à nef unique et chevet plat, sans tour de clocher. Toutefois aucun auteur ancien ne mentionne de réforme cistercienne à Paimpont. D´autre part M. André Dufief, auteur d´une thèse inédite sur les Cisterciens en Bretagne (Université de Haute-Bretagne, 1978) constate que les cisterciens ne reprirent généralement pas de fondations bénédictines en Bretagne et fait remarquer par ailleurs l´absence totale de « granges » sur le territoire de l´abbaye.

(notice établie par Jean-Jacques Rioult en 1982 augmentée en 2010)

L´abbaye passe pour avoir été fondée au 7e siècle par Judicaël, roi de Bretagne, à proximité de son château de Plélan-le-Grand. L´église est une sobre construction du 13e siècle réalisée après l´installation à Paimpont des chanoines réguliers augustins. Plusieurs éléments architecturaux y signalent une influence normande, peut-être transmise par le chantier de la cathédrale de Saint-Malo, diocèse dont relevait l´abbaye : portes géminées, arcs trilobés, culots coudés et fenestrages sans chapiteaux. A l´intérieur, seuls le chœur et le transept sont voûtés ; dans la nef, le voûtement a été entrepris puis remplacé par un lambris au 15e siècle sous l´abbé Guiho (1407-1452). La voûte du transept nord est également refaite en bois en 1809. Des réparations au clocher et à la chapelle du Rosaire sont également signalés en 1834. Les bâtiments conventuels sont quant à eux du 17e siècle.

  • Période(s)
    • Principale : 13e siècle
    • Principale : 17e siècle
    • Secondaire : 1ère moitié 15e siècle
    • Secondaire : 1ère moitié 19e siècle
  • Dates
    • 1809, porte la date

Plan et ordonnance intérieure

Le parti général de l’église de Paimpont apparaît comme une transposition simplifiée du modèle cistercien : l’absence de clocher, la nef à vaisseau unique dont la moitié supérieure abrite le chœur conventuel, les chapelles orientées sur les bras de transept, le dépouillement ornemental sont incontestablement à mettre au compte de cette influence. Dans le mur sud de la nef, juste avant l’emplacement de l’ancienne clôture du chœur, une arcade cernée d’une moulure torique retombant sur des chapiteaux à crochets identiques à ceux du portail ouest donne le niveau du sol d’origine, sensiblement en contrebas de l’actuel. Comme l’indique une inscription latine gravée sur le jambage de droite, cet ancien enfeu seigneurial fut relevé et associé en 1375 à une fondation de messe par Jean Magne et son épouse Jehanne de Blossac, issue de la maison féodale de Lohéac, liée à la fondation du monastère. À ce niveau se voient encore dans les murs nord et sud deux crédences liturgiques correspondant aux autels adossés devant la clôture. Les fenêtres du nord, qui prenaient jour du côté du cloître, sont extrêmement simples, assez étroites et dépourvues de réseau. Celles du sud, composées de deux lancettes que surmonte un quadrilobe, font entrer largement la lumière dans la nef.

D’emblée s’impose la disparité fondamentale que le chœur présente avec la nef. Seuls le transept et le chœur sont voûtés, avec des proportions peu ordinaires, la montée de voûte occupant la moitié de la hauteur totale du volume. Dans la nef, couverte d’une charpente lambrissée, des amorces de voûtes reposant sur des culots coudés sont visibles à mi-hauteur des murs gouttereaux. Cette charpente lambrissée à chevrons fermes qui se termine à l’ouest par une croupe correspond au modèle à poinçon rejoignant l’entrait, couramment employé au XVe siècle. Elle porte par trois fois les armes de l’abbé Guiho, restaurateur de l’abbaye, mort en 1452, ce qui permet d’en situer la pose au cours de la première moitié du siècle.

La récente restauration a permis de redécouvrir des détails inédits qui apportent probablement l’explication de ces éléments contradictoires. Le décor de faux appareil en ocre rouge du XIIIe siècle qui ornait les murs du transept et du chœur a été retrouvé intact au-dessus des voûtes, au sommet des murs du chœur juste en-dessous de la charpente à chevrons fermes qui le couvre. Cet indice archéologique avait été interprété à tort par les historiens du XIXe siècle comme la preuve de l’existence d’un voûtement initial en pierre beaucoup plus haut que l’actuel, hypothèse qui ne résiste pas à l’analyse. Il confirme en fait que, dans un premier temps, reportant à plus tard la construction des voûtes, on a installé leurs amorces et adopté pour l’ensemble de l’édifice un couvrement provisoire en charpente lambrissée et réalisé le décor peint des murs. Dans une deuxième phase que l’on peut situer au cours du XIIIe siècle, on entreprit de voûter le sanctuaire. Dans le bras nord du transept, la voûte de pierre qui menaçait ruine a été remplacée en 1809 par une fausse voûte de bois. Plus tard dans le XIXe siècle, on a installé au-dessus de la nef de semblables fausses voûtes pour unifier l’espace intérieur de l’église.

L’ensemble des fenêtres de l’église se caractérise par un net dépouillement qui transcrit de façon épurée les modèles du XIIIe siècle. La grande baie d’axe est la seule à présenter à l’intérieur comme à l’extérieur une arcature à colonnettes et chapiteaux à crochets. De façon curieuse, et comme à Saint-Mathieu-de-Fine-Terre, la naissance de l’arc est décrochée de quelque 50 cm par rapport au tailloir. La mise en œuvre de cette fenêtre dont les jambages en pierre de taille paraissent comme encastrés dans la maçonnerie de moellons a induit l’hypothèse d’un remontage complet des baies de l’église au XVe siècle. En réalité, comme souvent dans les anciennes maçonneries de moellons, les murs ne sont pas d’aplomb mais présentent un fruit très sensible. Le retrait des jambages en pierre de taille de la baie, parfaitement d’aplomb, n’est donc pas lié à une reprise postérieure mais plutôt à une technique de construction. Les autres fenêtres de l’église présentent également une mise en œuvre particulière dans laquelle l’ébrasement des piédroits s’arrête à la naissance de l’arc. Enfin, il faut remarquer la rose du bras sud, une des rares du genre conservée en haute Bretagne, qui trouve ici son explication par la présence contre ce mur-pignon, sans doute dès l’origine, d’un appentis qui pouvait initialement servir de sacristie.

Ordonnance extérieure

On pénètre dans l’église par l’unique accès d’origine situé à l’ouest. Ce large portail à deux entrées géminées, qui reproduit en réduction les modèles des grands édifices du XIIIe siècle, figure parmi les rares de cette époque subsistant en Bretagne. L’absence d’ébrasements a contraint à placer les anges orants de part et d’autre de la Vierge du trumeau central dans les écoinçons du tympan. La mouluration savante des deux rouleaux d’arc qui portent encore des traces de peinture ocre, les bases en galettes et les chapiteaux à crochets d’un dessin parfait appartiennent au gothique classique le plus pur. Les deux portes à simple chanfrein sont surmontées d’arcs trilobés dont les redents sont comme pincés et terminés par des motifs feuillagés, détail ornemental qui témoigne de la grande qualité d’exécution de ce portail. L’élégance aristocratique de la Vierge représentée en marche, foulant aux pieds le démon, et dont la robe et le manteau au drapé souple, la ceinture flottante rehaussée d’orfrois accompagnent le mouvement, renvoie aux modèles de l’Île-de-France et de la Picardie. Il faut bien entendu faire abstraction des têtes qui sont des restitutions de la fin du XIXe siècle. Le reste du mur-pignon est aveugle : un changement de matériau et d’appareillage au-dessus du portail pourrait indiquer un remontage du XVe siècle. En tout état de cause, le pignon a été remplacé par une croupe lors de la réfection de la charpente de la nef sous l’abbé Guiho. Sur la droite, se voit très nettement la moitié inférieure du premier contrefort du mur sud, contre laquelle est venue se coller l’écrouette ajoutée au XVIIe siècle, indice certain que ce contrefort montait à l’origine comme son jumeau de l’ouest jusqu’au sommet du mur. Cette observation apporte sans doute l’explication de l’absence totale de contreforts sur les deux murs nord et sud de la nef, alors qu’ils sont figurés sur une vue cavalière gravée en 1645. Il est probable que, devenus inutiles depuis le renoncement aux voûtes et l’établissement au XVe siècle d’une charpente lambrissée sur la nef, ils ont été démontés lors de la construction des écrouettes afin d’en récupérer les matériaux.

  Plan en croix latine à un vaisseau ; voûte d'ogives, lambris de couvrement ; toit à longs pans, noue, appentis, pignon découvert ; clocher médian, chevet plat ; portail remarquable.

  • Murs
    • grès
    • moellon
  • Toits
    ardoise
  • Plans
    plan en croix latine
  • Étages
    1 vaisseau
  • Couvrements
    • lambris de couvrement
    • voûte d'ogives
  • Typologies
    clocher à la croisée du transept ; chevet plat

Données complémentaires architecture IP35

  • DENO
  • HYPOI sans objet
  • HYPOE sans objet
  • PHYPO
  • STYL
  • NOTA
  • MURS1 grès ; moellon
  • MURS2
  • SCLE1 13e siècle ; 17e siècle
  • IMPA
  • CBATI
  • IMBATI
  • PERP
  • ESPAL
  • PASSAGE
  • ESPAP
  • DISTRIB
  • ORDO
  • ELEV
  • ETAG
  • COMBLE
  • MOUV
  • RDC
  • ACCESA
  • ACCESP
  • NATUA
  • FACCES
  • FAXE
  • FETAG
  • FOUV
  • IAUT sans objet
  • ICHR typicum
  • IESP typicum
  • ICONTX intégré
  • PINTE
  • SEL étudié
  • TYPVIL
  • TYPECA
  • POSECA
  • Statut de la propriété
    propriété de la commune
  • Protections
    classé MH, 1966/10/07
  • Référence MH

A signaler. Environnement également remarquable.

Documents d'archives

  • A. D. d'Ille-et-Vilaine. Série C. 1241 : correspondance entre l´intendant, le comte de Saint Florentin et M. de la Houssaye relative à une enquête par laquelle les religieux de l´abbaye de Paimpont demandent l´autorisation de faire démolir quelques bâtime.

    Archives départementales d'Ille-et-Vilaine
  • A. D. d'Ille-et-Vilaine. Série C. 1252 : Economats du Clergé de France. Une contrainte décernée par le directeur des économats de l´évêché de Saint-Malo contre les chanoines réguliers de l´abbaye de Paimpont pour le paiement de 12 500 livres par eux dues .

    Archives départementales d'Ille-et-Vilaine
  • A. D. d'Ille-et-Vilaine. Série C. 2219 : requêtes ou décharge de droits d´amortissement, nouvel acquêt et de centième denier, présentées à l´Intendance par les religieux de Paimpont.

    Archives départementales d'Ille-et-Vilaine
  • A. D. d'Ille-et-Vilaine. Série F. 1F 454 : liste des prieurés de Paimpont (Fonds La Borderie).

    Archives départementales d'Ille-et-Vilaine
  • A. D. d'Ille-et-Vilaine. Sous-série 1F 1957 : registre des délibérations capitulaires de l´abbaye de Paimpont (13 mars-26 août 1771)..

    Archives départementales d'Ille-et-Vilaine
  • A. D. d'Ille-et-Vilaine. Sous-série 7 F a 211 : notices, plans, dessins, coupures de livres, journaux sur Paimpont. (Fonds des Bouillons).

    Archives départementales d'Ille-et-Vilaine
  • A. D. d'Ille-et-Vilaine. Série V. 1. V 244 : curés et vicaires. Nominations. Entrées en fonction, certificats de résidence, avis de décès (1843-1851).

    Archives départementales d'Ille-et-Vilaine
  • A. D. d'Ille-et-Vilaine. Série F. 1 F. 201 : notes historiques et archéologiques sur les paroisses. Paimpont, église, trésor (Fonds de la Bigne Villeneuve)..

    Archives départementales d'Ille-et-Vilaine
  • A. D. d'Ille-et-Vilaine. Série O : (bâtiments communaux) peu de choses ; 3 0 : 1834 : travaux de réfection dans l´église..

    Archives départementales d'Ille-et-Vilaine
  • A. D. d'Ille-et-Vilaine. Série Q : (biens nationaux) : 1 Q 388. Procès verbal d'estimation des terres et dépendances de l'abbaye de Paimpont.

    Archives départementales d'Ille-et-Vilaine
  • A. D. d'Ille-et-Vilaine. Série V. 1 V. 727 : appointements sur les frais communaux des vicaires. Assiette et recouvrement. Délibération des conseils municipaux. Correspondance (1806-1829).

    Archives départementales d'Ille-et-Vilaine
  • A. D. d'Ille-et-Vilaine. Série 1 V. 1293 : comptes de gestion de la fabrique de Paimpont (1894-1895 et 1900-1906).

    Archives départementales d'Ille-et-Vilaine
  • A.D. Ille-et-Vilaine. Série Q : 1 Q 850. Inventaire, récollement et procès verbal de vente des biens meubles et effets mobiliers de l'abbaye Notre-Dame de Paimpont.

    Archives départementales d'Ille-et-Vilaine

Bibliographie

  • GUILLOTIN DE CORSON. Pouillé historique de l'archevêché de Rennes. Rennes : Fougeray Libraire-éditeur. Paris : René Hatton Libraire-éditeur, 1882-1886, 6 vol.

  • INVENTAIRE GÉNÉRAL DES MONUMENTS ET DES RICHESSES ARTISTIQUES DE LA FRANCE. Région Bretagne. Ille-et-Vilaine. Eglises et Chapelles, par ORAIN Véronique, avec la collaboration de BARBEDOR Isabelle, DUFIEF-MOIREZ Denise, RIOULT Jean-Jacques. Rennes : Association pour l' Inventaire Bretagne, 1996, (Indicateurs du patrimoine).

    Région Bretagne (Service de l'Inventaire du patrimoine culturel)
  • BANÉAT, Paul. Le département d'Ille-et-Vilaine : histoire, archéologie, monuments. Rennes : Librarie Moderne J. Larcher, 1927-1929, 4 vol.

    t. 3, p. 28-32
  • GUILLOTIN DE CORSON, Abbé.Le registre de Concoret. Mémoires d´un prêtre réfractaire pendant la terreur. Saint-Brieuc, L. Prud´homme, 1853 [Vente des grilles du choeur de l´abbaye].

    p. 42, 43 , 45.
  • MORICE, Dom Pierre-Hyacinthe. Mémoires pour servir de preuves à l´histoire ecclésiastique et civile de Bretagne mis en ordre par Dom Hyacinthe Morice. Paris, C. Osmont, 1742-1746.

    t. 1, p. 1032 ; t. 2, p. CXXXIV
  • COTTINEAU, L.H. Répertoire topo-bibliographique des abbayes et prieurés. Mâcon, Protat frères, 1935-1938.

    vol. 2, p. 2172.
  • ENLART, Camille. Manuel d´archéologie française depuis les temps mérovingiens jusqu´à la Renaissance. Tome III, Le costume. Paris, A. Picard, 1927.

  • LECESTRE, Léon. Abbayes, prieurés et couvents d´hommes en France. Paris, Picard et fils, 1902.

    p. 38
  • MUSSAT, André. Arts et cultures de Bretagne. Un millénaire . Paris, Berger-Levrault, 1979.

    p. 62, 87, 114, 119.
  • OGEE, Jean-Baptiste. Dictionnaire historique et géographique de la province de Bretagne. Rennes, Deniel, 1853.

    t. 2, p. 257-259.
  • REAU, Louis. Iconographie de l´art chrétien. Paris, Presses Universitaires Françaises, 1958.

  • VIOLLET-LE-DUC, Eugène. Dictionnaire raisonné du mobilier français. Paris, Vve A. Morel et Cie, 1873.

  • BRUNE, Abbé. Résumé du cours d´archéologie professé au séminaire de Rennes. Rennes, Vatar et Jausions, 1846.

    p. 321-326.
  • LE BARS, François. La vente des biens nationaux dans le district de Montfort. Maîtrise d´Histoire, Université de Haute Bretagne, 1976.

  • Mémoire pour le général de la paroisse de Mauron, suite et diligence des trésoriers en charge, aux fins de requête du 15 novembre 1783. Rennes, Vve François Vatar, 1790.

  • ROYER, Eugène. En pleine forêt de Brocéliande, l´abbaye de Notre-Dame de Paimpont. La Seyne-sur-Mer : Ed. France-Publicité, 1969.

  • FROTIER DE LA MESSELIÈRE, Henri. Le Guide de l'Ille-et-Vilaine. nlle éd. [1907]. Plouagat : s.e., 1994.

    p. 131
  • GUIGON, Philippe. Les églises du Haut Moyen Age en Bretagne. Saint-Malo : Centre d´Archéologie d´Alet, 1997.

    t. 1, p. 72, 155, 179

Périodiques

  • BUFFET, Henry François. Dans la forêt de Brocéliande, l'abbaye Notre-Dame de Paimpont. Saint-Christophe Magazine, 1971.

    n°1, p. 15-18
  • GERUY, Louis. Paimpont. Le pélerinage, l'église, l'abbaye, les chapelles, la forêt et ses légendes.. Paris, Nanterre, Vannes, 1907, in 8°, 73p. (extrait de la Revue de Bretagne).

  • GERUY, Louis. Un grand pélerinage et un charmant pays. In : La Revue de Bretagne, 1907, in 8°, 32 p..

  • EVELLIN, Emile. Procès-verbaux . In : Bull. Mém. de la Soc. Archéol. d´Ille-et-Vilaine. (Description du bras reliquaire).

    t. 69, 1950-1952, p. VI.
  • LA BIGNE-VILLENEUVE, P. de. Classe d´archéologie, 7ème séance. In : Bull. Archéol. Ass. Bretonne (le bras reliquaire et ses inscriptions).

    vol. 4, 1852, p. 75.
  • LA BORDERIE, M.A. de. Choix de documents inédits sur le règne de la duchesse Anne de Bretagne 1488-1490, 2ème série. In : Bull. et Mém. de la Soc. Archéol. d´Ille-et-Vilaine .

    t. 6, 1868, p. 272.
  • MOLLAT, G. Etudes et documents sur l´histoire de Bretagne XIIIe-XVIe siècles). In : Annales de Bretagne. (Difficultés financières de l´abbaye de Paimpont ; lettre de l´abbé de Paimpont à Benoît XIII, le 18 octobre 1397).

    t. 26, 1910-1911, p. 159-201
  • LESQUEN, G. de. Mesures fiscales exercées en Bretagne par les papes d´Avignon. In : Annales de Bretagne.

    t. 19, 1903-1904
  • LECLAIRE, Abbé. Saint Judicaël au pays de Gaël. In : Ass. Bretonne 16-19. 58ème congrès, t. XXXVI, 1924, p. 16-19. (Tentative de remise en question de la fondation de l´abbaye par saint Judicaël. Problèmes des reliques de saint Judicaël).

  • POCQUET DU HAUT JUSSE, B.A. Excursion de la Société archéologique à Paimpont, Comper, Trecesson et Beignon. In : Bull. et Mém. de la Soc. Archéol. de l´Ille-et-Vilaine .

    t. 53, 1926, p. 29-36
  • POCQUET DU HAUT JUSSE, B.A. La réforme génovéfaine en Bretagne au XVIIe siècle. Notre-Dame de Paimpont . In : Bull. et Mém. de la Soc. Archéol. de l´Ille-et-Vilaine .

    t. 71, 1956-1957, p. 35-55

Documents figurés

  • 10- Paimpont (I.-et-V.) Ancienne Abbaye, carte postale, J. Sorel, éditeur, Rennes, [s.d.] (A.D. Ille-et-Vilaine : 6 Fi)..

    Archives départementales d'Ille-et-Vilaine
  • La Bretagne en couleur 5.9750 - PAIMPONT (Ille-et-Vilaine), vue générale de l'Abbaye, carte postale, édition d'art Jos Le Doaré, Châteaulin, [s.d.] (A.D. Ille-et-Vilaine : 6 Fi).

    Archives départementales d'Ille-et-Vilaine
  • 2 - PAIMPONT - L'Abbaye, carte postale, coll. Madame Névot, L. Bahon-Rault, édit., Rennes, [s.d.] (A.D. Ille-et-Vilaine : 6 Fi).

    Archives départementales d'Ille-et-Vilaine
  • Ille-et-Vilaine PAIMPONT. L'Abbaye, carte postale, 1-276. Bailly, photog. Vve Chamarre, édit. Ploermel (Morb.), [s.d.] (A.D. Ille-et-Vilaine : 6 Fi).

    Archives départementales d'Ille-et-Vilaine
  • 260- Paimpont (I.&-V.) L'abbaye et l'Etang, côté sud-ouest, carte postale, A. Lamiré éditeur, Rennes, [s.d.] (A.D. Ille-et-Vilaine : 6 Fi).

    Archives départementales d'Ille-et-Vilaine
  • 3440- PAIMPONT. Le Portail de l'Eglise, carte postale, Laurent-Nel, Rennes, [s.d.] (A.D. Ille-et-Vilaine : 6 Fi).

    Archives départementales d'Ille-et-Vilaine
  • EN AVION AU DESSUS DE ... 5 -PAIMPONT (I.-et-V.) Abbaye et rue principale, carte postale, édition Sofer, Rennes, [s.d.] (A.D. Ille-et-Vilaine : 6 Fi).

    Archives départementales d'Ille-et-Vilaine
  • 313 Paimpont (I.-et-V.). Abbaye, côté de l'étang, carte postale, E. Mary-Rousselière édit, Rennes, [s.d.] (A.D. Ille-et-Vilaine : 6 Fi).

    Archives départementales d'Ille-et-Vilaine
  • 314 Paimpont (I.-et-V.). L'Eglise (ancien Abbaye), carte postale, A. Lamiré, Rennes, [s.d.] (A.D. Ille-et-Vilaine : 6 Fi).

    Archives départementales d'Ille-et-Vilaine
  • PAIMPONT (I.-et-V.) Intérieur de l'Eglise, carte postale, 59 collection Le Marchand, Médréac, [s.d.] (A.D. Ille-et-Vilaine : 6 Fi).

    Archives départementales d'Ille-et-Vilaine
  • Feuille cadastrale de la section H4 dite du Bourg, par Lebreton géomètre, [1823], échelle 1/2500e (A. D. d'Ille-et-Vilaine : 3 P 5438).

    Archives départementales d'Ille-et-Vilaine
  • Plan général de la forest de Bressilien située dans la paroisse de Paimpont, carte de 1727. (Mairie de Paimpont).

    Ville de Paimpont
  • Plans schématiques manuscrits de l´abbaye de Paimpont au début du XXe siècle, dessins des statues. [A.D. Ille-et-Vilaine. Sous-série 7 Fa. 211. (Fonds des Bouillons) ].

    Archives départementales d'Ille-et-Vilaine
  • Vue intérieure de l´église de Paimpont, carte postale « Gaby », vers 1950 (A.D. Ille-et-Vilaine).

    Archives départementales d'Ille-et-Vilaine
  • Vue du choeur de l´église avec le baldaquin., carte postale « Artaud » vers 1970 (A.D. Ille-et-Vilaine).

    Archives départementales d'Ille-et-Vilaine
  • EVELLIN, Emile. Procès-verbaux. In : Bull. Mém. De la Soc. Archéol. d´Ille-et-Vilaine .

    t. 69, 1950-1952.
  • Carte de la France, feuille 129, Rennes, plan réalisé sous la direction de César-François Cassini de Thury, levé vers 1783 à l'échelle de 1 ligne pour 100 toises [environ 1/86 400].

Annexes

  • Enquête thématique régionale (églises et chapelles d'Ille-et-Vilaine) - 1992-1994 (Véronique Orain ; Isabelle Barbedor)
  • Annexe n°2
Date(s) d'enquête : 1982; Date(s) de rédaction : 1994, 2000, 2008
Articulation des dossiers