Photographe à l'Inventaire
- inventaire préliminaire, Cesson-Sévigné
- enquête thématique régionale, Inventaire des châteaux du 19e siècle en Bretagne
- (c) Inventaire général, ADAGP
Dossier non géolocalisé
-
Aire d'étude et canton
Ille-et-Vilaine - Cesson-Sévigné
-
Commune
Cesson-Sévigné
-
Lieu-dit
la Monniais
-
Cadastre
1985
AZ
-
Dénominationsmaison
-
Parties constituantes non étudiéesparc, conciergerie, logement
Construit vers 1887-1890, pour M. Gardin du Boisdulier, le château de la Monniais, forme un bel exemple d´habitation dans le style Castel Tudor. L´influence anglaise se devine dans la composition des volumes, par l´ajout d´appendices extérieurs tels que le bow-window et le porche mais aussi par les fenêtres à guillotines qui sont présentes dans les cartes postales du début du siècle. Le plan, par contre reste très attaché aux modèles classiques des demeures bourgeoises de l´époque. Un couloir central dessert, à droite, une vaste salle de réception, à gauche, une salle à manger et l´office. La mairie de Cesson-Sévigné a acheté le domaine en 1986. La composition du parc planté de séquoias et d´espèces rares est attribuable aux frères Bulher qui ont dessiné de nombreux jardins à Rennes dont le Thabor et le parc Oberthur. Conciergerie et maison de jardinier complètent cet ensemble. La métairie a également été conservée.
-
Période(s)
- Principale : 4e quart 19e siècle
-
Murs
- schiste
- moellon
-
État de conservationrestauré
Données complémentaires architecture IP35
- DENO
- HYPOI sans objet
- HYPOE sans objet
- PHYPO
- STYL
- NOTA
- MURS1 schiste ; moellon
- MURS2
- SCLE1 4e quart 19e siècle
- IMPA
- CBATI
- IMBATI
- PERP
- ESPAL
- PASSAGE
- ESPAP
- DISTRIB
- ORDO
- ELEV
- ETAG
- COMBLE
- MOUV
- RDC
- ACCESA
- ACCESP
- NATUA
- FACCES
- FAXE
- FETAG
- FOUV
- IAUT unicum
- ICHR unicum
- IESP unicum commune
- ICONTX autre
- PINTE
- SEL sélection requise
- TYPVIL
- TYPECA
- POSECA
-
Statut de la propriétépropriété publique
- (c) Inventaire général, ADAGP
- (c) Inventaire général, ADAGP
- (c) Inventaire général, ADAGP
- (c) Inventaire général, ADAGP
- (c) Inventaire général, ADAGP
- (c) Inventaire général, ADAGP
- (c) Inventaire général, ADAGP
- (c) Inventaire général, ADAGP
- (c) Inventaire général, ADAGP
- (c) Inventaire général, ADAGP
- (c) Inventaire général, ADAGP
- (c) Inventaire général, ADAGP
- (c) Inventaire général, ADAGP
Bibliographie
-
Le patrimoine des communes d´Ille-et-Vilaine. Paris : Flohic Editions, 2000, (Le Patrimoine des Communes de France).
p. 302 -
PELERIN, Joseph, REMY, Sophie. Voyage dans le temps. Cesson-Sévigné. Dinard : éditions Danclau, 1996.
p. 89 -
SORIEUX, Aurore. Inventaire topographique des châteaux du 19e siècle en pays rennais. Cesson-Sévigné, Saint-Grégoire. Mém. maîtrise : Hist. Art : Rennes 2, Université de Haute-Bretagne : 2001-2002.
Documents figurés
-
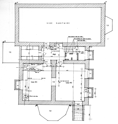
La Monniais, plan du sous-sol par Michel Anne, maître d'oeuvre, 1999. In : SORIEUX, Aurore. Inventaire topographique des châteaux du 19e siècle en pays rennais. Cesson-Sévigné, Saint-Grégoire. Mém. maîtrise : Hist. Art : Rennes 2, Université de Haute-Bretagne : 2001-2002.
-
La Monniais, plan du rez-de-chaussée par Michel Anne, maître d'oeuvre, 1999. In : SORIEUX, Aurore. Inventaire topographique des châteaux du 19e siècle en pays rennais. Cesson-Sévigné, Saint-Grégoire. Mém. maîtrise : Hist. Art : Rennes 2, Université de Haute-Bretagne : 2001-2002.
-
La Monniais, plan du premier étage par Michel Anne, maître d'oeuvre, 1999. In : SORIEUX, Aurore. Inventaire topographique des châteaux du 19e siècle en pays rennais. Cesson-Sévigné, Saint-Grégoire. Mém. maîtrise : Hist. Art : Rennes 2, Université de Haute-Bretagne : 2001-2002.
Photographe à l'Inventaire