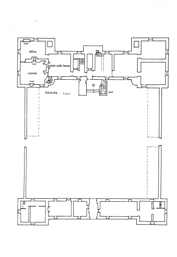
Château de la Magnanne (Andouillé-Neuville),
Restitution du plan au niveau du sous-solImmatriculation
IVR53_20053525570NUCB
Auteur du document reproduit
-
Amiot ChristopheAmiot ChristopheCliquez pour effectuer une recherche sur cette personne.
Auteur de l'illustration
Copyright
- (c) Inventaire général, ADAGP
Diffusion
reproduction soumise à autorisation du titulaire des droits d'exploitation
Type
phototype numérique
Besoin d'informations sur cette illustration ?
Nous contacter
-
Document de l'auteur, non publié.
Bretagne art, création, société : en l'honneur de Denise Delouche. Rennes, Presses universitaires de Rennes 1997.
Le décor peint du château du Châtellier à Corps-Nuds : un exemple de décor civil breton du milieu du XVIIe siècle