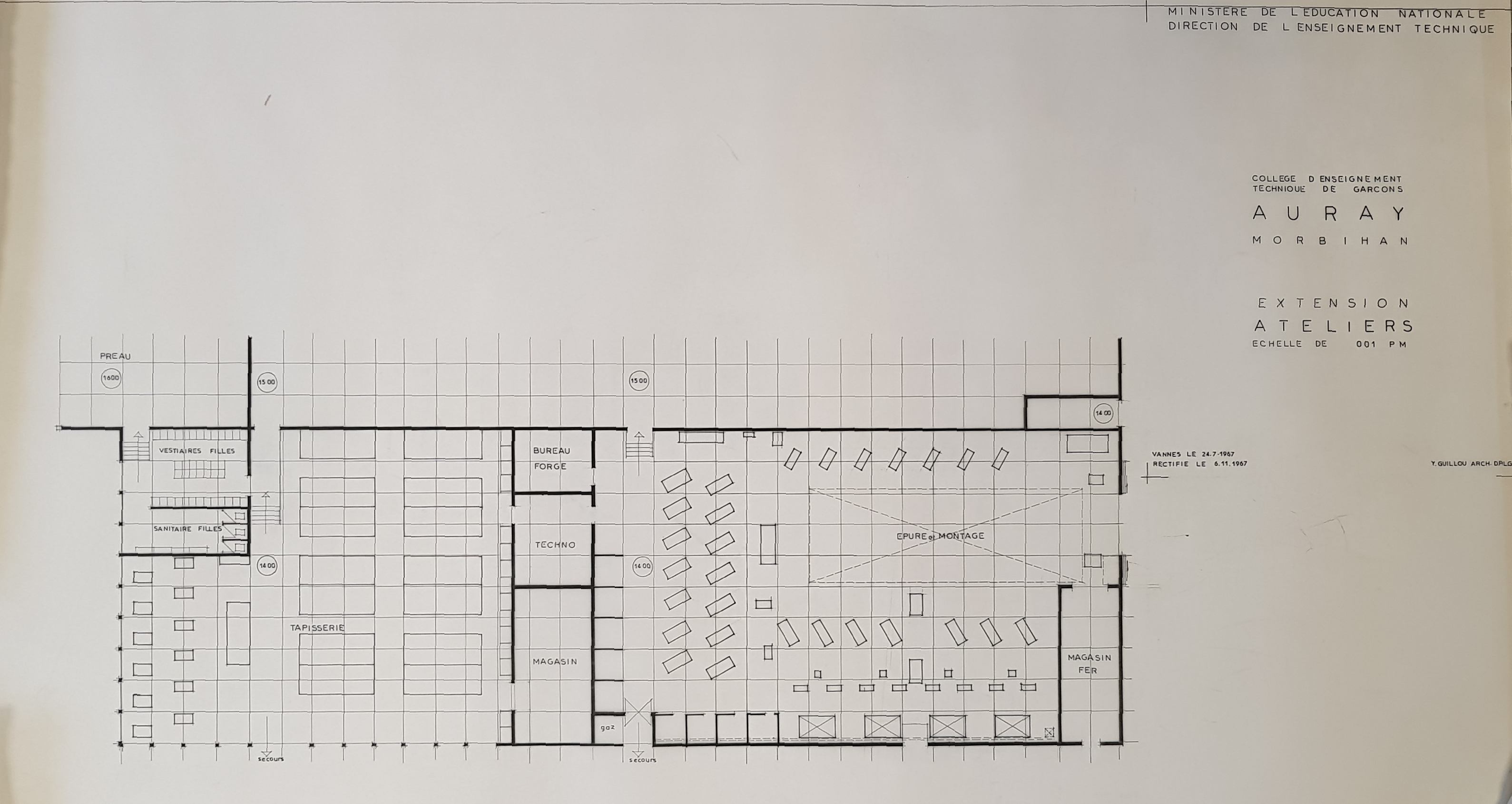
Lycée professionnel Bertrand Duguesclin, 50 rue Pierre Allio (Brec'h),

Plan de la première extension des ateliers en 1967. Yves Guillou, architecte.
Immatriculation
IVR53_20205605019NUC
Auteur du document reproduit
Copyright
  • (c) Conseil départemental du Morbihan
Année de prise de vue
2019
Diffusion
reproduction soumise à autorisation du titulaire des droits d'exploitation
Type
phototype numérique
Besoin d'informations sur cette illustration ?
Nous contacter
Références des documents reproduits
  • Archives départementales du Morbihan : 110 J 49, Plans et élévations, 1961-1967.

    Archives départementales du Morbihan : 110 J 49