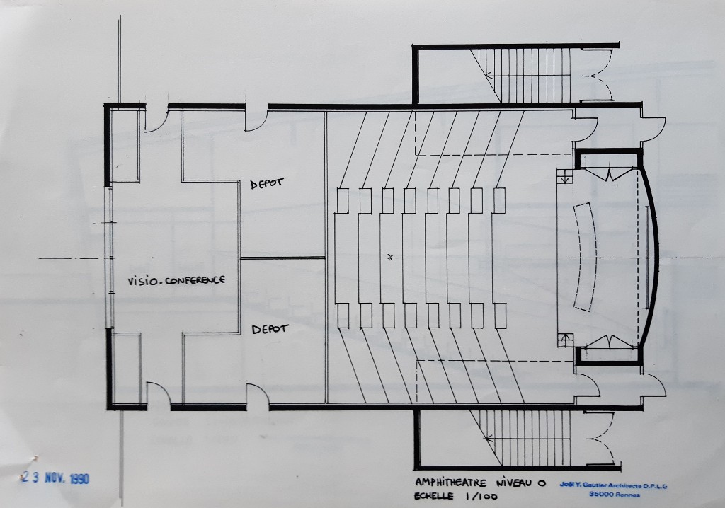
Lycée Sévigné, 2, rue de la Chalotais (Cesson-Sévigné),

Plan de l'amphithéâtre, niveau 0. Joël Y. Gautier, architecte, 1990.
Immatriculation
IVR53_20263510018NUC
Auteur de l'illustration
  • Gautier Joël Yves Marie
    Gautier Joël Yves Marie

    Formation à l'École des Beaux-arts de Paris de 1959 (à l'atelier d'Otello Zavaroni). Diplômé en 1965. Professeur à l’École nationale d'architecture de Rennes. Installé à Rennes, il cofonde en 1967 l'agence ARC - Architecture, Recherche et Construction. Il la quitte dès 1970 pour continuer d'exercer en son nom propre. Il met fin à sa carrière en 2008.

    Cliquez pour effectuer une recherche sur cette personne.
Année de prise de vue
2026
Diffusion
reproduction soumise à autorisation du titulaire des droits d'exploitation
Type
phototype numérique
Besoin d'informations sur cette illustration ?
Nous contacter
Références des documents reproduits
  • Région Bretagne (Service des archives) : 209W49. Lycée de Cesson-Sévigné : plans.

    Région Bretagne (Service des archives) : 209W49