Dessinatrice à l'Inventaire
Résultats de la recherche : "Le Net Nicole" 26 résultats
Notice d'illustration
IVR53_20242210299NUDA
|
Château de la Roche-Jagu (Ploëzal)
Plan du premier étage : état supposé du 15e siècle (Jean-Jacques Rioult et Nicole Le Net d'après un plan du département des Côtes-d'Armor)
Notice d'illustration
IVR53_20202200442NUDA
|
Eglise paroissiale Notre-Dame (Le Quillio)
Plan archéologique avec l'emplacement des autels
Notice d'illustration
IVR53_20172202761NUDA
|
Maison d'aubergiste, 22 rue Ernest Renan (Tréguier)
Plan au sol du rez-de-chaussée
Notice d'illustration
IVR53_20172202762NUDA
|
Maison d'aubergiste, 22 rue Ernest Renan (Tréguier)
Plan au sol du 1er étage
Notice d'illustration
IVR53_20202200444NUD
|
Eglise paroissiale Notre-Dame (Le Quillio)
Plan au sol avec l'emplacement des autels
Notice d'illustration
IVR53_20242210303NUDA
|
Château de la Roche-Jagu (Ploëzal)
Plan du niveau intermédiaire : logement du chapelain et pièce haute de la tour, état supposé du 15e siècle (Jean-Jacques Rioult et Nicole Le Net d'après un plan du département des Côtes-d'Armor)
Notice d'illustration
IVR53_20242210301NUDA
|
Château de la Roche-Jagu (Ploëzal)
Coupe transversale au niveau du corps principal : état supposé du 15e siècle (Jean-Jacques Rioult et Nicole Le Net d'après un plan du département des Côtes-d'Armor)
Notice d'illustration
IVR53_20202200446NUD
|
Eglise paroissiale Notre-Dame (Le Quillio)
Plan au sol avec l'emplacement des autels
Notice d'illustration
IVR53_20202200443NUD
|
Eglise paroissiale Notre-Dame (Le Quillio)
Plan au sol
Notice d'illustration
IVR53_20242210302NUDA
|
Château de la Roche-Jagu (Ploëzal)
Plan des combles : état supposé du 15e siècle (Jean-Jacques Rioult et Nicole Le Net d'après un plan du département des Côtes-d'Armor)
Notice d'illustration
IVR53_20242210298NUDA
|
Château de la Roche-Jagu (Ploëzal)
Plan du rez-de-chaussée : état supposé du 15e siècle (Jean-Jacques Rioult et Nicole Le Net d'après un plan du département des Côtes-d'Armor)
Notice d'illustration
IVR53_20202200441NUDA
|
Eglise paroissiale Notre-Dame (Le Quillio)
Plan archéologique
Notice d'illustration
IVR53_20202200445NUD
|
Eglise paroissiale Notre-Dame (Le Quillio)
Plan au sol
Notice d'illustration
IVR53_20242210300NUDA
|
Château de la Roche-Jagu (Ploëzal)
Plan du deuxième étage : état supposé du 15e siècle (Jean-Jacques Rioult et Nicole Le Net d'après un plan du département des Côtes-d'Armor)
Notice d'illustration
IVR53_20032900634NUC
|
-
Maison, 12 rue Brémond d'Ars (Quimperlé)
Rez-de-chaussée, schéma de distribution
Notice d'illustration
IVR53_20222905841NUCA
|
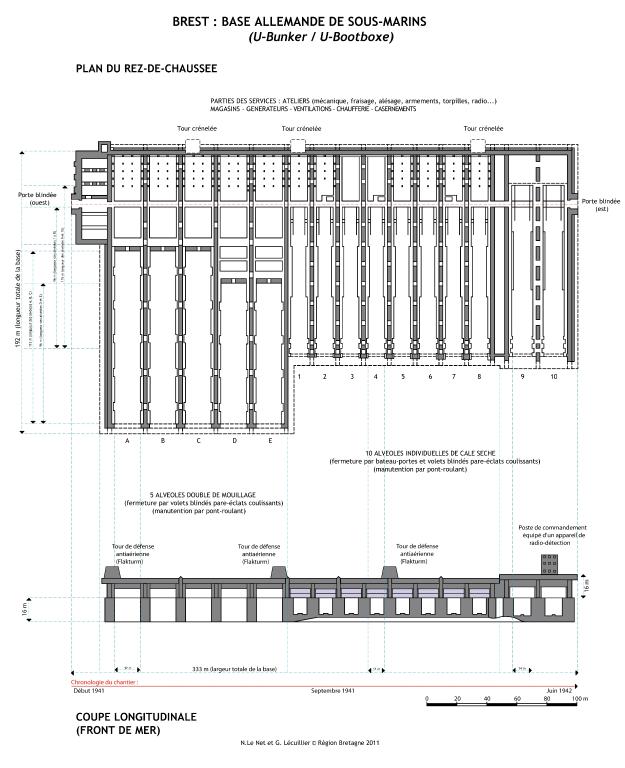
Base de sous-marins (Brest)
Plan, coupe et chronologie de la base de sous-marins (extrait de "Les fortifications de la rade de Brest. Défense d'une ville-arsenal", 2011)
Lécuillier Guillaume
Cliquez pour effectuer une recherche sur cette personne.
-
Lécuillier Guillaume
Chargé d'études d'Inventaire du patrimoine à la Région Bretagne.
Notice d'illustration
IVR53_20062906264A4
|
-
Enclos paroissial et église Saint-Suliau, bourg (Sizun)
Plan au sol
Notice d'illustration
IVR53_20062906262A4
|
-
Enclos paroissial et église Saint-Suliau, bourg (Sizun)
Enclos, plan-masse et plan des toitures
Notice d'illustration
IVR53_19995600525X
|
Cabane de sabotier, Kervadio (Cléguer)
Plan au sol hutte de sabotier.
Dessinatrice à l'Inventaire