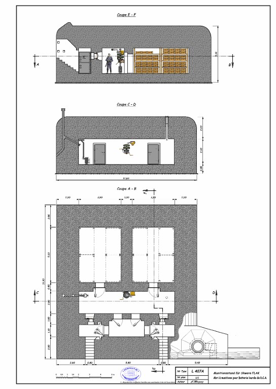
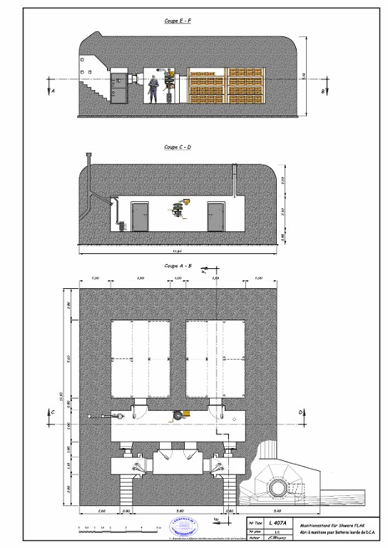
Bunker-abri-magasin de munitions de type L 407a (dossier en cours), terre-plein du terminal Ferry du Naye (Saint-Malo),
Plan et coupes d'un bunker-abri-magasin de munitions de type L 407a pour batterie antiaérienne (Munitionsstand für 8,8 oder 10,5 cm Flak)Immatriculation
IVR53_20263510106NUDA
Auteur de l'illustration
-
Moignez ChristianMoignez ChristianCliquez pour effectuer une recherche sur cette personne.
Copyright
- (c) Association Gerfaut 29
Diffusion
reproduction soumise à autorisation du titulaire des droits d'exploitation
Type
dessin numérique
Besoin d'informations sur cette illustration ?
Nous contacter
-
ASSOCIATION GERFAUT 29. MOIGNEZ, Christian. Collection de plans et coupes de bunkers.
Président de l'association Gerfaut 29, créé le 5 avril 2013.