Président de l'association Gerfaut 29, créé le 5 avril 2013.
- enquête thématique régionale, Inventaire des héritages militaires en Bretagne
- (c) Association Gerfaut 29
Dossier non géolocalisé
-
Aire d'étude et canton
Bretagne - Saint-Malo Nord
-
Commune
Saint-Malo
-
Lieu-dit
Le Naye
-
Cadastre
CR
13
-
Dénominationsbatterie, ensemble fortifié, blockhaus
-
Période(s)
- Secondaire : 2e quart 20e siècle
-
Dates
- 1943, daté par travaux historiques
-
Auteur(s)
-
Auteur :
Organisation Todt (1938 - 1945)maître d'oeuvre attribution par travaux historiquesOrganisation TodtCliquez pour effectuer une recherche sur cette personne.
L’Organisation Todt (souvent abrégée en "OT") était un groupe de génie civil et militaire de l'Allemagne nazie. Elle portait le nom de Fritz Todt (1891-1942), son fondateur et dirigeant, ingénieur de travaux publics nommé en 1940 ministre du Reich pour l'Armement et les Munitions. A sa mort le 8 février 1942, ce dernier est remplacé par l'architecte Albert Speer (1905-1981), haut responsable politique et proche d’Adolf Hitler. L'organisation Todt a notamment assuré la construction du réseau des autoroutes du Reich (Reichsautobahnen), de bases aériennes, portuaires, de sous-marins, d’infrastructures pour armes spéciales ou logistiques et de fortifications (Westwall, Atantikwall, Südwall).
-
Auteur :
-
Murs
- béton béton armé
-
Toitsbéton en couverture
-
État de conservationétat moyen, vestiges
-
Techniques
- peinture
-
Statut de la propriétépropriété de la région
-
Intérêt de l'œuvrevestiges de guerre, à signaler
-
Éléments remarquablesblockhaus
- (c) Bundesarchiv
- (c) Région Bretagne
- (c) Région Bretagne
- (c) Région Bretagne
- (c) Région Bretagne
- (c) Association Gerfaut 29
- (c) Association Gerfaut 29
- (c) Association Gerfaut 29
- (c) Association Gerfaut 29
- (c) Association Gerfaut 29
- (c) Région Bretagne
- (c) Région Bretagne
- (c) Région Bretagne
- (c) Région Bretagne
- (c) Région Bretagne
- (c) Région Bretagne
Documents d'archives
-
Service Historique de la Défense du Château de Vincennes : SHDMV MV 2DOC 3
Rapport Pinczon du Sel sur les installations du Mur de l'Atlantique (1946-1949). "Le Mur de l´Atlantique. Livre IV : du Mont Saint-Michel à la Laïta" (collection : Service Historique de la Défense du Château de Vincennes). Texte en liasse ; plans et photographies.
https://www.memoiredeshommes.defense.gouv.fr/arts-sciences-militaires/batiments-militaires/rapport-pinczon-du-sel-sur-les-installations-du-mur-de-latlantique
Bibliographie
-
DURRIEU, Alain. Des bunkers et des hommes. Fresques et inscriptions du Mur de l'Atlantique. Andrésy : Alain Durrieu auteur - éditeur , 2004, 208 p.
p. 175 -
ROLF, Rudi. Atlantikwall-Typenheft. Atlantic Wall typology. Typologie du Mur de l'Atlantique. Middelburg, PRAK publishing, 2008, 432 p.
p. 377
Documents figurés
-
ASSOCIATION GERFAUT 29. MOIGNEZ, Christian. Collection de plans et coupes de bunkers.
Chargé d'études d'Inventaire du patrimoine à la Région Bretagne.
Contient
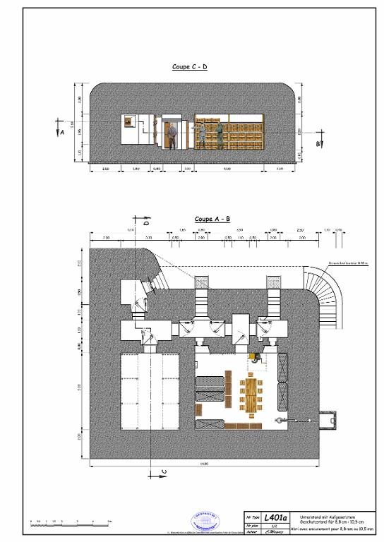
- Bunker-abri-magasin de munitions de type L 401a avec cuve pour canon antiaérien (II) (dossier en cours), sous le transformateur électrique, terre-plein du Naye (Saint-Malo)
- Bunker-abri-magasin de munitions de type L 401a avec cuve pour canon antiaérien (III) (dossier en cours), terre-plein du Naye (Saint-Malo)
- Bunker-abri-magasin de munitions de type L 401a avec cuve pour canon antiaérien (IV) (dossier en cours), terre-plein du Naye (Saint-Malo)
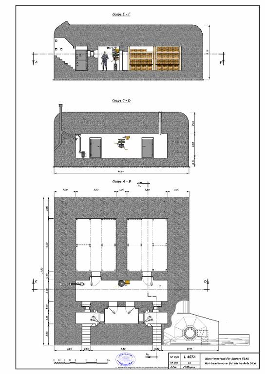
- Bunker-abri-magasin de munitions de type L 407a (dossier en cours), terre-plein du Naye (Saint-Malo)
- Bunker-cuve pour canon antiaérien de 2 cm (dossier en cours), terre-plein du Naye (Saint-Malo)
- Bunker-poste de direction de tir de type L 404, terre-plein du Naye (Saint-Malo)
Fait partie de
Batterie d'artillerie antiaérienne lourde Rossitten (Lo 302), Le Cosquéric (Ploemeur)
Lieu-dit : Le Cosquéric
Adresse : rue de l'Aérogare
Batterie d'artillerie de Tremet puis batterie d'artillerie antiaérienne fixe de la Marine, Pointe de Tremet (Roscanvel)
Lieu-dit : Pointe de Tremet
Bunker de type 67 pour tourelle de char de combat (Ra 272) (dossier en cours), esplanade de la Bourse (Saint-Malo)
Lieu-dit : Esplanade de la Bourse
Bunker-abri antiaérien (dossier en cours), sous la chaussée Éric Tabarly (Saint-Malo)
Lieu-dit : Le Naye
Digue et cale de l'avant-port de Saint-Servan (dossier en cours), terre-plein du Naye (Saint-Malo)
Lieu-dit : Le Naye
Fort du Naye (dossier en cours), Le Naye (Saint-Malo)
Lieu-dit : Le Naye
Chargé d'études d'Inventaire du patrimoine à la Région Bretagne.