Chargé d'études d'Inventaire du patrimoine à la Région Bretagne.
- enquête thématique régionale, Inventaire des héritages militaires en Bretagne
Dossier non géolocalisé
-
Aire d'étude et canton
Bretagne - Saint-Malo Nord
-
Commune
Saint-Malo
-
Lieu-dit
Le Naye
-
Cadastre
CR
13
-
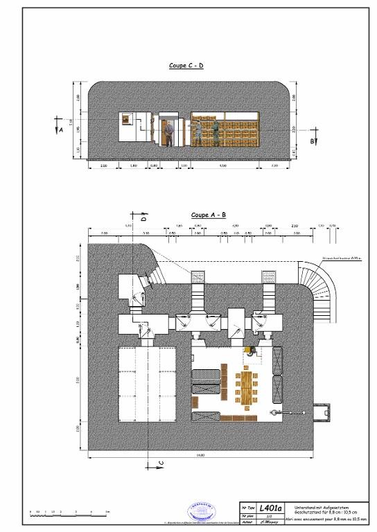
Dénominationsblockhaus, abri, magasin de munitions
-
Période(s)
- Secondaire : 2e quart 20e siècle
-
Dates
- 1943, daté par travaux historiques
-
Auteur(s)
-
Auteur :
Organisation Todt (1938 - 1945)maître d'oeuvre attribution par travaux historiquesOrganisation TodtCliquez pour effectuer une recherche sur cette personne.
L’Organisation Todt (souvent abrégée en "OT") était un groupe de génie civil et militaire de l'Allemagne nazie. Elle portait le nom de Fritz Todt (1891-1942), son fondateur et dirigeant, ingénieur de travaux publics nommé en 1940 ministre du Reich pour l'Armement et les Munitions. A sa mort le 8 février 1942, ce dernier est remplacé par l'architecte Albert Speer (1905-1981), haut responsable politique et proche d’Adolf Hitler. L'organisation Todt a notamment assuré la construction du réseau des autoroutes du Reich (Reichsautobahnen), de bases aériennes, portuaires, de sous-marins, d’infrastructures pour armes spéciales ou logistiques et de fortifications (Westwall, Atantikwall, Südwall).
-
Auteur :
Pour plus de facilité, nous avons numéroté les bunkers de type L 401a avec cuve pour canon antiaérien de I à VI dans le sens des aiguilles d’une montre à partir de la cuve nord et gauche. Ce bunker est donc logiquement numéroté III.
-
Murs
- béton béton armé
-
Toitsbéton en couverture
-
Escaliers
- escalier dans-oeuvre : escalier droit
- escalier hors-oeuvre : escalier en équerre
-
État de conservationétat moyen, vestiges
-
Techniques
- peinture
-
Précision représentations
Dans le magasin à munitions, sur le mur sud (à gauche en entrant), au niveau du plafond : peinture murale de couleur noire figurant une araignée sur sa toile entourée d'une inscription en lettre gothique : "Eïner / immer" (traduction littérale : Un / toujours).
Une peinture quasi identique - photographiée dans un bunker de type L 409 de la batterie d'artillerie antiaérienne des Cognets à Dinard - a été publiée par Alain Durrieu en 2004. Il transcrit la peinture par cette expression : "Il y en a toujours un qui a une araignée au plafond". Aux Cognets, cette peinture est datée du 15 février 1944.
-
Mesures
- la : 2 m (mur périphériques et dalle de couverture)
- pr : 1 m (radier/dalle de fondation)
-
Précision dimensions
Selon le catalogue des plans-types, la réalisation d'un bunker-abri de type L 401a avec cuve pour canon antiaérien (Unterstand mit aufgesetztem Geschützstand für 8,8/10,5 cm Flak) nécessite 840 m3 de béton.
-
Statut de la propriétépropriété de la région
-
Intérêt de l'œuvrevestiges de guerre, à signaler
-
Éléments remarquablesblockhaus
- (c) Association Gerfaut 29
- (c) Association Gerfaut 29
- (c) Région Bretagne
- (c) Région Bretagne
- (c) Région Bretagne
- (c) Région Bretagne
- (c) Région Bretagne
- (c) Région Bretagne
- (c) Région Bretagne
- (c) Région Bretagne
- (c) Région Bretagne
- (c) Région Bretagne
- (c) Région Bretagne
- (c) Région Bretagne
- (c) Région Bretagne
- (c) Région Bretagne
- (c) Région Bretagne
- (c) Région Bretagne
- (c) Région Bretagne
- (c) Région Bretagne
- (c) Région Bretagne
- (c) Région Bretagne
- (c) Région Bretagne
- (c) Région Bretagne
- (c) Région Bretagne
- (c) Région Bretagne
- (c) Région Bretagne
- (c) Région Bretagne
- (c) Région Bretagne
- (c) Région Bretagne
- (c) Région Bretagne
- (c) Région Bretagne
- (c) Région Bretagne
- (c) Région Bretagne
- (c) Région Bretagne
- (c) Région Bretagne
- (c) Région Bretagne
- (c) Région Bretagne
Documents d'archives
-
Service Historique de la Défense du Château de Vincennes : SHDMV MV 2DOC 3
Rapport Pinczon du Sel sur les installations du Mur de l'Atlantique (1946-1949). "Le Mur de l´Atlantique. Livre IV : du Mont Saint-Michel à la Laïta" (collection : Service Historique de la Défense du Château de Vincennes). Texte en liasse ; plans et photographies.
https://www.memoiredeshommes.defense.gouv.fr/arts-sciences-militaires/batiments-militaires/rapport-pinczon-du-sel-sur-les-installations-du-mur-de-latlantique
Bibliographie
-
DURRIEU, Alain. Des bunkers et des hommes. Fresques et inscriptions du Mur de l'Atlantique. Andrésy : Alain Durrieu auteur - éditeur , 2004, 208 p.
p. 175 -
ROLF, Rudi. Atlantikwall-Typenheft. Atlantic Wall typology. Typologie du Mur de l'Atlantique. Middelburg, PRAK publishing, 2008, 432 p.
p. 377
Documents figurés
-
ASSOCIATION GERFAUT 29. MOIGNEZ, Christian. Collection de plans et coupes de bunkers.
Chargé d'études d'Inventaire du patrimoine à la Région Bretagne.
Fait partie de
Avant-port de Saint-Servan (dossier en cours), terre-plein du terminal Ferry du Naye (Saint-Malo)
Lieu-dit : Le Naye
Bunker-abri antiaérien (dossier en cours), sous la chaussée Éric Tabarly (Saint-Malo)
Lieu-dit : Le Naye
Bunker-abri-magasin de munitions de type L 407a (dossier en cours), terre-plein du terminal Ferry du Naye (Saint-Malo)
Lieu-dit : Le Naye
Fort du Naye puis ensemble fortifié (Ra 226) (dossier en cours), Le Naye (Saint-Malo)
Lieu-dit : Le Naye
Chargé d'études d'Inventaire du patrimoine à la Région Bretagne.