L’Organisation Todt (souvent abrégée en "OT") était un groupe de génie civil et militaire de l'Allemagne nazie. Elle portait le nom de Fritz Todt (1891-1942), son fondateur et dirigeant, ingénieur de travaux publics nommé en 1940 ministre du Reich pour l'Armement et les Munitions. A sa mort le 8 février 1942, ce dernier est remplacé par l'architecte Albert Speer (1905-1981), haut responsable politique et proche d’Adolf Hitler. L'organisation Todt a notamment assuré la construction du réseau des autoroutes du Reich (Reichsautobahnen), de bases aériennes, portuaires, de sous-marins, d’infrastructures pour armes spéciales ou logistiques et de fortifications (Westwall, Atantikwall, Südwall).
Dossier d’œuvre architecture IA35132909
| Réalisé par
- enquête thématique régionale, Inventaire des héritages militaires en Bretagne
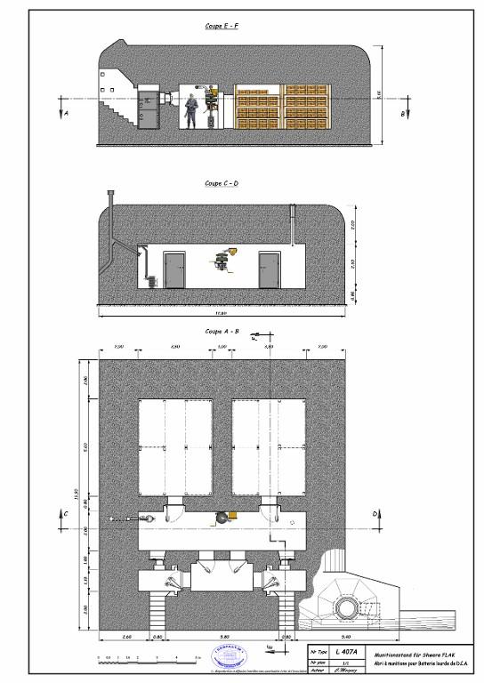
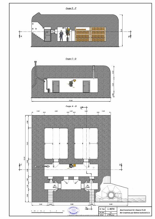
Bunker-abri-magasin de munitions de type L 407a (dossier en cours), terre-plein du terminal Ferry du Naye (Saint-Malo)
Œuvre étudiée
Auteur
Dossier non géolocalisé
Localisation
-
Aire d'étude et canton
Bretagne - Saint-Malo Nord
-
Commune
Saint-Malo
-
Lieu-dit
Le Naye
-
Cadastre
CR
13
;
CR
31
-
Dénominationsblockhaus, abri, magasin de munitions
-
Période(s)
- Secondaire : 2e quart 20e siècle
-
Auteur(s)
-
Auteur :
Organisation Todt (1938 - 1945)maître d'oeuvre attribution par travaux historiques
-
Auteur :
-
Murs
- béton béton armé
-
Toitsbéton en couverture
-
Escaliers
- escalier dans-oeuvre : escalier droit
-
État de conservationétat moyen, vestiges
-
Mesures
- la : 2 m (murs périphériques et dalle de couverture)
-
Précision dimensions
Selon le catalogue des plans-types, la réalisation d'un bunker-abri-magasin de munitions de type L 407a pour pour batterie antiaérienne lourde (Munitionsstand für schwere Flak) nécessite 800 m3 de béton.
-
Statut de la propriétépropriété de la région
-
Intérêt de l'œuvrevestiges de guerre, à signaler
-
Éléments remarquablesblockhaus
- (c) Association Gerfaut 29
- (c) Région Bretagne
- (c) Région Bretagne
- (c) Région Bretagne
- (c) Région Bretagne
- (c) Région Bretagne
- (c) Région Bretagne
- (c) Région Bretagne
- (c) Région Bretagne
- (c) Région Bretagne
- (c) Région Bretagne
- (c) Région Bretagne
- (c) Région Bretagne
- (c) Région Bretagne
- (c) Région Bretagne
- (c) Région Bretagne
- (c) Région Bretagne
- (c) Région Bretagne
- (c) Région Bretagne
- (c) Région Bretagne
- (c) Région Bretagne
- (c) Région Bretagne
Bibliographie
-
ROLF, Rudi. Atlantikwall-Typenheft. Atlantic Wall typology. Typologie du Mur de l'Atlantique. Middelburg, PRAK publishing, 2008, 432 p.
p. 106
Documents figurés
-
ASSOCIATION GERFAUT 29. MOIGNEZ, Christian. Collection de plans et coupes de bunkers.
Date(s) d'enquête :
2026;
Date(s) de rédaction :
2026
Lécuillier Guillaume
Cliquez pour effectuer une recherche sur cette personne.
Lécuillier Guillaume
Chargé d'études d'Inventaire du patrimoine à la Région Bretagne.
Articulation des dossiers
Fait partie de
A rapprocher de
(juxtaposé)
Avant-port de Saint-Servan (dossier en cours), terre-plein du terminal Ferry du Naye (Saint-Malo)
Commune : Saint-Malo
Lieu-dit : Le Naye
Lieu-dit : Le Naye
(juxtaposé)
Bunker-abri antiaérien (dossier en cours), sous la chaussée Éric Tabarly (Saint-Malo)
Commune : Saint-Malo
Lieu-dit : Le Naye
Lieu-dit : Le Naye
(juxtaposé)
Bunker-abri-magasin de munitions de type L 401a avec cuve pour canon antiaérien (III) (dossier en cours), terre-plein du terminal Ferry du Naye (Saint-Malo)
Commune : Saint-Malo
Lieu-dit : Le Naye
Lieu-dit : Le Naye
(juxtaposé)
Fort du Naye puis ensemble fortifié (Ra 226) (dossier en cours), Le Naye (Saint-Malo)
Commune : Saint-Malo
Lieu-dit : Le Naye
Lieu-dit : Le Naye
Chargé d'études d'Inventaire du patrimoine à la Région Bretagne.