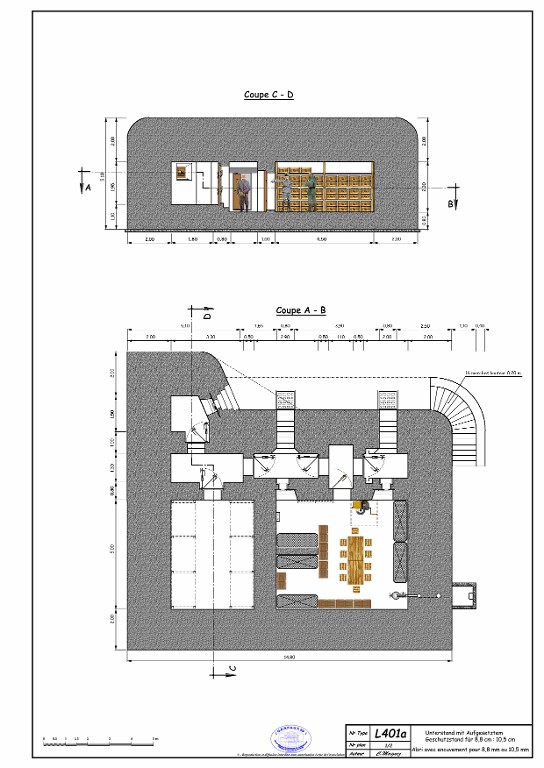
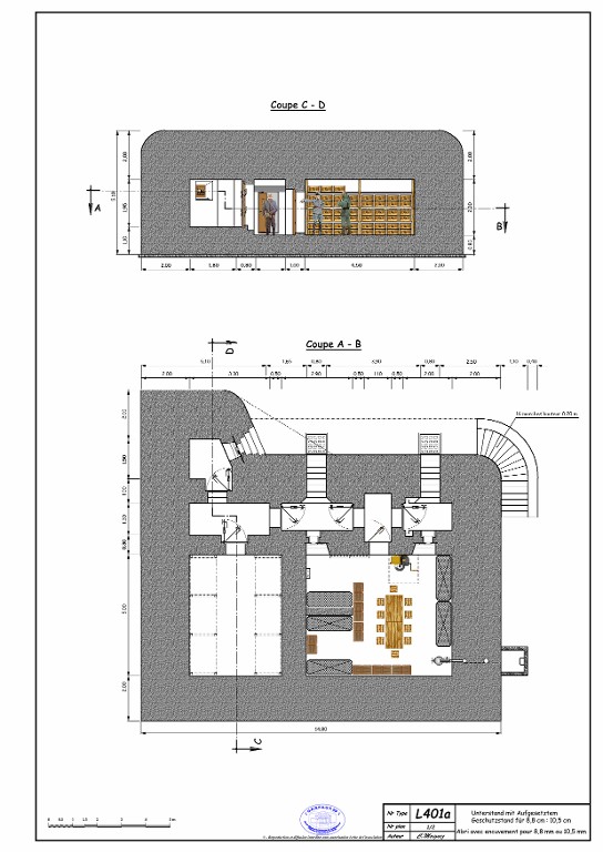
Bunker-abri-magasin de munitions de type L 401a avec cuve pour canon antiaérien (III) (dossier en cours), terre-plein du terminal Ferry du Naye (Saint-Malo),
Plan et coupe d'un bunker-abri-magasin de munitions de type L 401a avec cuve pour canon antiaérien de 10,5 cm (Unterstand mit aufgesetztem Geschützstand für 8,8/10,5 cm Flak)Immatriculation
IVR53_20263510107NUDA
Auteur de l'illustration
-
Moignez ChristianMoignez ChristianCliquez pour effectuer une recherche sur cette personne.
Copyright
- (c) Association Gerfaut 29
Année de prise de vue
2026
Diffusion
reproduction soumise à autorisation du titulaire des droits d'exploitation
Type
dessin numérique
Besoin d'informations sur cette illustration ?
Nous contacter
-
ASSOCIATION GERFAUT 29. MOIGNEZ, Christian. Collection de plans et coupes de bunkers.
Président de l'association Gerfaut 29, créé le 5 avril 2013.