Dossier d’œuvre architecture IA35132914 | Réalisé par
Lécuillier Guillaume (Contributeur)
Lécuillier Guillaume

Chargé d'études d'Inventaire du patrimoine à la Région Bretagne.

Cliquez pour effectuer une recherche sur cette personne.
  • enquête thématique régionale, Inventaire des héritages militaires en Bretagne
Bunker-abri-magasin de munitions de type L 401a avec cuve pour canon antiaérien (IV) (dossier en cours), terre-plein du terminal Ferry du Naye (Saint-Malo)
Œuvre étudiée
Auteur
Copyright
  • (c) Association Gerfaut 29

Dossier non géolocalisé

Localisation
  • Aire d'étude et canton Bretagne - Saint-Malo Nord
  • Commune Saint-Malo
  • Lieu-dit Le Naye
  • Cadastre CR 13
  • Période(s)
    • Secondaire : 2e quart 20e siècle
  • Dates
    • 1943, daté par travaux historiques
  • Auteur(s)
    • Auteur :
      Organisation Todt (1938 - 1945)
      Organisation Todt

      L’Organisation Todt (souvent abrégée en "OT") était un groupe de génie civil et militaire de l'Allemagne nazie. Elle portait le nom de Fritz Todt (1891-1942), son fondateur et dirigeant, ingénieur de travaux publics nommé en 1940 ministre du Reich pour l'Armement et les Munitions. A sa mort le 8 février 1942, ce dernier est remplacé par l'architecte Albert Speer (1905-1981), haut responsable politique et proche d’Adolf Hitler. L'organisation Todt a notamment assuré la construction du réseau des autoroutes du Reich (Reichsautobahnen), de bases aériennes, portuaires, de sous-marins, d’infrastructures pour armes spéciales ou logistiques et de fortifications (Westwall, Atantikwall, Südwall).

      Cliquez pour effectuer une recherche sur cette personne.
      maître d'oeuvre attribution par travaux historiques

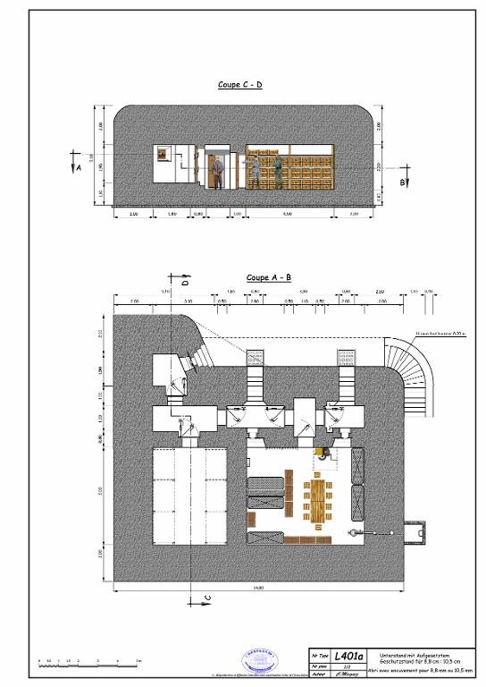
Pour plus de facilité, nous avons numéroté les bunkers de type L 401a avec cuve pour canon antiaérien de I à VI dans le sens des aiguilles d’une montre à partir de la cuve nord et gauche. Ce bunker est donc logiquement numéroté IV.

  • Murs
    • béton béton armé
  • Toits
    béton en couverture
  • Escaliers
    • escalier dans-oeuvre : escalier droit
    • escalier hors-oeuvre : escalier en équerre
  • État de conservation
    état moyen, vestiges
  • Mesures
    • la : 2 m (mur périphériques et dalle de couverture)
  • Précision dimensions

    Selon le catalogue des plans-types, la réalisation d'un bunker-abri de type L 401a avec cuve pour canon antiaérien (Unterstand mit aufgesetztem Geschützstand für 8,8/10,5 cm Flak) nécessite 840 m3 de béton.

  • Statut de la propriété
    propriété de la région
  • Intérêt de l'œuvre
    vestiges de guerre, à signaler
  • Éléments remarquables
    blockhaus

Bibliographie

  • ROLF, Rudi. Atlantikwall-Typenheft. Atlantic Wall typology. Typologie du Mur de l'Atlantique. Middelburg, PRAK publishing, 2008, 432 p.

    p. 377

Documents figurés

  • ASSOCIATION GERFAUT 29. MOIGNEZ, Christian. Collection de plans et coupes de bunkers.

Date(s) d'enquête : 2026; Date(s) de rédaction : 2026
(c) Région Bretagne
Lécuillier Guillaume
Lécuillier Guillaume

Chargé d'études d'Inventaire du patrimoine à la Région Bretagne.

Cliquez pour effectuer une recherche sur cette personne.